Larry Stein Oklahoma County Assessor (405) 713-1200 - Public Access System
Home Contact Us Guest Book Map Search New Search
Building Detail Results - Screen Produced   3/12/2026 3:40:57 PM 
 Account #:  R168652990 Bldg #1
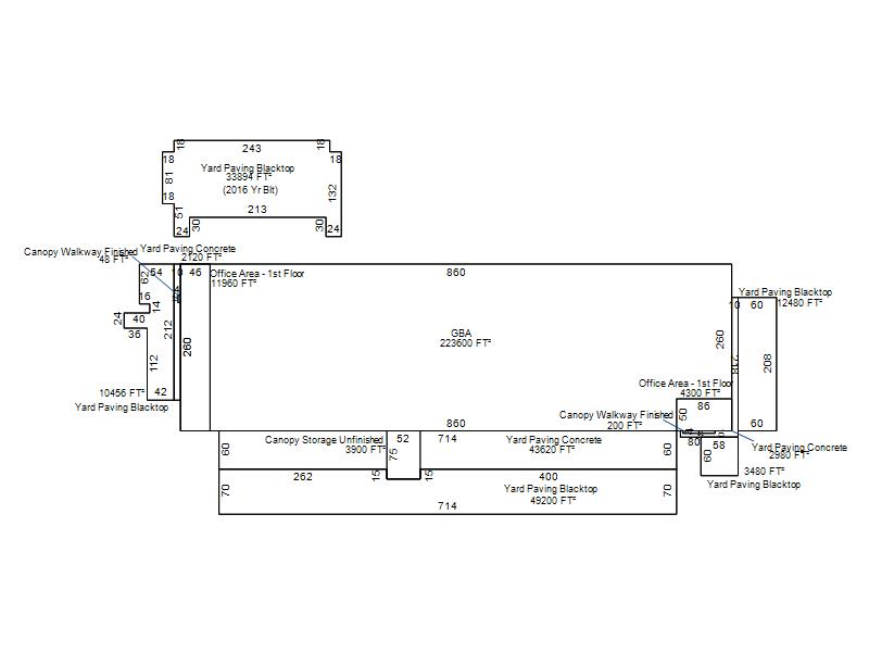
Sketch

 Building #: 1
 Built As:  Distribution Warehouse
 # of Stories:  1 Stories
 Square Feet:  223,600
 Year Built:  2015
 Remodel Year:   
 Building Name:  REEL POWER/ AMERICAN TIRE DISTRIBUTORS
 Alt Land Use Desc:  Unplatted Commercial
 Quality Desc:  Fair
 Bldg Frame Description:  Masonry
 Foundation Desc:  Slab
 Bldg Exterior:  Masonry Pre-Cast
 Roof Type:  Flat
 Roof Cover:   Built Up Rock
 Avg Floor Height:  34
 Percent Sprinkled:  100
 Bldg Interior:  
 Total Rooms:   
 # of Units w/Bedrooms: # of units ( ) with   Bedrooms
 # of Baths:  (0)-Full, (0)-3/4, (0)-half
 HVAC Type:  Space Heater
 # of Fire Places:  0
 Percent Heated:  100
 Physical Condition:  Very Good
 # of Res Units:  0
 # of Comm Units:  2
 Commercial Desc:   
 Occ Type:  0407
 Commercial Class:  C
 MFG Home Length:  0
 MFG Home Width:  0

Photos

2021 

2017 

2016 

2015 

2012 

Garage, Porch, Basement, Storage, Utility etc.  (GLA=Gross Living Area    GBA=Gross Bldg Area)
Account # Feature Description Sqft/Area Number of Stories

R168652990

 GBA

 GBA

223,600 

1

Additional Details
Account #: Bldg # Description Qty # Of Units Description

R168652990

1

Canopy Storage Unfinished

1

3,900 

Square Feet

R168652990

1

Canopy Walkway Finished

1

200 

Square Feet

R168652990

1

Canopy Walkway Finished

1

48 

Square Feet

R168652990

1

Dock High Foundation

1

17,136 

Square Feet

R168652990

1

Dock Levelor

1

20 

Units

R168652990

1

Fence Chain Link 6` + Brb Wire

1

1,050 

Linear Feet

R168652990

1

Office Area - 1st Floor

1

11,960 

Square Feet

R168652990

1

Office Area - 1st Floor

1

4,300 

Square Feet

R168652990

1

Yard Paving Blacktop

1

10,456 

Square Feet

R168652990

1

Yard Paving Blacktop

1

12,480 

Square Feet

R168652990

1

Yard Paving Blacktop

1

3,480 

Square Feet

R168652990

1

Yard Paving Blacktop

1

33,894 

Square Feet

R168652990

1

Yard Paving Blacktop

1

49,200 

Square Feet

R168652990

1

Yard Paving Concrete

1

2,120 

Square Feet

R168652990

1

Yard Paving Concrete

1

2,980 

Square Feet

R168652990

1

Yard Paving Concrete

1

43,620 

Square Feet