Larry Stein Oklahoma County Assessor (405) 713-1200 - Public Access System
Home Contact Us Guest Book Map Search New Search
Building Detail Results - Screen Produced   3/17/2026 3:59:05 AM 
 Account #:  R141435065 Bldg #1
Sketch

 Building #: 1
 Built As:  Split Level
 # of Stories:  1 Stories
 Square Feet:  4,109
 Year Built:  1981
 Remodel Year:  2025
 Building Name:   
 Alt Land Use Desc:  Unplatted 5 Acres or more
 Quality Desc:  Average
 Bldg Frame Description:  
 Foundation Desc:  Slab
 Bldg Exterior:  Frame Masonry Veneer
 Roof Type:  Gable
 Roof Cover:   Composition Shingle
 Avg Floor Height:  8
 Percent Sprinkled:  0
 Bldg Interior:  Drywall
 Total Rooms:  10
 # of Units w/Bedrooms: # of units (1) with 4 Bedrooms
 # of Baths:  (2)-Full, (1)-3/4, (1)-half
 HVAC Type:  Central Air to Air
 # of Fire Places:  1
 Percent Heated:  100
 Physical Condition:  Average
 # of Res Units:  1
 # of Comm Units:  0
 Commercial Desc:   
 Occ Type:  0100
 Commercial Class:  R
 MFG Home Length:  0
 MFG Home Width:  0

Photos

2024 

2021 

2017 

2016 

2013 

2009 

2005 

2003 

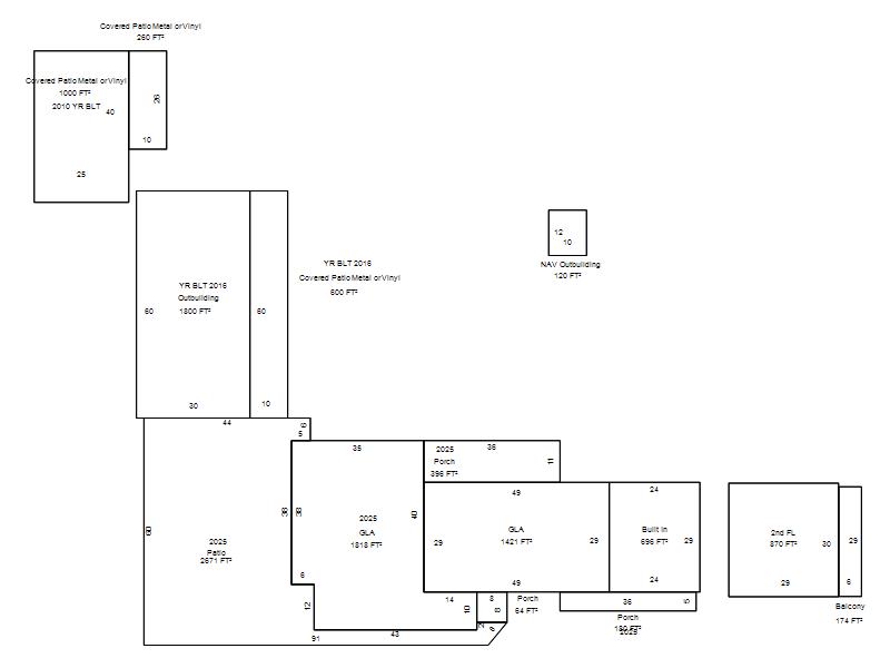
Garage, Porch, Basement, Storage, Utility etc.  (GLA=Gross Living Area    GBA=Gross Bldg Area)
Account # Feature Description Sqft/Area Number of Stories

R141435065

 PorOpenSl

 Patio

2,671 

1

R141435065

 GLA

 GLA

1,818 

1

R141435065

 GLA

 GLA

1,421 

1

R141435065

 GLA2

 2nd FL

870 

1

R141435065

 GarBuiltIn

 Built In

696 

1

R141435065

 PorWood R

 Porch

396 

1

R141435065

 PorWood R

 Porch

180 

1

R141435065

 BalWd F

 Balcony

174 

1

R141435065

 PorWood R

 Porch

64 

1

Additional Details
Account #: Bldg # Description Qty # Of Units Description

R141435065

1

Allowance

1

Units

R141435065

1

Covered Patio Metal or Vinyl

1

1,000 

Square Feet

R141435065

1

Covered Patio Metal or Vinyl

1

260 

Square Feet

R141435065

1

Covered Patio Metal or Vinyl

1

600 

Square Feet

R141435065

1

Exempt Storm Shelter

1

Square Feet

R141435065

1

Laundry Facility

1

Square Feet

R141435065

1

NAV Outbuilding

1

120 

Square Feet

R141435065

1

Outbuilding

1

1,800 

Square Feet

R141435065

1

Swimming Pool

1

450 

Square Feet