Larry Stein Oklahoma County Assessor (405) 713-1200 - Public Access System
Home Contact Us Guest Book Map Search New Search
Building Detail Results - Screen Produced   3/12/2026 8:22:02 PM 
 Account #:  R141445075 Bldg #1
Sketch

 Building #: 1
 Built As:  Ranch 1 Story
 # of Stories:  1 Stories
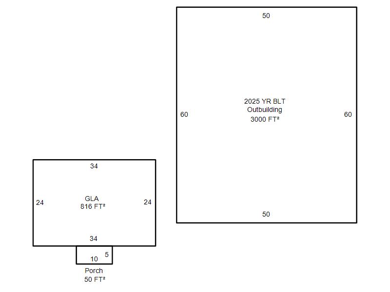
 Square Feet:  816
 Year Built:  2023
 Remodel Year:   
 Building Name:   
 Alt Land Use Desc:  Unplatted 5 Acres or more
 Quality Desc:  Fair
 Bldg Frame Description:  
 Foundation Desc:  Slab
 Bldg Exterior:  Frame Masonry Veneer
 Roof Type:  Hip
 Roof Cover:   Composition Shingle
 Avg Floor Height:  8
 Percent Sprinkled:   
 Bldg Interior:  Drywall
 Total Rooms:  4
 # of Units w/Bedrooms: # of units (1) with 1 Bedrooms
 # of Baths:  (1)-Full, (0)-3/4, (0)-half
 HVAC Type:  Central Air to Air
 # of Fire Places:  0
 Percent Heated:  100
 Physical Condition:  Average
 # of Res Units:  1
 # of Comm Units:   
 Commercial Desc:   
 Occ Type:  0100
 Commercial Class:  R
 MFG Home Length:   
 MFG Home Width:   

Photos

2024 

2024 

Garage, Porch, Basement, Storage, Utility etc.  (GLA=Gross Living Area    GBA=Gross Bldg Area)
Account # Feature Description Sqft/Area Number of Stories

R141445075

 GLA

 GLA

816 

1

R141445075

 PorWood R

 Porch

50 

1

Additional Details
Account #: Bldg # Description Qty # Of Units Description

R141445075

1

Allowance

1

Units

R141445075

1

Laundry Facility

1

Square Feet

R141445075

1

Outbuilding

1

3,000 

Square Feet