Larry Stein Oklahoma County Assessor (405) 713-1200 - Public Access System
Home Contact Us Guest Book Map Search New Search
Building Detail Results - Screen Produced   4/10/2026 3:56:03 AM 
 Account #:  R197971250 Bldg #1
Sketch

 Building #: 1
 Built As:  2 Story
 # of Stories:  2 Stories
 Square Feet:  3,042
 Year Built:  1969
 Remodel Year:  2010
 Building Name:   
 Alt Land Use Desc:  Platted
 Quality Desc:  Fair
 Bldg Frame Description:  
 Foundation Desc:  Slab
 Bldg Exterior:  Frame Masonry Veneer
 Roof Type:  Gambrel
 Roof Cover:   Composition Shingle
 Avg Floor Height:  8
 Percent Sprinkled:  0
 Bldg Interior:  Drywall
 Total Rooms:  9
 # of Units w/Bedrooms: # of units (1) with 5 Bedrooms
 # of Baths:  (3)-Full, (0)-3/4, (0)-half
 HVAC Type:  Central Air to Air
 # of Fire Places:  1
 Percent Heated:  100
 Physical Condition:  Average
 # of Res Units:  1
 # of Comm Units:  0
 Commercial Desc:   
 Occ Type:  0100
 Commercial Class:  R
 MFG Home Length:  0
 MFG Home Width:  0

Photos

2021 

2017 

2013 

2011 

2010 

2009 

2005 

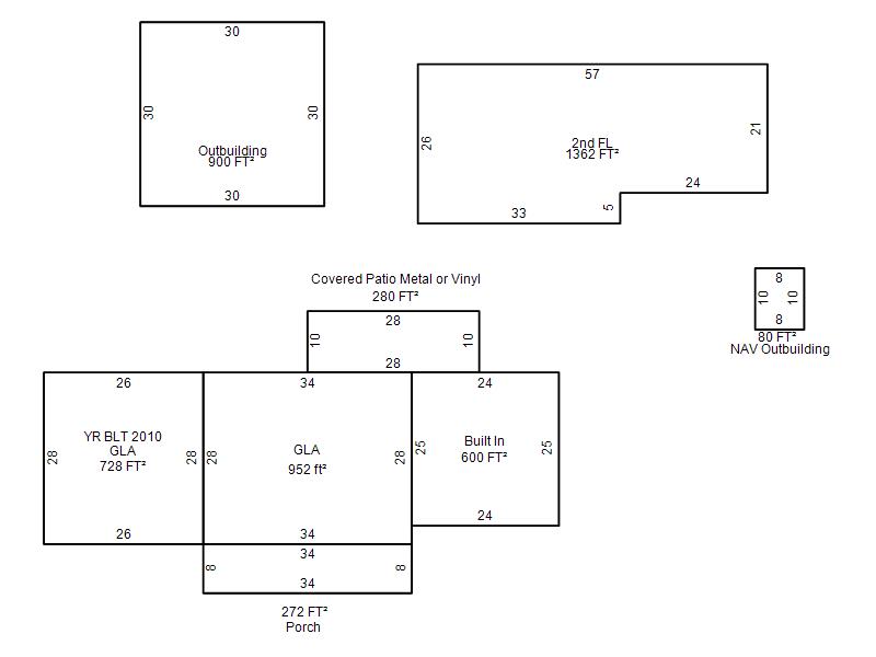
Garage, Porch, Basement, Storage, Utility etc.  (GLA=Gross Living Area    GBA=Gross Bldg Area)
Account # Feature Description Sqft/Area Number of Stories

R197971250

 GLA2

 2nd FL

1,362 

1

R197971250

 GLA

 GLA

952 

1

R197971250

 GLA

 GLA

728 

1

R197971250

 GarBuiltIn

 Built In

600 

1

R197971250

 PorWood R

 Porch

272 

1

Additional Details
Account #: Bldg # Description Qty # Of Units Description

R197971250

1

Allowance

1

Units

R197971250

1

Covered Patio Metal or Vinyl

1

280 

Square Feet

R197971250

1

Laundry Facility

1

Square Feet

R197971250

1

NAV Outbuilding

1

80 

Square Feet

R197971250

1

Outbuilding

1

900 

Square Feet