Larry Stein Oklahoma County Assessor (405) 713-1200 - Public Access System
Home Contact Us Guest Book Map Search New Search
Building Detail Results - Screen Produced   4/23/2026 1:54:17 PM 
 Account #:  R101601400 Bldg #1
Sketch

 Building #: 1
 Built As:  Ranch 1 Story
 # of Stories:  1 Stories
 Square Feet:  1,725
 Year Built:  1960
 Remodel Year:  2021
 Building Name:   
 Alt Land Use Desc:  Platted
 Quality Desc:  Fair
 Bldg Frame Description:  
 Foundation Desc:  Slab
 Bldg Exterior:  Frame Stucco
 Roof Type:  Gable
 Roof Cover:   Clay Tile
 Avg Floor Height:  8
 Percent Sprinkled:  0
 Bldg Interior:  Drywall
 Total Rooms:  3
 # of Units w/Bedrooms: # of units (1) with 1 Bedrooms
 # of Baths:  (1)-Full, (0)-3/4, (0)-half
 HVAC Type:  Central Air to Air
 # of Fire Places:  0
 Percent Heated:  100
 Physical Condition:  Average
 # of Res Units:  1
 # of Comm Units:  0
 Commercial Desc:   
 Occ Type:  0100
 Commercial Class:  R
 MFG Home Length:  0
 MFG Home Width:  0

Photos

2021 

2017 

2015 

2014 

2013 

2009 

2006 

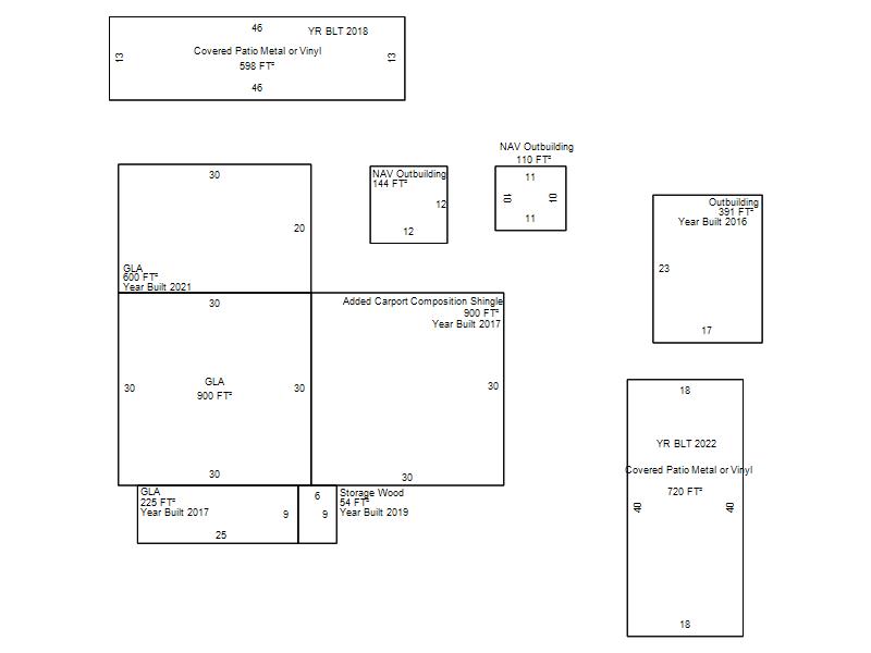
Garage, Porch, Basement, Storage, Utility etc.  (GLA=Gross Living Area    GBA=Gross Bldg Area)
Account # Feature Description Sqft/Area Number of Stories

R101601400

 GLA

 GLA

900 

1

R101601400

 GLA

 GLA

600 

1

R101601400

 GLA

 GLA

225 

1

R101601400

 StoWood

 Storage Wood

54 

1

Additional Details
Account #: Bldg # Description Qty # Of Units Description

R101601400

1

Added Carport Composition Shingle

1

900 

Square Feet

R101601400

1

Allowance

1

Units

R101601400

1

Covered Patio Metal or Vinyl

1

598 

Square Feet

R101601400

1

Covered Patio Metal or Vinyl

1

720 

Square Feet

R101601400

1

Laundry Facility

1

Square Feet

R101601400

1

NAV Outbuilding

1

110 

Square Feet

R101601400

1

NAV Outbuilding

1

144 

Square Feet

R101601400

1

Outbuilding

1

391 

Square Feet