Larry Stein Oklahoma County Assessor (405) 713-1200 - Public Access System
Home Contact Us Guest Book Map Search New Search
Building Detail Results - Screen Produced   3/21/2026 12:52:50 PM 
 Account #:  R144150580 Bldg #2
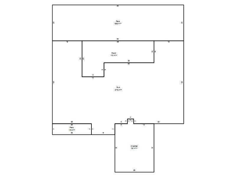
Sketch

 Building #: 2
 Built As:  Ranch 1 Story
 # of Stories:  1 Stories
 Square Feet:  3,775
 Year Built:  2023
 Remodel Year:   
 Building Name:   
 Alt Land Use Desc:  Unplatted 5 Acres or more
 Quality Desc:  Very Good
 Bldg Frame Description:  
 Foundation Desc:  Slab
 Bldg Exterior:  Frame Masonry Veneer
 Roof Type:  Gable
 Roof Cover:   Composition Shingle
 Avg Floor Height:  8
 Percent Sprinkled:   
 Bldg Interior:  Drywall
 Total Rooms:  10
 # of Units w/Bedrooms: # of units (1) with 6 Bedrooms
 # of Baths:  (1)-Full, (5)-3/4, (0)-half
 HVAC Type:  Central Air to Air
 # of Fire Places:  1
 Percent Heated:  100
 Physical Condition:  Average
 # of Res Units:  1
 # of Comm Units:   
 Commercial Desc:   
 Occ Type:  0100
 Commercial Class:  R
 MFG Home Length:   
 MFG Home Width:   

Photos

2023 

2023 

Garage, Porch, Basement, Storage, Utility etc.  (GLA=Gross Living Area    GBA=Gross Bldg Area)
Account # Feature Description Sqft/Area Number of Stories

R144150580

 GLA

 GLA

3,775 

1

R144150580

 PorOpenSl

 Patio

1,932 

1

R144150580

 GarAttach

 Attached

787 

1

R144150580

 PorWood R

 Porch

770 

1

R144150580

 PorOpenSl

 Patio

175 

1

Additional Details
Account #: Bldg # Description Qty # Of Units Description

R144150580

2

Allowance

1

Units

R144150580

2

Laundry Facility

1

Square Feet