Larry Stein Oklahoma County Assessor (405) 713-1200 - Public Access System
Home Contact Us Guest Book Map Search New Search
Building Detail Results - Screen Produced   4/28/2026 4:44:18 AM 
 Account #:  R181711030 Bldg #2
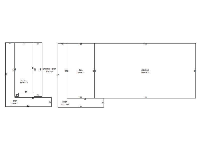
Sketch

 Building #: 2
 Built As:  1½ Story Fin
 # of Stories:  1.5 Stories
 Square Feet:  2,971
 Year Built:  2025
 Remodel Year:   
 Building Name:   
 Alt Land Use Desc:  Platted
 Quality Desc:  Fair
 Bldg Frame Description:  
 Foundation Desc:  Slab
 Bldg Exterior:  Frame Corrugated Metal
 Roof Type:  Gable
 Roof Cover:   Formed Seam Metal
 Avg Floor Height:  8
 Percent Sprinkled:   
 Bldg Interior:  Drywall
 Total Rooms:  4
 # of Units w/Bedrooms: # of units (1) with 1 Bedrooms
 # of Baths:  (0)-Full, (1)-3/4, (0)-half
 HVAC Type:  Central Air to Air
 # of Fire Places:  0
 Percent Heated:  100
 Physical Condition:  Average
 # of Res Units:  1
 # of Comm Units:   
 Commercial Desc:   
 Occ Type:  0100
 Commercial Class:  R
 MFG Home Length:   
 MFG Home Width:   

Photos

No records returned.
Garage, Porch, Basement, Storage, Utility etc.  (GLA=Gross Living Area    GBA=Gross Bldg Area)
Account # Feature Description Sqft/Area Number of Stories

R181711030

 GarAttach

 Attached

6,600 

1

R181711030

 GLA

 GLA

1,800 

1

R181711030

 GLA2

 2nd FL

1,171 

1

R181711030

 PorWood R

 Porch

1,100 

1

R181711030

 PorEncSld

 Enclosed Porch

525 

1

Additional Details
Account #: Bldg # Description Qty # Of Units Description

R181711030

2

Allowance

1

Units

R181711030

2

Laundry Facility

1

Square Feet