Larry Stein Oklahoma County Assessor (405) 713-1200 - Public Access System
Home Contact Us Guest Book Map Search New Search
Building Detail Results - Screen Produced   3/12/2026 3:58:54 PM 
 Account #:  R168652170 Bldg #2
Sketch

 Building #: 2
 Built As:  Indust Lght Manufacturing
 # of Stories:  1 Stories
 Square Feet:  33,300
 Year Built:  2012
 Remodel Year:   
 Building Name:  KAT MACHINE INC
 Alt Land Use Desc:  Platted Commercial
 Quality Desc:  Average Plus
 Bldg Frame Description:  Metal Frame
 Foundation Desc:  Slab
 Bldg Exterior:  
 Roof Type:  Gable
 Roof Cover:   Formed Seam Metal
 Avg Floor Height:  26
 Percent Sprinkled:  0
 Bldg Interior:  
 Total Rooms:   
 # of Units w/Bedrooms: # of units ( ) with   Bedrooms
 # of Baths:  (0)-Full, (0)-3/4, (0)-half
 HVAC Type:  Space Heater
 # of Fire Places:  0
 Percent Heated:  100
 Physical Condition:  Very Good
 # of Res Units:  0
 # of Comm Units:  1
 Commercial Desc:   
 Occ Type:  0334
 Commercial Class:  C
 MFG Home Length:  0
 MFG Home Width:  0

Photos

2021 

2017 

2012 

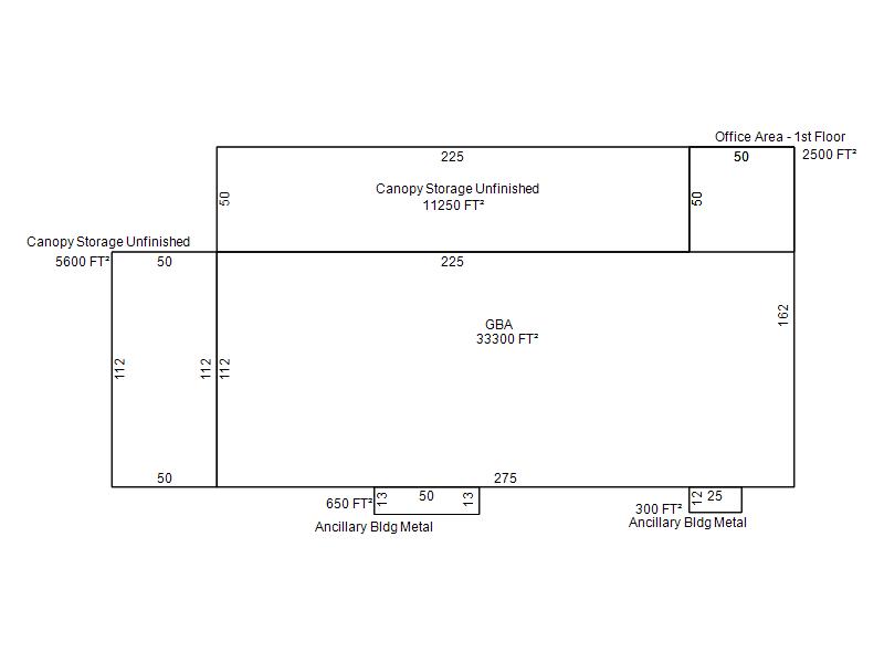
Garage, Porch, Basement, Storage, Utility etc.  (GLA=Gross Living Area    GBA=Gross Bldg Area)
Account # Feature Description Sqft/Area Number of Stories

R168652170

 GBA

 GBA

33,300 

1

Additional Details
Account #: Bldg # Description Qty # Of Units Description

R168652170

2

Ancillary Bldg Metal

1

300 

Square Feet

R168652170

2

Ancillary Bldg Metal

1

650 

Square Feet

R168652170

2

Canopy Storage Unfinished

1

11,250 

Square Feet

R168652170

2

Canopy Storage Unfinished

1

5,600 

Square Feet

R168652170

2

Office Area - 1st Floor

1

2,500 

Square Feet

R168652170

2

PP Craneway (I-Beam) Light (3-5 tons)

1

225 

Units

R168652170

2

PP Craneway (I-Beam) Medium (6-20 tons)

1

275 

Units

R168652170

2

Yard Paving Concrete Unsketched

1

150,000 

Square Feet

R168652170

2

Yard Paving Gravel Unsketched

1

160,000 

Square Feet