Larry Stein Oklahoma County Assessor (405) 713-1200 - Public Access System
Home Contact Us Guest Book Map Search New Search
Building Detail Results - Screen Produced   3/17/2026 5:46:38 AM 
 Account #:  R141412240 Bldg #2
Sketch

 Building #: 2
 Built As:  Indust Lght Manufacturing
 # of Stories:  1 Stories
 Square Feet:  15,000
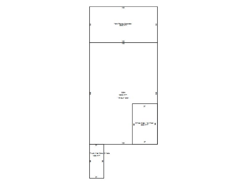
 Year Built:  2021
 Remodel Year:   
 Building Name:  ASPHALT AND FUEL SUPPLY
 Alt Land Use Desc:  Unplatted Commercial
 Quality Desc:  Average
 Bldg Frame Description:  Metal Frame
 Foundation Desc:  Slab
 Bldg Exterior:  Metal Siding
 Roof Type:  Gable
 Roof Cover:   Formed Seam Metal
 Avg Floor Height:  22
 Percent Sprinkled:  0
 Bldg Interior:  
 Total Rooms:   
 # of Units w/Bedrooms: # of units ( ) with   Bedrooms
 # of Baths:  ( )-Full, ( )-3/4, ( )-half
 HVAC Type:  Package Unit
 # of Fire Places:   
 Percent Heated:  15
 Physical Condition:  Average
 # of Res Units:   
 # of Comm Units:  1
 Commercial Desc:   
 Occ Type:  1334
 Commercial Class:  C
 MFG Home Length:   
 MFG Home Width:   

Photos

2021 

Garage, Porch, Basement, Storage, Utility etc.  (GLA=Gross Living Area    GBA=Gross Bldg Area)
Account # Feature Description Sqft/Area Number of Stories

R141412240

 GBA

 GBA

15,000 

1

Additional Details
Account #: Bldg # Description Qty # Of Units Description

R141412240

2

Dock Levelor

1

Units

R141412240

2

Office Area - 1st Floor

1

2,220 

Square Feet

R141412240

2

Truck Well Conc 2 Walls

1

1,050 

Square Feet

R141412240

2

Yard Paving Blacktop Unsketched

1

26,223 

Square Feet

R141412240

2

Yard Paving Blacktop Unsketched

1

9,225 

Square Feet

R141412240

2

Yard Paving Concrete

1

5,300 

Square Feet