Larry Stein Oklahoma County Assessor (405) 713-1200 - Public Access System
Home Contact Us Guest Book Map Search New Search
Building Detail Results - Screen Produced   3/11/2026 11:35:01 PM 
 Account #:  R168661575 Bldg #3
Sketch

 Building #: 3
 Built As:  2 Story
 # of Stories:  2 Stories
 Square Feet:  3,724
 Year Built:  1938
 Remodel Year:  2005
 Building Name:  UNOCCUPIED
 Alt Land Use Desc:  Charitable Orgs
 Quality Desc:  Good
 Bldg Frame Description:  
 Foundation Desc:  Conventional
 Bldg Exterior:  Frame Masonry Veneer
 Roof Type:  Gable
 Roof Cover:   Composition Shingle
 Avg Floor Height:  8
 Percent Sprinkled:  0
 Bldg Interior:  Drywall
 Total Rooms:  12
 # of Units w/Bedrooms: # of units (1) with 3 Bedrooms
 # of Baths:  (3)-Full, (0)-3/4, (1)-half
 HVAC Type:  Central Air to Air
 # of Fire Places:  1
 Percent Heated:  100
 Physical Condition:  Average
 # of Res Units:  1
 # of Comm Units:  0
 Commercial Desc:   
 Occ Type:  0100
 Commercial Class:  R
 MFG Home Length:  0
 MFG Home Width:  0

Photos

2023 

2015 

2011 

2007 

2004 

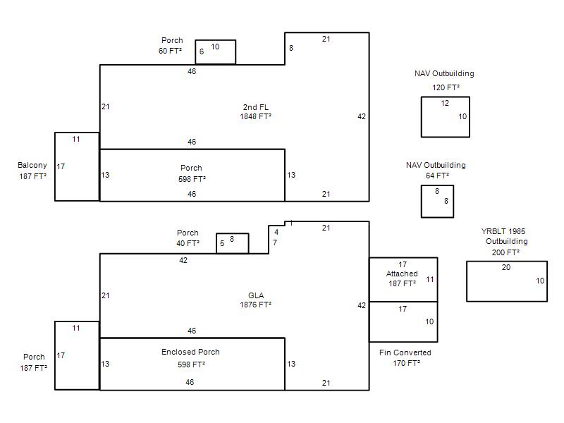
Garage, Porch, Basement, Storage, Utility etc.  (GLA=Gross Living Area    GBA=Gross Bldg Area)
Account # Feature Description Sqft/Area Number of Stories

R168661575

 GLA

 GLA

1,876 

1

R168661575

 GLA2

 2nd FL

1,848 

1

R168661575

 PorEncSld

 Enclosed Porch

598 

1

R168661575

 PorWood R

 Porch

598 

1

R168661575

 BalWd F

 Balcony

187 

1

R168661575

 GarAttach

 Attached

187 

1

R168661575

 PorWood R

 Porch

187 

1

R168661575

 GarFinConv

 Fin Converted

170 

1

R168661575

 PorWood R

 Porch

60 

1

R168661575

 PorWood R

 Porch

40 

1

Additional Details
Account #: Bldg # Description Qty # Of Units Description

R168661575

3

Allowance

1

Units

R168661575

3

Laundry Facility

1

Square Feet

R168661575

3

NAV Outbuilding

1

120 

Square Feet

R168661575

3

NAV Outbuilding

1

64 

Square Feet

R168661575

3

Outbuilding

1

200 

Square Feet