Larry Stein Oklahoma County Assessor (405) 713-1200 - Public Access System
Home Contact Us Guest Book Map Search New Search
Building Detail Results - Screen Produced   4/28/2026 8:59:43 PM 
 Account #:  R257131005 Bldg #3
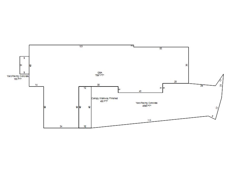
Sketch

 Building #: 3
 Built As:  Event Center
 # of Stories:  1 Stories
 Square Feet:  7,597
 Year Built:  2023
 Remodel Year:   
 Building Name:   
 Alt Land Use Desc:  Platted Commercial
 Quality Desc:  Good
 Bldg Frame Description:  Wood Frame
 Foundation Desc:  Slab
 Bldg Exterior:  Frame Stucco
 Roof Type:  Gable
 Roof Cover:   Steel Joist
 Avg Floor Height:  16
 Percent Sprinkled:   
 Bldg Interior:  
 Total Rooms:   
 # of Units w/Bedrooms: # of units ( ) with   Bedrooms
 # of Baths:  ( )-Full, ( )-3/4, ( )-half
 HVAC Type:  Package Unit
 # of Fire Places:   
 Percent Heated:  100
 Physical Condition:  Very Good
 # of Res Units:   
 # of Comm Units:  1
 Commercial Desc:   
 Occ Type:  1637
 Commercial Class:  C
 MFG Home Length:   
 MFG Home Width:   

Photos

2023 

2023 

Garage, Porch, Basement, Storage, Utility etc.  (GLA=Gross Living Area    GBA=Gross Bldg Area)
Account # Feature Description Sqft/Area Number of Stories

R257131005

 GBA

 GBA

7,597 

1

Additional Details
Account #: Bldg # Description Qty # Of Units Description

R257131005

3

Canopy Walkway Finished

1

480 

Square Feet

R257131005

3

Fence Masonary

1

166 

Linear Feet

R257131005

3

Indoor Pool

1

420 

Square Feet

R257131005

3

Yard Paving Concrete

1

153 

Square Feet

R257131005

3

Yard Paving Concrete

1

4,595 

Square Feet

R257131005

3

Yard Paving Concrete Unsketched

1

20,897 

Square Feet