Larry Stein Oklahoma County Assessor (405) 713-1200 - Public Access System
Home Contact Us Guest Book Map Search New Search
Building Detail Results - Screen Produced   3/3/2026 3:30:10 PM 
 Account #:  R037879300 Bldg #5
Sketch

 Building #: 5
 Built As:  Mixed Retail w Res Units
 # of Stories:  2 Stories
 Square Feet:  6,150
 Year Built:  2023
 Remodel Year:   
 Building Name:  21 CINNAMON PLACE TOO/HARMONY MARCUS GARVEY APARTMENTS
 Alt Land Use Desc:  Platted Commercial
 Quality Desc:  Average
 Bldg Frame Description:  Wood Frame
 Foundation Desc:  Slab
 Bldg Exterior:  Masonry Face Brick
 Roof Type:  Flat
 Roof Cover:   Built Up Rock
 Avg Floor Height:  12
 Percent Sprinkled:   
 Bldg Interior:  
 Total Rooms:   
 # of Units w/Bedrooms: # of units ( ) with   Bedrooms
 # of Baths:  ( )-Full, ( )-3/4, ( )-half
 HVAC Type:  Central Air to Air
 # of Fire Places:   
 Percent Heated:  100
 Physical Condition:  Very Good
 # of Res Units:   
 # of Comm Units:  1
 Commercial Desc:   
 Occ Type:  1459
 Commercial Class:  C
 MFG Home Length:   
 MFG Home Width:   

Photos

2024 

2024 

2023 

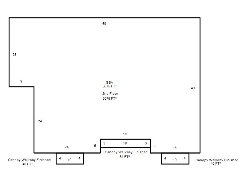
Garage, Porch, Basement, Storage, Utility etc.  (GLA=Gross Living Area    GBA=Gross Bldg Area)
Account # Feature Description Sqft/Area Number of Stories

R037879300

 GBA

 GBA

3,075 

1

R037879300

 GBA2

 2nd Floor

3,075 

1

Additional Details
Account #: Bldg # Description Qty # Of Units Description

R037879300

5

Canopy Walkway Finished

1

40 

Square Feet

R037879300

5

Canopy Walkway Finished

1

54 

Square Feet

R037879300

5

Exempt Storm Shelter

1

Square Feet