Larry Stein Oklahoma County Assessor (405) 713-1200 - Public Access System
Home Contact Us Guest Book Map Search New Search
Building Detail Results - Screen Produced   4/13/2026 11:24:49 PM 
 Account #:  R147531115 Bldg #5
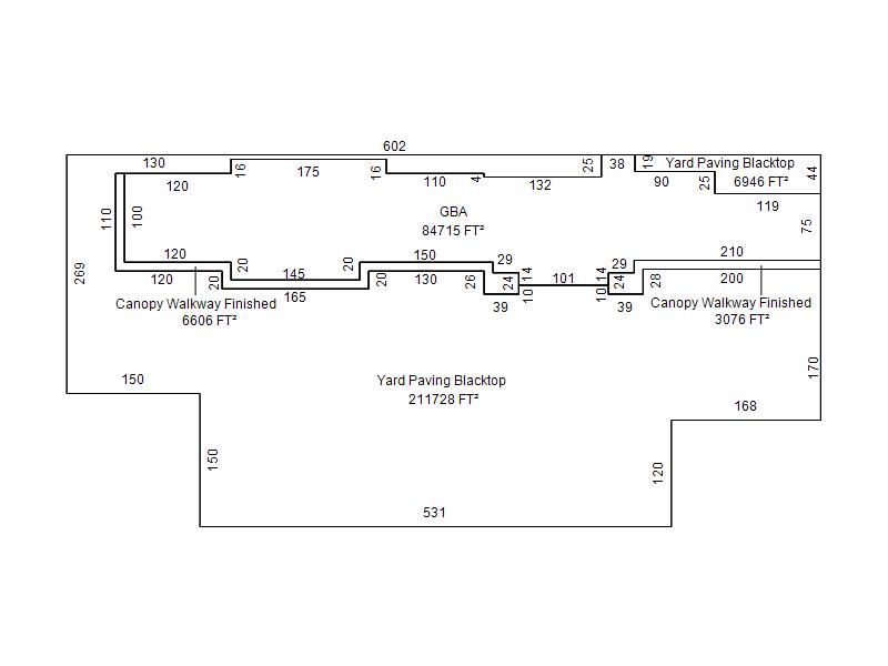
Sketch

 Building #: 5
 Built As:  Neighborhood Shopping Center
 # of Stories:  1 Stories
 Square Feet:  84,715
 Year Built:  1962
 Remodel Year:  2017
 Building Name:  MULTIPLE TENANTS
 Alt Land Use Desc:  Platted Commercial
 Quality Desc:  Average
 Bldg Frame Description:  Masonry
 Foundation Desc:  Slab
 Bldg Exterior:  Masonry Face Brick
 Roof Type:  Flat
 Roof Cover:   Built Up Rock
 Avg Floor Height:  12
 Percent Sprinkled:  0
 Bldg Interior:  
 Total Rooms:   
 # of Units w/Bedrooms: # of units ( ) with   Bedrooms
 # of Baths:  (0)-Full, (0)-3/4, (0)-half
 HVAC Type:  Package Unit
 # of Fire Places:  0
 Percent Heated:  100
 Physical Condition:  Average
 # of Res Units:  0
 # of Comm Units:  22
 Commercial Desc:   
 Occ Type:  0412
 Commercial Class:  C
 MFG Home Length:  0
 MFG Home Width:  0

Photos

2022 

2018 

2017 

2014 

2013 

2010 

2004 

Garage, Porch, Basement, Storage, Utility etc.  (GLA=Gross Living Area    GBA=Gross Bldg Area)
Account # Feature Description Sqft/Area Number of Stories

R147531115

 GBA

 GBA

84,715 

1

Additional Details
Account #: Bldg # Description Qty # Of Units Description

R147531115

5

Canopy Walkway Finished

1

3,076 

Square Feet

R147531115

5

Canopy Walkway Finished

1

6,606 

Square Feet

R147531115

5

Yard Paving Blacktop

1

211,728 

Square Feet

R147531115

5

Yard Paving Blacktop

1

6,946 

Square Feet

R147531115

5

Yard Paving Blacktop Unsketched

1

40,000 

Square Feet

R147531115

5

Yard Paving Concrete Unsketched

1

45,000 

Square Feet