Larry Stein Oklahoma County Assessor (405) 713-1200 - Public Access System
Home Contact Us Guest Book Map Search New Search
Building Detail Results - Screen Produced   4/7/2026 9:26:45 PM 
 Account #:  R133364800 Bldg #6
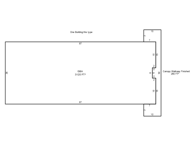
Sketch

 Building #: 6
 Built As:  Multiple - Residential
 # of Stories:  1 Stories
 Square Feet:  3,120
 Year Built:  1972
 Remodel Year:  2020
 Building Name:  UPTOWN @ KELLEY APARTMENTS
 Alt Land Use Desc:  Unplatted Commercial
 Quality Desc:  Fair
 Bldg Frame Description:  Wood Frame
 Foundation Desc:  Slab
 Bldg Exterior:  Frame Brick Veneer
 Roof Type:  Gable
 Roof Cover:   Composition Shingle
 Avg Floor Height:  10
 Percent Sprinkled:  100
 Bldg Interior:  
 Total Rooms:   
 # of Units w/Bedrooms: # of units ( ) with   Bedrooms
 # of Baths:  ( )-Full, ( )-3/4, ( )-half
 HVAC Type:  Central Air to Air
 # of Fire Places:   
 Percent Heated:  100
 Physical Condition:  Average
 # of Res Units:   
 # of Comm Units:   
 Commercial Desc:   
 Occ Type:  0352
 Commercial Class:  C
 MFG Home Length:   
 MFG Home Width:   

Photos

2022 

2021 

2020 

2014 

2010 

Garage, Porch, Basement, Storage, Utility etc.  (GLA=Gross Living Area    GBA=Gross Bldg Area)
Account # Feature Description Sqft/Area Number of Stories

R133364800

 GBA

 GBA

3,120 

1

Additional Details
Account #: Bldg # Description Qty # Of Units Description

R133364800

6

Canopy Walkway Finished

1

260 

Square Feet