|
|
|
| Larry Stein Oklahoma County Assessor (405) 713-1200 - Public Access System |
|
|
|
|
|
|
| Real Property Display - Screen Produced 4/3/2026 2:09:43 PM | ||||
|---|---|---|---|---|
| Account: R195824450 | Type: Residential | Location: |
11111 JEFFORDS AVE |
|
| Building Name/Occupant: |
|
NICOMA PARK |
||
| Owner Name 1: | BULIN ARTHUR |
Parcel PIN#: |
2316-19-582-4450 |
|
| Owner Name 2: | 1/4 section #: |
2316 |
||
| Owner Name 3: | Parent Acct: |
|
||
| Billing Address: | 11111 JEFFORDS AVE | Tax District: |
|
|
| City, State, Zip | CHOCTAW, OK 73020 | School System: |
Choctaw #4 |
|
|
Country: (If noted) |
Land Size: |
1.9400 Acres |
||
|
Land Value: 38,852 |
|
|||
|
Sect 29-T12N-R1W Qtr NW |
NICOMA PARK ADDITION
Block
009
Lot
007
|
|||
| Full Legal Description: NICOMA PARK ADDITION 009 007 |
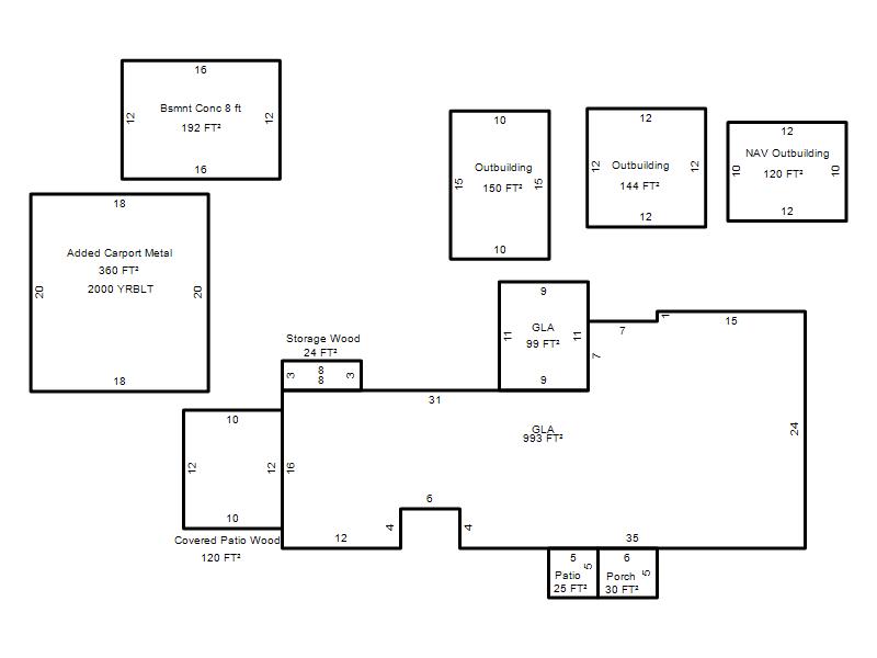
| Photo & Sketch (if available) | Comp Sales (ordered by relevancy) |
|
||||||||||||||||||
|
||||||||||||||||||||
| Value History (*The County Treasurer 405-713-1300 posts & collects actual tax amounts. Contact information HERE) | |||||||||||||
|---|---|---|---|---|---|---|---|---|---|---|---|---|---|
| Year | Market Value | Taxable Mkt Value | Gross Assessed | Exemption | Net Assessed | Millage | Est. Tax | Tax Savings | |||||
|
2026 |
153,000 |
134,734 |
14,820 |
1,000 |
13,820 |
117.21 |
$1,620 |
$353 |
|||||
|
2025 |
162,500 |
130,810 |
14,389 |
1,000 |
13,389 |
117.21 |
$1,569 |
$526 |
|||||
|
2024 |
127,000 |
127,000 |
13,970 |
1,000 |
12,970 |
116.35 |
$1,509 |
$116 |
|||||
|
2023 |
130,000 |
130,000 |
14,300 |
1,000 |
13,300 |
117.10 |
$1,557 |
$117 |
|||||
|
2022 |
106,500 |
72,324 |
7,954 |
1,000 |
6,954 |
115.17 |
$801 |
$548 |
|||||
| Property Account Status/Adjustments/Exemptions | ||
|---|---|---|
| Account # | Exemption Description | Amount |
|
R195824450 |
3% Cap Homestead |
0 |
|
R195824450 |
Homestead |
1,000 |
| Property Deed Transaction History (Recorded in the County Clerk's Office) | ||||||||||
|---|---|---|---|---|---|---|---|---|---|---|
| Date | Type | Book | Page | Price | Grantor | Grantee | ||||
|
11/1/2022 |
|
Deeds |
$129,000 |
CHEEK MARY T |
BULIN ARTHUR |
|||||
|
6/17/2022 |
|
Deeds |
$0 |
CHEEK MARY T |
CHEEK MARY T |
|||||
|
6/11/2022 |
|
Deeds |
$0 |
CHEEK MERRY T ETAL |
CHEEK MARY T |
|||||
|
5/26/2022 |
|
Deeds |
$0 |
CHEEK MARY T |
CHEEK MARY T |
|||||
|
11/27/2017 |
|
Deeds |
$0 |
CHEEK TONEY D |
CHEEK TONEY D |
|||||
| Last Mailed Notice of Value (N.O.V.) Information/History | ||||||||
|---|---|---|---|---|---|---|---|---|
| Year | Date | Market Value | Taxable Market Value | Gross Assessed | Exemption | Net Assessed | ||
|
2026 |
02/06/2026 |
153,000 |
134,734 |
14,820 |
1,000 |
13,820 |
||
|
2025 |
01/31/2025 |
162,500 |
130,810 |
14,389 |
1,000 |
13,389 |
||
|
2023 |
01/23/2023 |
130,000 |
130,000 |
14,300 |
0 |
14,300 |
||
|
2022 |
02/22/2022 |
106,500 |
72,324 |
7,954 |
1,000 |
6,954 |
||
|
2021 |
02/24/2021 |
77,000 |
70,218 |
7,723 |
1,000 |
6,723 |
||
| Property Building Permit History | |||||||||||
|---|---|---|---|---|---|---|---|---|---|---|---|
| Issued | Permit # | Provided by | Bldg # | Description | Est Construction Cost | Status | |||||
| No Building Permit records returned. | |||||||||||
| Click button on building number to access detailed information: | ||||||
|---|---|---|---|---|---|---|
| Bldg # | Vacant/Improved Land | Bldg Description | Year Built | SqFt | # Stories | |
|
1 |
Improved |
Ranch 1 Story |
1928 |
1,092 |
1 Stories |
|