|
|
|
| Larry Stein Oklahoma County Assessor (405) 713-1200 - Public Access System |
|
|
|
|
|
|
| Real Property Display - Screen Produced 4/11/2026 7:57:15 AM | ||||
|---|---|---|---|---|
| Account: R154956670 | Type: Residential | Location: |
736 N POPLAR LN |
|
| Building Name/Occupant: |
|
MIDWEST CITY |
||
| Owner Name 1: | MORRIS JAMIE |
Parcel PIN#: |
2324-15-495-6670 |
|
| Owner Name 2: | 1/4 section #: |
2324 |
||
| Owner Name 3: | Parent Acct: |
|
||
| Billing Address: | 736 N POPLAR LN | Tax District: |
|
|
| City, State, Zip | MIDWEST CITY, OK 73130 | School System: |
Choctaw #4 |
|
|
Country: (If noted) |
Land Size: |
0.3700 Acres |
||
|
Land Value: 24,700 |
|
|||
|
Sect 31-T12N-R1W Qtr NW |
HARPER ADDITION
Block
004
Lot
000
|
|||
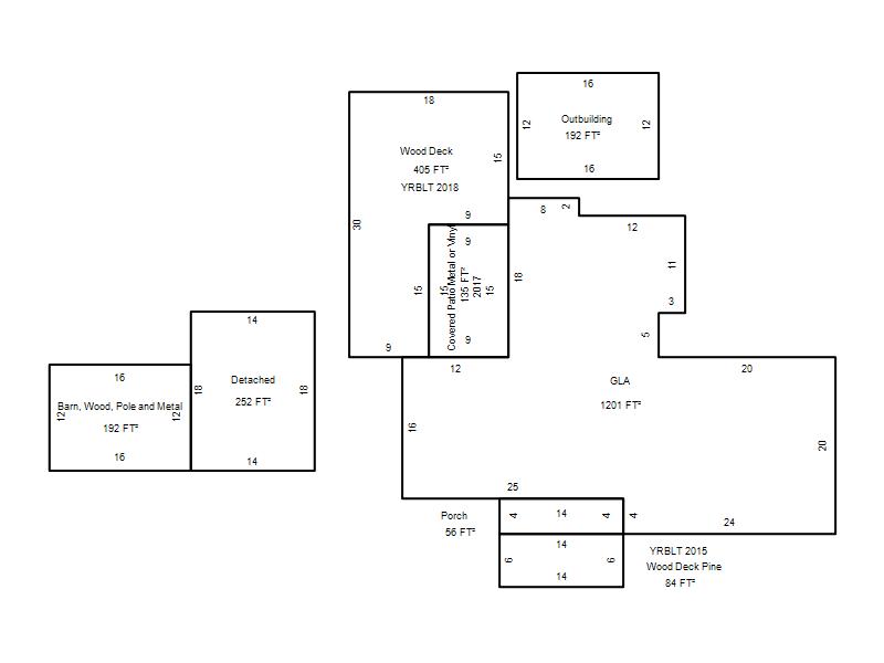
| Full Legal Description: HARPER ADDITION 004 000 W115FT OF N140FT OF LOT 2 |
| Photo & Sketch (if available) | Comp Sales (ordered by relevancy) |
|
||||||||||||||||||
|
||||||||||||||||||||
| Value History (*The County Treasurer 405-713-1300 posts & collects actual tax amounts. Contact information HERE) | |||||||||||||
|---|---|---|---|---|---|---|---|---|---|---|---|---|---|
| Year | Market Value | Taxable Mkt Value | Gross Assessed | Exemption | Net Assessed | Millage | Est. Tax | Tax Savings | |||||
|
2026 |
161,500 |
154,073 |
16,947 |
1,000 |
15,947 |
127.03 |
$2,026 |
$231 |
|||||
|
2025 |
163,000 |
149,586 |
16,454 |
1,000 |
15,454 |
127.03 |
$1,963 |
$314 |
|||||
|
2024 |
154,500 |
145,230 |
15,975 |
1,000 |
14,975 |
127.00 |
$1,902 |
$257 |
|||||
|
2023 |
141,000 |
141,000 |
15,510 |
1,000 |
14,510 |
128.50 |
$1,865 |
$129 |
|||||
|
2022 |
129,000 |
103,968 |
11,436 |
1,000 |
10,436 |
127.22 |
$1,328 |
$478 |
|||||
| Property Account Status/Adjustments/Exemptions | ||
|---|---|---|
| Account # | Exemption Description | Amount |
|
R154956670 |
3% Cap Homestead |
0 |
|
R154956670 |
Homestead |
1,000 |
| Property Deed Transaction History (Recorded in the County Clerk's Office) | ||||||||||
|---|---|---|---|---|---|---|---|---|---|---|
| Date | Type | Book | Page | Price | Grantor | Grantee | ||||
|
12/9/2022 |
|
Deeds |
$129,500 |
HEGG SHERRY M |
MORRIS JAMIE |
|||||
|
6/8/2022 |
|
Deeds |
$123,500 |
BRADSHAW DAVID L |
HEGG SHERRY M |
|||||
|
4/29/2016 |
|
Deeds |
$87,500 |
NUSZ JOE & SUSAN |
BRADSHAW DAVID L |
|||||
|
8/28/2015 |
|
Deeds |
$85,000 |
KILLGORE SHERRI L |
NUSZ JOE & SUSAN |
|||||
|
11/14/2001 |
|
Deeds |
$60,500 |
SPRINGER SARAH N & BRAD A C/O DOUGLAS & REBECCA OLLAR |
KILLGORE SHERRI L |
|||||
| Last Mailed Notice of Value (N.O.V.) Information/History | ||||||||
|---|---|---|---|---|---|---|---|---|
| Year | Date | Market Value | Taxable Market Value | Gross Assessed | Exemption | Net Assessed | ||
|
2026 |
02/06/2026 |
161,500 |
154,073 |
16,947 |
1,000 |
15,947 |
||
|
2025 |
01/31/2025 |
163,000 |
149,586 |
16,454 |
1,000 |
15,454 |
||
|
2024 |
01/22/2024 |
154,500 |
145,230 |
15,975 |
1,000 |
14,975 |
||
|
2023 |
01/23/2023 |
141,000 |
141,000 |
15,510 |
0 |
15,510 |
||
|
2022 |
02/22/2022 |
129,000 |
103,968 |
11,436 |
1,000 |
10,436 |
||
| Property Building Permit History | |||||||||||
|---|---|---|---|---|---|---|---|---|---|---|---|
| Issued | Permit # | Provided by | Bldg # | Description | Est Construction Cost | Status | |||||
| No Building Permit records returned. | |||||||||||
| Click button on building number to access detailed information: | ||||||
|---|---|---|---|---|---|---|
| Bldg # | Vacant/Improved Land | Bldg Description | Year Built | SqFt | # Stories | |
|
1 |
Improved |
Ranch 1 Story |
1934 |
1,201 |
1 Stories |
|