|
|
|
| Larry Stein Oklahoma County Assessor (405) 713-1200 - Public Access System |
|
|
|
|
|
|
| Real Property Display - Screen Produced 4/1/2026 2:45:55 AM | ||||
|---|---|---|---|---|
| Account: R154411660 | Type: Residential | Location: |
3812 ROSEWOOD CT |
|
| Building Name/Occupant: |
|
MIDWEST CITY |
||
| Owner Name 1: | JOHNSON JASON K & COURTNEY P |
Parcel PIN#: |
2506-15-441-1660 |
|
| Owner Name 2: | 1/4 section #: |
2506 |
||
| Owner Name 3: | Parent Acct: |
|
||
| Billing Address: | 7324 NE 94TH ST | Tax District: |
|
|
| City, State, Zip | OKLAHOMA CITY, OK 73151 | School System: |
Oklahoma City #89 |
|
|
Country: (If noted) |
Land Size: |
0.2210 Acres |
||
|
Land Value: 22,619 |
|
|||
|
Sect 27-T12N-R2W Qtr SE |
RIDGEVIEW HEIGHTS 2ND
Block
004
Lot
004
|
|||
| Full Legal Description: RIDGEVIEW HEIGHTS 2ND 004 004 |
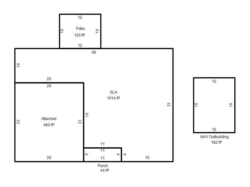
| Photo & Sketch (if available) | Comp Sales (ordered by relevancy) |
|
||||||||||||||||||
|
||||||||||||||||||||
| Value History (*The County Treasurer 405-713-1300 posts & collects actual tax amounts. Contact information HERE) | |||||||||||||
|---|---|---|---|---|---|---|---|---|---|---|---|---|---|
| Year | Market Value | Taxable Mkt Value | Gross Assessed | Exemption | Net Assessed | Millage | Est. Tax | Tax Savings | |||||
|
2026 |
118,000 |
118,000 |
12,980 |
0 |
12,980 |
114.34 |
$1,484 |
$0 |
|||||
|
2025 |
120,500 |
120,500 |
13,255 |
0 |
13,255 |
114.34 |
$1,516 |
$0 |
|||||
|
2024 |
120,000 |
120,000 |
13,200 |
0 |
13,200 |
116.11 |
$1,533 |
$0 |
|||||
|
2023 |
114,000 |
79,047 |
8,695 |
0 |
8,695 |
115.66 |
$1,006 |
$445 |
|||||
|
2022 |
99,500 |
75,283 |
8,280 |
0 |
8,280 |
110.02 |
$911 |
$293 |
|||||
| Property Account Status/Adjustments/Exemptions | ||
|---|---|---|
| Account # | Exemption Description | Amount |
|
R154411660 |
5% Capped Account |
0 |
| Property Deed Transaction History (Recorded in the County Clerk's Office) | ||||||||||
|---|---|---|---|---|---|---|---|---|---|---|
| Date | Type | Book | Page | Price | Grantor | Grantee | ||||
|
8/30/2023 |
|
Deeds |
$113,000 |
WEBB FREDERICK W & DONNA J |
JOHNSON JASON K & COURTNEY P |
|||||
|
10/15/2013 |
|
Deeds |
$49,000 |
FRANKS MELVIN E |
WEBB FREDERICK W & DONNA J |
|||||
|
11/8/2011 |
|
Deeds |
$0 |
FRANKS MELVIN & LINDA G |
FRANKS MELVIN E |
|||||
|
12/29/2006 |
|
Deeds |
$0 |
FRANKS MELVIN E & LINDA G |
FRANKS MELVIN E & LINDA G |
|||||
|
12/21/2006 |
|
Deeds |
$0 |
FRANKS MELVIN E & LINDA S |
FRANKS MELVIN E |
|||||
| Last Mailed Notice of Value (N.O.V.) Information/History | ||||||||
|---|---|---|---|---|---|---|---|---|
| Year | Date | Market Value | Taxable Market Value | Gross Assessed | Exemption | Net Assessed | ||
|
2025 |
02/14/2025 |
120,500 |
120,500 |
13,255 |
0 |
13,255 |
||
|
2024 |
02/13/2024 |
120,000 |
120,000 |
13,200 |
0 |
13,200 |
||
|
2023 |
02/14/2023 |
114,000 |
79,047 |
8,695 |
0 |
8,695 |
||
|
2022 |
03/15/2022 |
99,500 |
75,283 |
8,280 |
0 |
8,280 |
||
|
2021 |
03/19/2021 |
82,000 |
71,699 |
7,886 |
0 |
7,886 |
||
| Property Building Permit History | |||||||||||
|---|---|---|---|---|---|---|---|---|---|---|---|
| Issued | Permit # | Provided by | Bldg # | Description | Est Construction Cost | Status | |||||
| No Building Permit records returned. | |||||||||||
| Click button on building number to access detailed information: | ||||||
|---|---|---|---|---|---|---|
| Bldg # | Vacant/Improved Land | Bldg Description | Year Built | SqFt | # Stories | |
|
1 |
Improved |
Ranch 1 Story |
1967 |
1,014 |
1 Stories |
|