|
|
|
| Larry Stein Oklahoma County Assessor (405) 713-1200 - Public Access System |
|
|
|
|
|
|
| Real Property Display - Screen Produced 4/2/2026 7:25:39 AM | ||||
|---|---|---|---|---|
| Account: R020101885 | Type: Residential | Location: |
3032 NE 16TH ST |
|
| Building Name/Occupant: |
|
OKLAHOMA CITY |
||
| Owner Name 1: | LOGANATHAN ANANDAKKUMAAR P |
Parcel PIN#: |
2519-02-010-1885 |
|
| Owner Name 2: | 1/4 section #: |
2519 |
||
| Owner Name 3: | Parent Acct: |
|
||
| Billing Address: | 16223 119TH PL NE | Tax District: |
|
|
| City, State, Zip | BOTHELL, WA 98011-6494 | School System: |
Oklahoma City #89 |
|
|
Country: (If noted) |
Land Size: |
0.1768 Acres |
||
|
Land Value: 12,705 |
|
|||
|
Sect 30-T12N-R2W Qtr SW |
GARDEN OAKS
Block
007
Lot
008
|
|||
| Full Legal Description: GARDEN OAKS 007 008 |
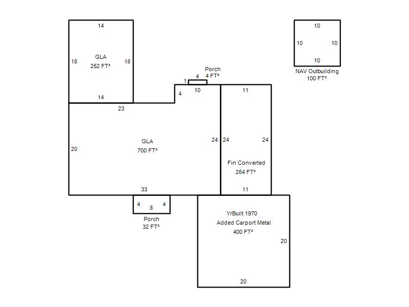
| Photo & Sketch (if available) | Comp Sales (ordered by relevancy) |
|
||||||||||||||||||
|
||||||||||||||||||||
| Value History (*The County Treasurer 405-713-1300 posts & collects actual tax amounts. Contact information HERE) | |||||||||||||
|---|---|---|---|---|---|---|---|---|---|---|---|---|---|
| Year | Market Value | Taxable Mkt Value | Gross Assessed | Exemption | Net Assessed | Millage | Est. Tax | Tax Savings | |||||
|
2026 |
98,500 |
96,468 |
10,611 |
0 |
10,611 |
122.90 |
$1,304 |
$27 |
|||||
|
2025 |
99,500 |
91,875 |
10,106 |
0 |
10,106 |
122.90 |
$1,242 |
$103 |
|||||
|
2024 |
87,500 |
87,500 |
9,625 |
0 |
9,625 |
123.89 |
$1,192 |
$0 |
|||||
|
2023 |
76,000 |
76,000 |
8,360 |
0 |
8,360 |
122.82 |
$1,027 |
$0 |
|||||
|
2022 |
59,000 |
21,383 |
2,351 |
1,000 |
1,351 |
117.63 |
$159 |
$604 |
|||||
| Property Account Status/Adjustments/Exemptions | ||
|---|---|---|
| Account # | Exemption Description | Amount |
|
R020101885 |
5% Capped Account |
0 |
| Property Deed Transaction History (Recorded in the County Clerk's Office) | ||||||||||
|---|---|---|---|---|---|---|---|---|---|---|
| Date | Type | Book | Page | Price | Grantor | Grantee | ||||
|
7/21/2023 |
|
Deeds |
$135,000 |
LILLIAN LAND & PROPERTY GROUP LLC |
LOGANATHAN ANANDAKKUMAAR P |
|||||
|
11/7/2022 |
|
Hmstd Off & |
$0 |
LILLIAN LAND & PROPERTY GROUP LLC |
CARVER ZACHARY MICHAEL & KAITLYN NICOLE |
|||||
|
11/7/2022 |
|
Hmstd Off & |
$0 |
CARVER ZACHARY MICHAEL & KAITLYN NICOLE |
LILLIAN LAND & PROPERTY GROUP LLC |
|||||
|
8/19/2022 |
|
Deeds |
$55,000 |
BROWN DENISE L |
OGLE PROPERTY SOLUTIONS LLC |
|||||
|
8/19/2022 |
|
Deeds |
$75,000 |
OGLE PROPERTY SOLUTIONS LLC |
LILLIAN LAND & PROPERTY GROUP LLC |
|||||
| Last Mailed Notice of Value (N.O.V.) Information/History | ||||||||
|---|---|---|---|---|---|---|---|---|
| Year | Date | Market Value | Taxable Market Value | Gross Assessed | Exemption | Net Assessed | ||
|
2026 |
02/23/2026 |
98,500 |
96,468 |
10,611 |
0 |
10,611 |
||
|
2025 |
02/14/2025 |
99,500 |
91,875 |
10,106 |
0 |
10,106 |
||
|
2024 |
02/13/2024 |
87,500 |
87,500 |
9,625 |
0 |
9,625 |
||
|
2023 |
02/14/2023 |
76,000 |
76,000 |
8,360 |
0 |
8,360 |
||
|
2022 |
03/15/2022 |
59,000 |
21,383 |
2,351 |
1,000 |
1,351 |
||
| Property Building Permit History | ||||||
|---|---|---|---|---|---|---|
| Issued | Permit # | Provided by | Bldg # | Description | Est Construction Cost | Status |
|
2/20/1992 |
10188062 |
OKLAHOMA CITY |
1 |
Add On |
4,000 |
Inactive |
| Click button on building number to access detailed information: | ||||||
|---|---|---|---|---|---|---|
| Bldg # | Vacant/Improved Land | Bldg Description | Year Built | SqFt | # Stories | |
|
1 |
Improved |
Ranch 1 Story |
1953 |
952 |
1 Stories |
|