|
|
|
| Larry Stein Oklahoma County Assessor (405) 713-1200 - Public Access System |
|
|
|
|
|
|
| Real Property Display - Screen Produced 4/2/2026 5:57:58 AM | ||||
|---|---|---|---|---|
| Account: R150571825 | Type: Residential | Location: |
700 GREENWOOD DR |
|
| Building Name/Occupant: |
|
MIDWEST CITY |
||
| Owner Name 1: | MCCORMICK HENRY III & COURTNEY |
Parcel PIN#: |
2530-15-057-1825 |
|
| Owner Name 2: | 1/4 section #: |
2530 |
||
| Owner Name 3: | Parent Acct: |
|
||
| Billing Address: | 700 GREENWOOD DR | Tax District: |
|
|
| City, State, Zip | MIDWEST CITY, OK 73110 | School System: |
Mid-Del #52 |
|
|
Country: (If noted) |
Land Size: |
0.1791 Acres |
||
|
Land Value: 27,300 |
|
|||
|
Sect 33-T12N-R2W Qtr SE |
MEADOWOOD 3RD
Block
004
Lot
000
|
|||
| Full Legal Description: MEADOWOOD 3RD 004 000 LOT 19 & W5FT OF LOT 20 |
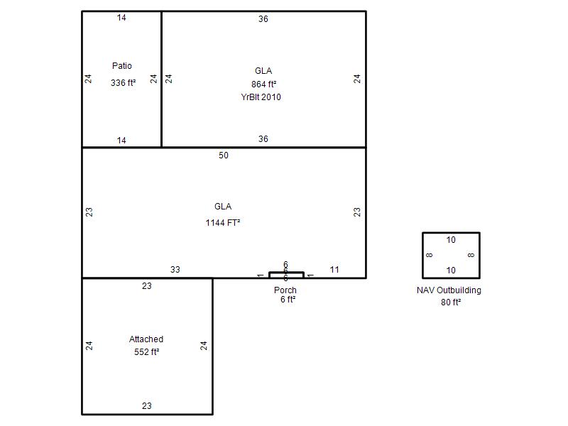
| Photo & Sketch (if available) | Comp Sales (ordered by relevancy) |
|
||||||||||||||||||
|
||||||||||||||||||||
| Value History (*The County Treasurer 405-713-1300 posts & collects actual tax amounts. Contact information HERE) | |||||||||||||
|---|---|---|---|---|---|---|---|---|---|---|---|---|---|
| Year | Market Value | Taxable Mkt Value | Gross Assessed | Exemption | Net Assessed | Millage | Est. Tax | Tax Savings | |||||
|
2026 |
223,000 |
223,000 |
24,530 |
0 |
24,530 |
119.58 |
$2,933 |
$0 |
|||||
|
2025 |
244,500 |
217,604 |
23,935 |
0 |
23,935 |
119.58 |
$2,862 |
$354 |
|||||
|
2024 |
242,000 |
207,242 |
22,796 |
0 |
22,796 |
122.51 |
$2,793 |
$468 |
|||||
|
2023 |
231,500 |
197,374 |
21,710 |
0 |
21,710 |
117.71 |
$2,556 |
$442 |
|||||
|
2022 |
208,000 |
187,976 |
20,676 |
0 |
20,676 |
116.64 |
$2,412 |
$257 |
|||||
| Property Account Status/Adjustments/Exemptions | ||||||
|---|---|---|---|---|---|---|
| Account # | Exemption Description | Amount | ||||
| No adjustment/exemption records returned. | ||||||
| Property Deed Transaction History (Recorded in the County Clerk's Office) | ||||||||||
|---|---|---|---|---|---|---|---|---|---|---|
| Date | Type | Book | Page | Price | Grantor | Grantee | ||||
|
3/6/2026 |
|
Deeds |
$270,000 |
GOLD CEDAR DEVELOPMENT LLC |
MCCORMICK HENRY III & COURTNEY |
|||||
|
1/31/2025 |
|
Deeds |
$205,000 |
PATTERSON JAMES W & DANIELLE N |
GOLD CEDAR DEVELOPMENT LLC |
|||||
|
8/23/2019 |
|
Deeds |
$165,000 |
EVANS CALEB J |
PATTERSON JAMES W & DANIELLE N |
|||||
|
11/13/2013 |
|
Deeds |
$137,000 |
WHITEMAN RONNIE R & LISA F |
EVANS CALEB J |
|||||
|
7/5/1991 |
|
Historical |
$61,000 |
DILLOW LARRY G & MARY J |
WHITEMAN RONNIE R & LISA F |
|||||
| Last Mailed Notice of Value (N.O.V.) Information/History | ||||||||
|---|---|---|---|---|---|---|---|---|
| Year | Date | Market Value | Taxable Market Value | Gross Assessed | Exemption | Net Assessed | ||
|
2026 |
02/23/2026 |
223,000 |
223,000 |
24,530 |
0 |
24,530 |
||
|
2026 |
03/30/2026 |
223,000 |
223,000 |
24,530 |
0 |
24,530 |
||
|
2025 |
02/14/2025 |
244,500 |
217,604 |
23,935 |
0 |
23,935 |
||
|
2025 |
03/28/2025 |
244,500 |
217,604 |
23,935 |
0 |
23,935 |
||
|
2024 |
02/13/2024 |
242,000 |
207,242 |
22,796 |
0 |
22,796 |
||
| Property Building Permit History | ||||||
|---|---|---|---|---|---|---|
| Issued | Permit # | Provided by | Bldg # | Description | Est Construction Cost | Status |
|
10/29/2010 |
10411831 |
MIDWEST CITY |
1 |
Add On |
10,000 |
Inactive |
|
1/27/2010 |
10392613 |
MIDWEST CITY |
1 |
Add On |
0 |
Inactive |
|
6/16/1998 |
10246507 |
MIDWEST CITY |
1 |
Add On |
6,000 |
Inactive |
| Click button on building number to access detailed information: | ||||||
|---|---|---|---|---|---|---|
| Bldg # | Vacant/Improved Land | Bldg Description | Year Built | SqFt | # Stories | |
|
1 |
Improved |
Ranch 1 Story |
1964 |
2,008 |
1 Stories |
|