|
|
|
| Larry Stein Oklahoma County Assessor (405) 713-1200 - Public Access System |
|
|
|
|
|
|
| Real Property Display - Screen Produced 4/6/2026 8:52:14 AM | ||||
|---|---|---|---|---|
| Account: R144194010 | Type: Residential | Location: |
15300 SE 44TH ST |
|
| Building Name/Occupant: |
|
OKLAHOMA CITY |
||
| Owner Name 1: | GUERRA MICHAEL |
Parcel PIN#: |
1296-14-419-4010 |
|
| Owner Name 2: | GUERRA DEBRA A | 1/4 section #: |
1296 |
|
| Owner Name 3: | Parent Acct: |
|
||
| Billing Address: | 15300 SE 44TH ST | Tax District: |
|
|
| City, State, Zip | CHOCTAW, OK 73020-6055 | School System: |
Choctaw #4 |
|
|
Country: (If noted) |
Land Size: |
5.0400 Acres |
||
|
Land Value: 74,708 |
|
|||
|
Sect 24-T11N-R1W Qtr NW |
UNPLTD PT SEC 24 11N 1W
Block
000
Lot
000
|
|||
| Full Legal Description: UNPLTD PT SEC 24 11N 1W BEG NE/C OF W/2 OF NE4 OF NW4 TH S687FT W313.7FT N687FT E313.7FT TO BEG EXC N33FT |
| Photo & Sketch (if available) | Comp Sales (ordered by relevancy) |
|
||||||||||||||||||
|
||||||||||||||||||||
| Value History (*The County Treasurer 405-713-1300 posts & collects actual tax amounts. Contact information HERE) | |||||||||||||
|---|---|---|---|---|---|---|---|---|---|---|---|---|---|
| Year | Market Value | Taxable Mkt Value | Gross Assessed | Exemption | Net Assessed | Millage | Est. Tax | Tax Savings | |||||
|
2026 |
426,500 |
426,500 |
46,915 |
0 |
46,915 |
132.37 |
$6,210 |
$0 |
|||||
|
2025 |
343,500 |
343,500 |
37,785 |
0 |
37,785 |
132.37 |
$5,002 |
$0 |
|||||
|
2024 |
337,000 |
242,978 |
26,726 |
0 |
26,726 |
131.28 |
$3,509 |
$1,358 |
|||||
|
2023 |
313,500 |
231,408 |
25,454 |
1,000 |
24,454 |
131.88 |
$3,225 |
$1,323 |
|||||
|
2022 |
271,500 |
224,668 |
24,712 |
1,000 |
23,712 |
130.63 |
$3,098 |
$804 |
|||||
| Property Account Status/Adjustments/Exemptions | ||||||
|---|---|---|---|---|---|---|
| Account # | Exemption Description | Amount | ||||
| No adjustment/exemption records returned. | ||||||
| Property Deed Transaction History (Recorded in the County Clerk's Office) | ||||||||||
|---|---|---|---|---|---|---|---|---|---|---|
| Date | Type | Book | Page | Price | Grantor | Grantee | ||||
|
3/19/2025 |
|
Deeds |
$417,000 |
ARNOLD CHAD CHRISTOPHER & LINDSIE MARIE |
GUERRA MICHAEL |
|||||
|
3/19/2025 |
|
Deeds |
$0 |
GUERRA MICHAEL & DEBRA A |
GUERRA MICHAEL |
|||||
|
1/24/2024 |
|
Deeds |
$262,500 |
BANK OF NEW YORK MELLON TRS |
ARNOLD CHAD CHRISTOPHER & LINDSIE MARIE |
|||||
|
10/24/2023 |
|
Hmstd Off & |
$0 |
SCOTT LISA MICHELLE |
BANK OF NEW YORK MELLON TRS |
|||||
|
12/15/2011 |
|
Deeds |
$0 |
DAVIS KINSEY |
SCOTT LISA MICHELLE |
|||||
| Last Mailed Notice of Value (N.O.V.) Information/History | ||||||||
|---|---|---|---|---|---|---|---|---|
| Year | Date | Market Value | Taxable Market Value | Gross Assessed | Exemption | Net Assessed | ||
|
2026 |
02/06/2026 |
426,500 |
426,500 |
46,915 |
0 |
46,915 |
||
|
2025 |
01/31/2025 |
343,500 |
343,500 |
37,785 |
0 |
37,785 |
||
|
2024 |
01/22/2024 |
337,000 |
242,978 |
26,726 |
0 |
26,726 |
||
|
2024 |
03/01/2024 |
337,000 |
242,978 |
26,726 |
0 |
26,726 |
||
|
2023 |
01/23/2023 |
313,500 |
231,408 |
25,454 |
1,000 |
24,454 |
||
| Property Building Permit History | |||||||||||
|---|---|---|---|---|---|---|---|---|---|---|---|
| Issued | Permit # | Provided by | Bldg # | Description | Est Construction Cost | Status | |||||
| No Building Permit records returned. | |||||||||||
| Click button on building number to access detailed information: | ||||||
|---|---|---|---|---|---|---|
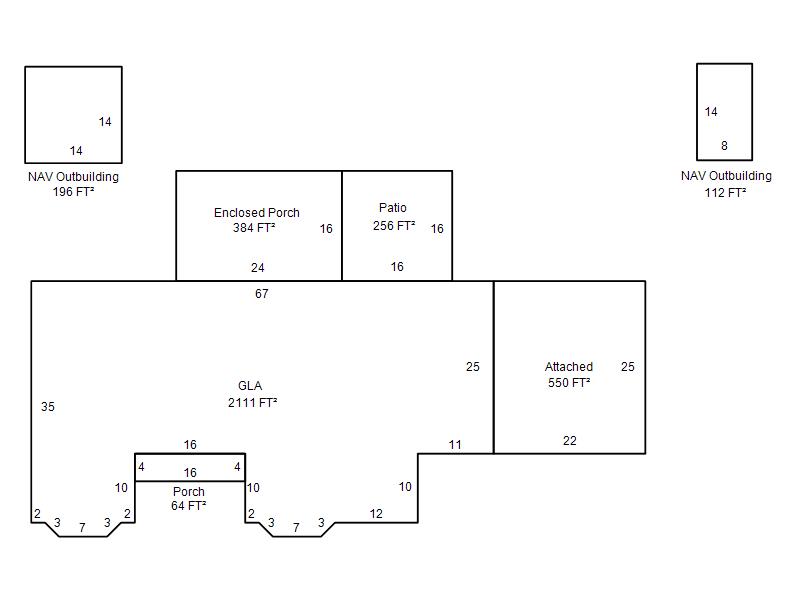
| Bldg # | Vacant/Improved Land | Bldg Description | Year Built | SqFt | # Stories | |
|
1 |
Improved |
Ranch 1 Story |
1978 |
2,111 |
1 Stories |
|