|
|
|
| Larry Stein Oklahoma County Assessor (405) 713-1200 - Public Access System |
|
|
|
|
|
|
| Real Property Display - Screen Produced 4/2/2026 2:43:35 AM | ||||
|---|---|---|---|---|
| Account: R152051475 | Type: Residential | Location: |
3321 MEADOWBROOK DR |
|
| Building Name/Occupant: |
|
MIDWEST CITY |
||
| Owner Name 1: | MCCLEES JAYSON |
Parcel PIN#: |
2536-15-205-1475 |
|
| Owner Name 2: | 1/4 section #: |
2536 |
||
| Owner Name 3: | Parent Acct: |
|
||
| Billing Address: | 3321 MEADOWBROOK DR | Tax District: |
|
|
| City, State, Zip | MIDWEST CITY, OK 73110-3809 | School System: |
Mid-Del #52 |
|
|
Country: (If noted) |
Land Size: |
0.3296 Acres |
||
|
Land Value: 38,051 |
|
|||
|
Sect 34-T12N-R2W Qtr NW |
RIDGECREST HTS
Block
002
Lot
036
|
|||
| Full Legal Description: RIDGECREST HTS 002 036 |
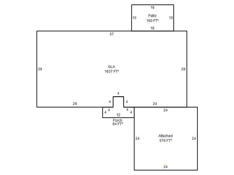
| Photo & Sketch (if available) | Comp Sales (ordered by relevancy) |
|
||||||||||||||||||
|
||||||||||||||||||||
| Value History (*The County Treasurer 405-713-1300 posts & collects actual tax amounts. Contact information HERE) | |||||||||||||
|---|---|---|---|---|---|---|---|---|---|---|---|---|---|
| Year | Market Value | Taxable Mkt Value | Gross Assessed | Exemption | Net Assessed | Millage | Est. Tax | Tax Savings | |||||
|
2026 |
214,000 |
214,000 |
23,540 |
0 |
23,540 |
119.58 |
$2,815 |
$0 |
|||||
|
2025 |
181,000 |
140,910 |
15,499 |
1,000 |
14,499 |
119.58 |
$1,734 |
$647 |
|||||
|
2024 |
180,000 |
136,806 |
15,048 |
1,000 |
14,048 |
122.51 |
$1,721 |
$705 |
|||||
|
2023 |
172,000 |
132,822 |
14,609 |
1,000 |
13,609 |
117.71 |
$1,602 |
$625 |
|||||
|
2022 |
153,500 |
128,954 |
14,184 |
1,000 |
13,184 |
116.64 |
$1,538 |
$432 |
|||||
| Property Account Status/Adjustments/Exemptions | ||||||
|---|---|---|---|---|---|---|
| Account # | Exemption Description | Amount | ||||
| No adjustment/exemption records returned. | ||||||
| Property Deed Transaction History (Recorded in the County Clerk's Office) | |||||||
|---|---|---|---|---|---|---|---|
| Date | Type | Book | Page | Price | Grantor | Grantee | |
|
1/16/2024 |
|
Deeds |
$220,000 |
EATON ANNE M |
MCCLEES JAYSON |
||
|
4/10/2017 |
|
Deeds |
$0 |
EATON ANNE MCROBERT |
EATON ANNE M |
||
|
4/7/2017 |
|
Deeds |
$0 |
EATON DALE W & ANNE MCROBERT |
EATON ANNE MCROBERT |
||
|
10/1/1975 |
|
Historical |
$0 |
|
EATON DALE W & ANNE M |
||
| Last Mailed Notice of Value (N.O.V.) Information/History | ||||||||
|---|---|---|---|---|---|---|---|---|
| Year | Date | Market Value | Taxable Market Value | Gross Assessed | Exemption | Net Assessed | ||
|
2026 |
02/23/2026 |
214,000 |
214,000 |
23,540 |
0 |
23,540 |
||
|
2025 |
02/14/2025 |
181,000 |
140,910 |
15,499 |
1,000 |
14,499 |
||
|
2024 |
02/13/2024 |
180,000 |
136,806 |
15,048 |
1,000 |
14,048 |
||
|
2023 |
02/14/2023 |
172,000 |
132,822 |
14,609 |
1,000 |
13,609 |
||
|
2022 |
03/15/2022 |
153,500 |
128,954 |
14,184 |
1,000 |
13,184 |
||
| Property Building Permit History | |||||||||||
|---|---|---|---|---|---|---|---|---|---|---|---|
| Issued | Permit # | Provided by | Bldg # | Description | Est Construction Cost | Status | |||||
| No Building Permit records returned. | |||||||||||
| Click button on building number to access detailed information: | ||||||
|---|---|---|---|---|---|---|
| Bldg # | Vacant/Improved Land | Bldg Description | Year Built | SqFt | # Stories | |
|
1 |
Improved |
Ranch 1 Story |
1959 |
1,637 |
1 Stories |
|