|
|
|
| Larry Stein Oklahoma County Assessor (405) 713-1200 - Public Access System |
|
|
|
|
|
|
| Real Property Display - Screen Produced 4/6/2026 8:52:15 AM | ||||
|---|---|---|---|---|
| Account: R152052725 | Type: Residential | Location: |
201 W SILVER MEADOW DR |
|
| Building Name/Occupant: |
|
MIDWEST CITY |
||
| Owner Name 1: | HARDCASTLE ROBERT B & SARAH L |
Parcel PIN#: |
2536-15-205-2725 |
|
| Owner Name 2: | 1/4 section #: |
2536 |
||
| Owner Name 3: | Parent Acct: |
|
||
| Billing Address: | 201 W SILVER MEADOW DR | Tax District: |
|
|
| City, State, Zip | MIDWEST CITY, OK 73110-3749 | School System: |
Mid-Del #52 |
|
|
Country: (If noted) |
Land Size: |
0.2626 Acres |
||
|
Land Value: 30,313 |
|
|||
|
Sect 34-T12N-R2W Qtr NW |
RIDGECREST HTS
Block
009
Lot
005
|
|||
| Full Legal Description: RIDGECREST HTS 009 005 |
| Photo & Sketch (if available) | Comp Sales (ordered by relevancy) |
|
||||||||||||||||||
|
||||||||||||||||||||
| Value History (*The County Treasurer 405-713-1300 posts & collects actual tax amounts. Contact information HERE) | |||||||||||||
|---|---|---|---|---|---|---|---|---|---|---|---|---|---|
| Year | Market Value | Taxable Mkt Value | Gross Assessed | Exemption | Net Assessed | Millage | Est. Tax | Tax Savings | |||||
|
2026 |
184,000 |
184,000 |
20,240 |
1,000 |
19,240 |
119.58 |
$2,301 |
$120 |
|||||
|
2025 |
186,500 |
186,500 |
20,515 |
1,000 |
19,515 |
119.58 |
$2,334 |
$120 |
|||||
|
2024 |
186,000 |
156,191 |
17,180 |
0 |
17,180 |
122.51 |
$2,105 |
$402 |
|||||
|
2023 |
177,000 |
148,754 |
16,362 |
0 |
16,362 |
117.71 |
$1,926 |
$366 |
|||||
|
2022 |
159,000 |
141,671 |
15,583 |
0 |
15,583 |
116.64 |
$1,818 |
$222 |
|||||
| Property Account Status/Adjustments/Exemptions | ||
|---|---|---|
| Account # | Exemption Description | Amount |
|
R152052725 |
3% Cap Homestead |
0 |
|
R152052725 |
Homestead |
1,000 |
| Property Deed Transaction History (Recorded in the County Clerk's Office) | |||||||
|---|---|---|---|---|---|---|---|
| Date | Type | Book | Page | Price | Grantor | Grantee | |
|
4/30/2024 |
|
Deeds |
$185,000 |
MENDENHALL JAMES V TRS LF EST |
HARDCASTLE ROBERT B & SARAH L |
||
|
4/29/2022 |
|
Hmstd Off & |
$0 |
MENDENHALL JAMES |
MENDENHALL JAMES V TRS LF EST |
||
|
11/3/2014 |
|
Deeds |
$105,000 |
MCCARTER ERNESTINE TRS MCCARTER ERNESTINE REV TRUST |
MENDENHALL JAMES |
||
|
1/4/1996 |
|
Historical |
$0 |
PARSONS ERNESTINE M |
MCCARTER ERNESTINE TRS |
||
|
11/1/1972 |
|
Historical |
$0 |
|
PARSONS ERNESTINE M |
||
| Last Mailed Notice of Value (N.O.V.) Information/History | ||||||||
|---|---|---|---|---|---|---|---|---|
| Year | Date | Market Value | Taxable Market Value | Gross Assessed | Exemption | Net Assessed | ||
|
2025 |
02/14/2025 |
186,500 |
186,500 |
20,515 |
0 |
20,515 |
||
|
2024 |
02/13/2024 |
186,000 |
156,191 |
17,180 |
0 |
17,180 |
||
|
2023 |
02/14/2023 |
177,000 |
148,754 |
16,362 |
0 |
16,362 |
||
|
2022 |
03/15/2022 |
159,000 |
141,671 |
15,583 |
0 |
15,583 |
||
|
2021 |
03/19/2021 |
138,000 |
134,925 |
14,841 |
0 |
14,841 |
||
| Property Building Permit History | ||||||
|---|---|---|---|---|---|---|
| Issued | Permit # | Provided by | Bldg # | Description | Est Construction Cost | Status |
|
9/29/2016 |
10487377 |
MIDWEST CITY |
1 |
Storage Buil |
2,500 |
Inactive |
| Click button on building number to access detailed information: | ||||||
|---|---|---|---|---|---|---|
| Bldg # | Vacant/Improved Land | Bldg Description | Year Built | SqFt | # Stories | |
|
1 |
Improved |
Ranch 1 Story |
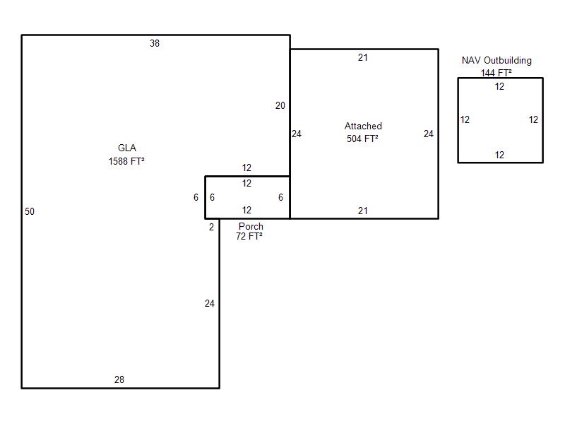
1960 |
1,588 |
1 Stories |
|