|
|
|
| Larry Stein Oklahoma County Assessor (405) 713-1200 - Public Access System |
|
|
|
|
|
|
| Real Property Display - Screen Produced 4/1/2026 2:55:59 PM | ||||
|---|---|---|---|---|
| Account: R155471100 | Type: Residential | Location: |
1516 PARKWOODS TER |
|
| Building Name/Occupant: |
|
MIDWEST CITY |
||
| Owner Name 1: | DILLINGHAM CHI ELLA |
Parcel PIN#: |
2537-15-547-1100 |
|
| Owner Name 2: | 1/4 section #: |
2537 |
||
| Owner Name 3: | Parent Acct: |
|
||
| Billing Address: | 1516 PARKWOODS TER | Tax District: |
|
|
| City, State, Zip | MIDWEST CITY, OK 73110-7443 | School System: |
Oklahoma City #89 |
|
|
Country: (If noted) |
Land Size: |
0.1928 Acres |
||
|
Land Value: 17,388 |
|
|||
|
Sect 35-T12N-R2W Qtr NE |
PARKWOOD 3RD ADD
Block
002
Lot
001
|
|||
| Full Legal Description: PARKWOOD 3RD ADD 002 001 |
| Photo & Sketch (if available) | Comp Sales (ordered by relevancy) |
|
||||||||||||||||||
|
||||||||||||||||||||
| Value History (*The County Treasurer 405-713-1300 posts & collects actual tax amounts. Contact information HERE) | |||||||||||||
|---|---|---|---|---|---|---|---|---|---|---|---|---|---|
| Year | Market Value | Taxable Mkt Value | Gross Assessed | Exemption | Net Assessed | Millage | Est. Tax | Tax Savings | |||||
|
2026 |
190,500 |
190,500 |
20,955 |
0 |
20,955 |
114.34 |
$2,396 |
$0 |
|||||
|
2025 |
185,500 |
185,500 |
20,405 |
0 |
20,405 |
114.34 |
$2,333 |
$0 |
|||||
|
2024 |
142,000 |
98,719 |
10,859 |
0 |
10,859 |
116.11 |
$1,261 |
$553 |
|||||
|
2023 |
129,500 |
94,019 |
10,341 |
0 |
10,341 |
115.66 |
$1,196 |
$451 |
|||||
|
2022 |
109,500 |
89,542 |
9,849 |
0 |
9,849 |
110.02 |
$1,084 |
$242 |
|||||
| Property Account Status/Adjustments/Exemptions | ||
|---|---|---|
| Account # | Exemption Description | Amount |
|
R155471100 |
5% Capped Account |
0 |
| Property Deed Transaction History (Recorded in the County Clerk's Office) | ||||||||||
|---|---|---|---|---|---|---|---|---|---|---|
| Date | Type | Book | Page | Price | Grantor | Grantee | ||||
|
10/25/2024 |
|
Deeds |
$190,000 |
SPARK BRIXTON LLC |
DILLINGHAM CHI ELLA |
|||||
|
5/6/2024 |
|
Deeds |
$100,000 |
NGUYEN TOM |
PEREZ INVESTMENTS LLC |
|||||
|
5/6/2024 |
|
Deeds |
$115,000 |
PEREZ INVESTMENTS LLC |
SPARK BRIXTON LLC |
|||||
|
4/13/2019 |
|
Hmstd Off & |
$0 |
TRAN ANDRE BINH |
NGUYEN TOM |
|||||
|
4/11/2017 |
|
Hmstd Off & |
$0 |
BUI MY THI |
TRAN ANDRE BINH |
|||||
| Last Mailed Notice of Value (N.O.V.) Information/History | ||||||||
|---|---|---|---|---|---|---|---|---|
| Year | Date | Market Value | Taxable Market Value | Gross Assessed | Exemption | Net Assessed | ||
|
2026 |
02/23/2026 |
190,500 |
190,500 |
20,955 |
0 |
20,955 |
||
|
2025 |
03/28/2025 |
185,500 |
185,500 |
20,405 |
0 |
20,405 |
||
|
2024 |
02/13/2024 |
142,000 |
98,719 |
10,859 |
0 |
10,859 |
||
|
2023 |
02/14/2023 |
129,500 |
94,019 |
10,341 |
0 |
10,341 |
||
|
2022 |
03/15/2022 |
109,500 |
89,542 |
9,849 |
0 |
9,849 |
||
| Property Building Permit History | |||||||||||
|---|---|---|---|---|---|---|---|---|---|---|---|
| Issued | Permit # | Provided by | Bldg # | Description | Est Construction Cost | Status | |||||
| No Building Permit records returned. | |||||||||||
| Click button on building number to access detailed information: | ||||||
|---|---|---|---|---|---|---|
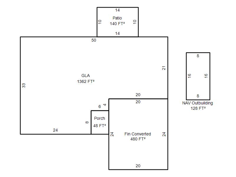
| Bldg # | Vacant/Improved Land | Bldg Description | Year Built | SqFt | # Stories | |
|
1 |
Improved |
Ranch 1 Story |
1972 |
1,362 |
1 Stories |
|