|
|
|
| Larry Stein Oklahoma County Assessor (405) 713-1200 - Public Access System |
|
|
|
|
|
|
| Real Property Display - Screen Produced 4/9/2026 7:55:43 AM | ||||
|---|---|---|---|---|
| Account: R079904775 | Type: Residential | Location: |
2745 CLERMONT PL |
|
| Building Name/Occupant: |
|
OKLAHOMA CITY |
||
| Owner Name 1: | FRANKS MARISA C |
Parcel PIN#: |
2624-07-990-4775 |
|
| Owner Name 2: | 1/4 section #: |
2624 |
||
| Owner Name 3: | Parent Acct: |
|
||
| Billing Address: | 2745 CLERMONT PL | Tax District: |
|
|
| City, State, Zip | OKLAHOMA CITY, OK 73116-4204 | School System: |
Oklahoma City #89 |
|
|
Country: (If noted) |
Land Size: |
0.2066 Acres |
||
|
Land Value: 38,250 |
|
|||
|
Sect 6-T12N-R3W Qtr NW |
NICHOLS COUNTRY CLUB HEIGHTS
Block
127
Lot
019
|
|||
| Full Legal Description: NICHOLS COUNTRY CLUB HEIGHTS 127 019 |
| Photo & Sketch (if available) | Comp Sales (ordered by relevancy) |
|
||||||||||||||||||
|
||||||||||||||||||||
| Value History (*The County Treasurer 405-713-1300 posts & collects actual tax amounts. Contact information HERE) | |||||||||||||
|---|---|---|---|---|---|---|---|---|---|---|---|---|---|
| Year | Market Value | Taxable Mkt Value | Gross Assessed | Exemption | Net Assessed | Millage | Est. Tax | Tax Savings | |||||
|
2026 |
170,500 |
170,500 |
18,755 |
1,000 |
17,755 |
122.90 |
$2,182 |
$123 |
|||||
|
2025 |
169,000 |
169,000 |
18,590 |
1,000 |
17,590 |
122.90 |
$2,162 |
$123 |
|||||
|
2024 |
165,000 |
165,000 |
18,150 |
1,000 |
17,150 |
123.89 |
$2,125 |
$124 |
|||||
|
2023 |
149,000 |
112,676 |
12,394 |
1,000 |
11,394 |
122.82 |
$1,399 |
$614 |
|||||
|
2022 |
126,500 |
112,676 |
12,393 |
1,000 |
11,393 |
117.63 |
$1,340 |
$297 |
|||||
| Property Account Status/Adjustments/Exemptions | ||
|---|---|---|
| Account # | Exemption Description | Amount |
|
R079904775 |
3% Cap Homestead |
0 |
|
R079904775 |
Homestead |
1,000 |
| Property Deed Transaction History (Recorded in the County Clerk's Office) | ||||||||||
|---|---|---|---|---|---|---|---|---|---|---|
| Date | Type | Book | Page | Price | Grantor | Grantee | ||||
|
11/8/2023 |
|
Deeds |
$0 |
STRICKLAND MARY ELLEN |
STRICKLAND MARY ELLEN TRS |
|||||
|
11/8/2023 |
|
Deeds |
$204,500 |
STRICKLAND MARY ELLEN TRS |
FRANKS MARISA C |
|||||
|
9/8/2021 |
|
Hmstd Off & |
$0 |
STRICKLAND MARY ELLEN |
STRICKLAND MARY ELLEN TRS |
|||||
|
8/21/2021 |
|
Hmstd Off & |
$0 |
GAVULA DEBORAH |
STRICKLAND MARY ELLEN |
|||||
|
4/24/1992 |
|
Historical |
$0 |
STRICKLAND MARY J |
GAVULA DEBORAH |
|||||
| Last Mailed Notice of Value (N.O.V.) Information/History | ||||||||
|---|---|---|---|---|---|---|---|---|
| Year | Date | Market Value | Taxable Market Value | Gross Assessed | Exemption | Net Assessed | ||
|
2026 |
02/23/2026 |
170,500 |
170,500 |
18,755 |
1,000 |
17,755 |
||
|
2025 |
02/14/2025 |
169,000 |
169,000 |
18,590 |
1,000 |
17,590 |
||
|
2024 |
02/13/2024 |
165,000 |
165,000 |
18,150 |
1,000 |
17,150 |
||
|
2023 |
02/14/2023 |
149,000 |
112,676 |
12,394 |
1,000 |
11,394 |
||
|
2022 |
03/15/2022 |
126,500 |
112,676 |
12,393 |
1,000 |
11,393 |
||
| Property Building Permit History | |||||||||||
|---|---|---|---|---|---|---|---|---|---|---|---|
| Issued | Permit # | Provided by | Bldg # | Description | Est Construction Cost | Status | |||||
| No Building Permit records returned. | |||||||||||
| Click button on building number to access detailed information: | ||||||
|---|---|---|---|---|---|---|
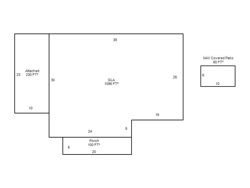
| Bldg # | Vacant/Improved Land | Bldg Description | Year Built | SqFt | # Stories | |
|
1 |
Improved |
Ranch 1 Story |
1949 |
1,095 |
1 Stories |
|