|
|
|
| Larry Stein Oklahoma County Assessor (405) 713-1200 - Public Access System |
|
|
|
|
|
|
| Real Property Display - Screen Produced 4/4/2026 4:59:22 PM | ||||
|---|---|---|---|---|
| Account: R114641060 | Type: Residential | Location: |
2524 NW 58TH PL |
|
| Building Name/Occupant: |
|
OKLAHOMA CITY |
||
| Owner Name 1: | BURKE JAMES W JR |
Parcel PIN#: |
2628-11-464-1060 |
|
| Owner Name 2: | KILGORE MARTHA K | 1/4 section #: |
2628 |
|
| Owner Name 3: | Parent Acct: |
|
||
| Billing Address: | 200 HUNTER DR | Tax District: |
|
|
| City, State, Zip | ADA, OK 74820 | School System: |
Oklahoma City #89 |
|
|
Country: (If noted) |
Land Size: |
0.1894 Acres |
||
|
Land Value: 61,875 |
|
|||
|
Sect 7-T12N-R3W Qtr NW |
ORTNERS FAIRDALE 1ST
Block
001
Lot
007
|
|||
| Full Legal Description: ORTNERS FAIRDALE 1ST 001 007 |
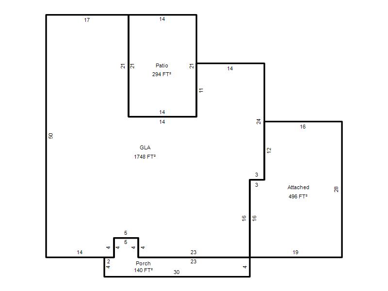
| Photo & Sketch (if available) | Comp Sales (ordered by relevancy) |
|
||||||||||||||||||
|
||||||||||||||||||||
| Value History (*The County Treasurer 405-713-1300 posts & collects actual tax amounts. Contact information HERE) | |||||||||||||
|---|---|---|---|---|---|---|---|---|---|---|---|---|---|
| Year | Market Value | Taxable Mkt Value | Gross Assessed | Exemption | Net Assessed | Millage | Est. Tax | Tax Savings | |||||
|
2026 |
373,000 |
372,755 |
41,002 |
0 |
41,002 |
122.90 |
$5,039 |
$3 |
|||||
|
2025 |
366,500 |
355,005 |
39,050 |
0 |
39,050 |
122.90 |
$4,799 |
$155 |
|||||
|
2024 |
341,000 |
338,100 |
37,191 |
0 |
37,191 |
123.89 |
$4,608 |
$40 |
|||||
|
2023 |
322,000 |
322,000 |
35,420 |
0 |
35,420 |
122.82 |
$4,350 |
$0 |
|||||
|
2022 |
297,000 |
278,775 |
30,665 |
0 |
30,665 |
117.63 |
$3,607 |
$236 |
|||||
| Property Account Status/Adjustments/Exemptions | ||
|---|---|---|
| Account # | Exemption Description | Amount |
|
R114641060 |
5% Capped Account |
0 |
| Property Deed Transaction History (Recorded in the County Clerk's Office) | ||||||||||
|---|---|---|---|---|---|---|---|---|---|---|
| Date | Type | Book | Page | Price | Grantor | Grantee | ||||
|
8/26/2022 |
|
Deeds |
$305,000 |
SITTON MARK & DANIELLE |
BURKE JAMES W JR |
|||||
|
8/9/2013 |
|
Deeds |
$234,000 |
ROBINSON ZACHARY M |
SITTON MARK & DANIELLE |
|||||
|
3/13/2009 |
|
Deeds |
$200,000 |
G T PROPERTIES LLC |
ROBINSON ZACHARY M |
|||||
|
12/10/2008 |
|
Deeds |
$125,000 |
WELLS FARGO BANK |
G T PROPERTIES LLC |
|||||
|
9/8/2008 |
|
Hmstd Off & |
$0 |
MASSAD RODNEY K |
WELLS FARGO BANK |
|||||
| Last Mailed Notice of Value (N.O.V.) Information/History | ||||||||
|---|---|---|---|---|---|---|---|---|
| Year | Date | Market Value | Taxable Market Value | Gross Assessed | Exemption | Net Assessed | ||
|
2026 |
02/23/2026 |
373,000 |
372,755 |
41,002 |
0 |
41,002 |
||
|
2025 |
02/14/2025 |
366,500 |
355,005 |
39,050 |
0 |
39,050 |
||
|
2024 |
02/13/2024 |
341,000 |
338,100 |
37,191 |
0 |
37,191 |
||
|
2023 |
02/14/2023 |
322,000 |
322,000 |
35,420 |
0 |
35,420 |
||
|
2022 |
03/15/2022 |
297,000 |
278,775 |
30,665 |
0 |
30,665 |
||
| Property Building Permit History | ||||||
|---|---|---|---|---|---|---|
| Issued | Permit # | Provided by | Bldg # | Description | Est Construction Cost | Status |
|
3/2/1994 |
10205478 |
OKLAHOMA CITY |
1 |
Fire Remodel |
30,000 |
Inactive |
|
2/7/1994 |
10205477 |
OKLAHOMA CITY |
1 |
Burn - Trip |
33,000 |
Inactive |
| Click button on building number to access detailed information: | ||||||
|---|---|---|---|---|---|---|
| Bldg # | Vacant/Improved Land | Bldg Description | Year Built | SqFt | # Stories | |
|
1 |
Improved |
Ranch 1 Story |
1962 |
1,748 |
1 Stories |
|