|
|
|
| Larry Stein Oklahoma County Assessor (405) 713-1200 - Public Access System |
|
|
|
|
|
|
| Real Property Display - Screen Produced 4/2/2026 4:11:22 PM | ||||
|---|---|---|---|---|
| Account: R142815035 | Type: Residential | Location: |
8304 S ANDERSON RD |
|
| Building Name/Occupant: |
|
OKLAHOMA CITY |
||
| Owner Name 1: | ROSSEN JESSE MELVIN |
Parcel PIN#: |
1331-14-281-5035 |
|
| Owner Name 2: | 1/4 section #: |
1331 |
||
| Owner Name 3: | Parent Acct: |
|
||
| Billing Address: | 3105 NW 32ND ST | Tax District: |
|
|
| City, State, Zip | OKLAHOMA CITY, OK 73112-6712 | School System: |
Mid-Del #52 |
|
|
Country: (If noted) |
Land Size: |
5.0000 Acres |
||
|
Land Value: 62,490 |
|
|||
|
Sect 33-T11N-R1W Qtr SW |
UNPLTD PT SEC 33 11N 1W
Block
000
Lot
000
|
|||
| Full Legal Description: UNPLTD PT SW4 SEC 33 11N 1W E 1/2 OF W 1/2 OF N 1/2 OF N 1/2 OF N 1/2 OF SW4 CONT 5ACRS MORE OR LESS |
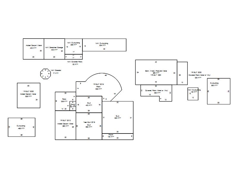
| Photo & Sketch (if available) | Comp Sales (ordered by relevancy) |
|
||||||||||||||||||
|
||||||||||||||||||||
| Value History (*The County Treasurer 405-713-1300 posts & collects actual tax amounts. Contact information HERE) | |||||||||||||
|---|---|---|---|---|---|---|---|---|---|---|---|---|---|
| Year | Market Value | Taxable Mkt Value | Gross Assessed | Exemption | Net Assessed | Millage | Est. Tax | Tax Savings | |||||
|
2026 |
343,000 |
343,000 |
37,730 |
0 |
37,730 |
126.46 |
$4,771 |
$0 |
|||||
|
2025 |
355,000 |
355,000 |
39,050 |
0 |
39,050 |
126.46 |
$4,938 |
$0 |
|||||
|
2024 |
413,000 |
171,063 |
18,816 |
0 |
18,816 |
128.51 |
$2,418 |
$3,420 |
|||||
|
2023 |
210,082 |
162,918 |
17,920 |
0 |
17,920 |
122.94 |
$2,203 |
$638 |
|||||
|
2022 |
207,302 |
155,160 |
17,066 |
0 |
17,066 |
122.11 |
$2,084 |
$700 |
|||||
| Property Account Status/Adjustments/Exemptions | ||||||
|---|---|---|---|---|---|---|
| Account # | Exemption Description | Amount | ||||
| No adjustment/exemption records returned. | ||||||
| Property Deed Transaction History (Recorded in the County Clerk's Office) | |||||||
|---|---|---|---|---|---|---|---|
| Date | Type | Book | Page | Price | Grantor | Grantee | |
|
3/31/2025 |
|
Deeds |
$368,000 |
DECKER BRIAN |
ROSSEN JESSE MELVIN |
||
|
9/17/2024 |
|
Deeds |
$350,000 |
MENDOZA ELISEO & BARBIE |
DECKER BRIAN |
||
|
6/8/2011 |
|
Deeds |
$110,000 |
CASTRONOVO JACK F & VIVA M |
MENDOZA ELISEO & BARBIE |
||
|
10/1/1983 |
|
Historical |
$0 |
|
CASTRONOVO JACK F & VIVA M |
||
| Last Mailed Notice of Value (N.O.V.) Information/History | ||||||||
|---|---|---|---|---|---|---|---|---|
| Year | Date | Market Value | Taxable Market Value | Gross Assessed | Exemption | Net Assessed | ||
|
2025 |
03/28/2025 |
355,000 |
355,000 |
39,050 |
0 |
39,050 |
||
|
2024 |
01/22/2024 |
244,315 |
171,063 |
18,816 |
0 |
18,816 |
||
|
2023 |
01/23/2023 |
210,082 |
162,918 |
17,920 |
0 |
17,920 |
||
|
2022 |
02/22/2022 |
207,302 |
155,160 |
17,066 |
0 |
17,066 |
||
|
2021 |
02/24/2021 |
158,359 |
147,772 |
16,254 |
0 |
16,254 |
||
| Property Building Permit History | |||||||||||
|---|---|---|---|---|---|---|---|---|---|---|---|
| Issued | Permit # | Provided by | Bldg # | Description | Est Construction Cost | Status | |||||
| No Building Permit records returned. | |||||||||||
| Click button on building number to access detailed information: | ||||||
|---|---|---|---|---|---|---|
| Bldg # | Vacant/Improved Land | Bldg Description | Year Built | SqFt | # Stories | |
|
1 |
Improved |
Ranch 1 Story |
1948 |
1,980 |
1 Stories |
|