|
|
|
| Larry Stein Oklahoma County Assessor (405) 713-1200 - Public Access System |
|
|
|
|
|
|
| Real Property Display - Screen Produced 4/4/2026 5:53:18 PM | ||||
|---|---|---|---|---|
| Account: R149802455 | Type: Residential | Location: |
1312 NE 56TH ST |
|
| Building Name/Occupant: |
|
OKLAHOMA CITY |
||
| Owner Name 1: | CRAVENS SHERAD LEVITO |
Parcel PIN#: |
2643-14-980-2455 |
|
| Owner Name 2: | 1/4 section #: |
2643 |
||
| Owner Name 3: | Parent Acct: |
|
||
| Billing Address: | 1312 NE 56TH ST | Tax District: |
|
|
| City, State, Zip | OKLAHOMA CITY, OK 73111-6708 | School System: |
Millwood #37 |
|
|
Country: (If noted) |
Land Size: |
0.4567 Acres |
||
|
Land Value: 51,727 |
|
|||
|
Sect 11-T12N-R3W Qtr SW |
CASHIONS WILDEWOOD
Block
10A
Lot
006
|
|||
| Full Legal Description: CASHIONS WILDEWOOD 10A 006 |
| Photo & Sketch (if available) | Comp Sales (ordered by relevancy) |
|
||||||||||||||||||
|
||||||||||||||||||||
| Value History (*The County Treasurer 405-713-1300 posts & collects actual tax amounts. Contact information HERE) | |||||||||||||
|---|---|---|---|---|---|---|---|---|---|---|---|---|---|
| Year | Market Value | Taxable Mkt Value | Gross Assessed | Exemption | Net Assessed | Millage | Est. Tax | Tax Savings | |||||
|
2026 |
248,500 |
248,500 |
27,335 |
1,000 |
26,335 |
131.17 |
$3,454 |
$131 |
|||||
|
2025 |
243,500 |
243,500 |
26,785 |
1,000 |
25,785 |
131.17 |
$3,382 |
$131 |
|||||
|
2024 |
230,500 |
172,650 |
18,991 |
1,000 |
17,991 |
132.60 |
$2,386 |
$976 |
|||||
|
2023 |
213,000 |
167,622 |
18,438 |
1,000 |
17,438 |
134.52 |
$2,346 |
$806 |
|||||
|
2022 |
176,500 |
162,740 |
17,901 |
1,000 |
16,901 |
129.77 |
$2,193 |
$326 |
|||||
| Property Account Status/Adjustments/Exemptions | ||
|---|---|---|
| Account # | Exemption Description | Amount |
|
R149802455 |
3% Cap Homestead |
0 |
|
R149802455 |
Homestead |
1,000 |
| Property Deed Transaction History (Recorded in the County Clerk's Office) | ||||||||||
|---|---|---|---|---|---|---|---|---|---|---|
| Date | Type | Book | Page | Price | Grantor | Grantee | ||||
|
10/25/2024 |
|
Deeds |
$280,000 |
CRAVENS SHERRYE LASHAWN |
CRAVENS SHERAD LEVITO |
|||||
|
8/21/2024 |
|
Deeds |
$0 |
CRAWFORD JEFFERY |
CRAVENS SHERRYE LASHAWN |
|||||
|
2/23/2024 |
|
Deeds |
$0 |
CRAWFORD JEFFERY |
CRAVENS SHERRYE LASHAWN |
|||||
|
4/11/2012 |
|
Hmstd Off & |
$0 |
CRAVENS SHERAD L |
CRAVENS SHERRYE L |
|||||
|
8/25/2005 |
|
Deeds |
$140,000 |
BROOKS ROLAND |
CRAVENS SHERAD L |
|||||
| Last Mailed Notice of Value (N.O.V.) Information/History | ||||||||
|---|---|---|---|---|---|---|---|---|
| Year | Date | Market Value | Taxable Market Value | Gross Assessed | Exemption | Net Assessed | ||
|
2026 |
02/23/2026 |
248,500 |
248,500 |
27,335 |
1,000 |
26,335 |
||
|
2025 |
02/14/2025 |
243,500 |
243,500 |
26,785 |
1,000 |
25,785 |
||
|
2024 |
02/13/2024 |
230,500 |
172,650 |
18,991 |
1,000 |
17,991 |
||
|
2024 |
04/05/2024 |
230,500 |
172,650 |
18,991 |
1,000 |
17,991 |
||
|
2023 |
02/14/2023 |
213,000 |
167,622 |
18,438 |
1,000 |
17,438 |
||
| Property Building Permit History | |||||||||||
|---|---|---|---|---|---|---|---|---|---|---|---|
| Issued | Permit # | Provided by | Bldg # | Description | Est Construction Cost | Status | |||||
| No Building Permit records returned. | |||||||||||
| Click button on building number to access detailed information: | ||||||
|---|---|---|---|---|---|---|
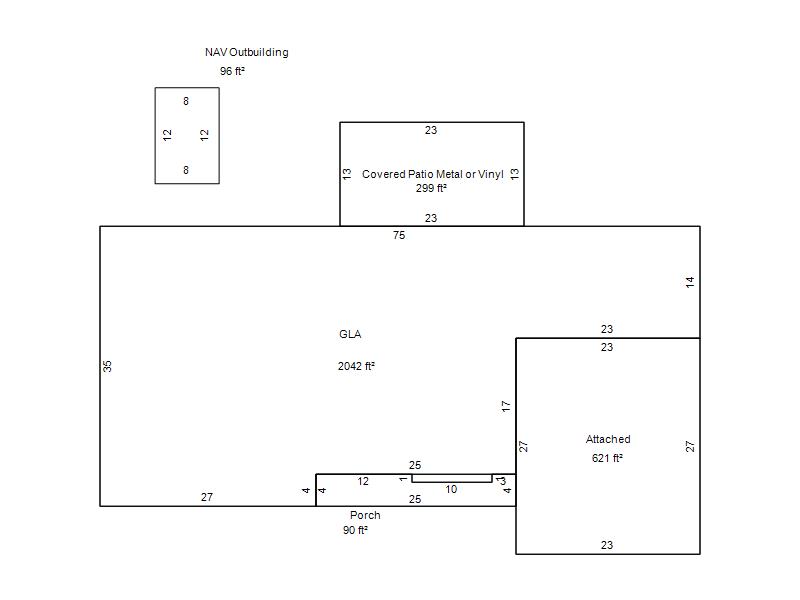
| Bldg # | Vacant/Improved Land | Bldg Description | Year Built | SqFt | # Stories | |
|
1 |
Improved |
Ranch 1 Story |
1962 |
2,042 |
1 Stories |
|