|
|
|
| Larry Stein Oklahoma County Assessor (405) 713-1200 - Public Access System |
|
|
|
|
|
|
| Real Property Display - Screen Produced 4/4/2026 8:58:58 AM | ||||
|---|---|---|---|---|
| Account: R089709280 | Type: Residential | Location: |
1307 NE 37TH ST |
|
| Building Name/Occupant: |
|
OKLAHOMA CITY |
||
| Owner Name 1: | JASSO JOSE CASTELLANOS |
Parcel PIN#: |
2655-08-970-9280 |
|
| Owner Name 2: | 1/4 section #: |
2655 |
||
| Owner Name 3: | Parent Acct: |
|
||
| Billing Address: | 7440 NW 6TH ST | Tax District: |
|
|
| City, State, Zip | OKLAHOMA CITY, OK 73127-5106 | School System: |
Oklahoma City #89 |
|
|
Country: (If noted) |
Land Size: |
0.1832 Acres |
||
|
Land Value: 15,960 |
|
|||
|
Sect 14-T12N-R3W Qtr SW |
PARK ESTATES ADD
Block
018
Lot
000
|
|||
| Full Legal Description: PARK ESTATES ADD 018 000 W23FT OF LOT 6 & E34FT OF LOT 7 |
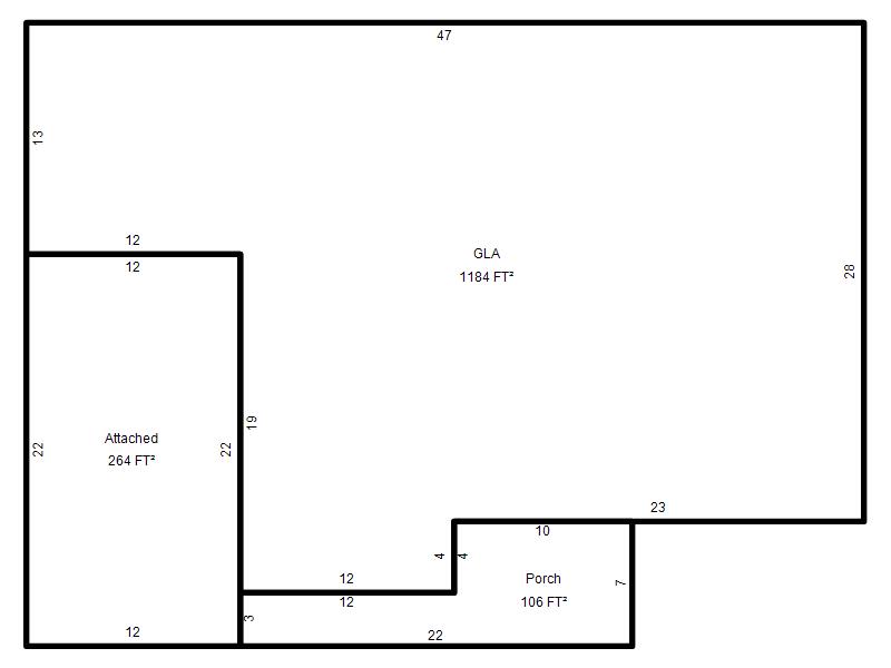
| Photo & Sketch (if available) | Comp Sales (ordered by relevancy) |
|
||||||||||||||||||
|
||||||||||||||||||||
| Value History (*The County Treasurer 405-713-1300 posts & collects actual tax amounts. Contact information HERE) | |||||||||||||
|---|---|---|---|---|---|---|---|---|---|---|---|---|---|
| Year | Market Value | Taxable Mkt Value | Gross Assessed | Exemption | Net Assessed | Millage | Est. Tax | Tax Savings | |||||
|
2026 |
149,000 |
149,000 |
16,390 |
0 |
16,390 |
122.90 |
$2,014 |
$0 |
|||||
|
2025 |
142,000 |
142,000 |
15,620 |
0 |
15,620 |
122.90 |
$1,920 |
$0 |
|||||
|
2024 |
85,500 |
85,500 |
9,405 |
0 |
9,405 |
123.89 |
$1,165 |
$0 |
|||||
|
2023 |
81,000 |
43,685 |
4,804 |
0 |
4,804 |
122.82 |
$590 |
$504 |
|||||
|
2022 |
58,500 |
41,605 |
4,575 |
0 |
4,575 |
117.63 |
$538 |
$219 |
|||||
| Property Account Status/Adjustments/Exemptions | ||
|---|---|---|
| Account # | Exemption Description | Amount |
|
R089709280 |
5% Capped Account |
0 |
| Property Deed Transaction History (Recorded in the County Clerk's Office) | |||||||
|---|---|---|---|---|---|---|---|
| Date | Type | Book | Page | Price | Grantor | Grantee | |
|
11/6/2024 |
|
Deeds |
$145,000 |
CHECKERS INVESTMENTS INC |
JASSO JOSE CASTELLANOS |
||
|
6/12/2023 |
|
Other |
$0 |
TULLIS LEON JR |
CHECKERS INVESTMENTS INC |
||
|
6/13/1980 |
|
Deeds |
$24,000 |
NEWSOM TEX C/O NEWSOM INVESTMENT |
TULLIS LEON JR |
||
|
6/1/1980 |
|
Historical |
$0 |
|
NEWSOM TEX |
||
| Last Mailed Notice of Value (N.O.V.) Information/History | ||||||||
|---|---|---|---|---|---|---|---|---|
| Year | Date | Market Value | Taxable Market Value | Gross Assessed | Exemption | Net Assessed | ||
|
2026 |
02/23/2026 |
149,000 |
149,000 |
16,390 |
0 |
16,390 |
||
|
2025 |
02/14/2025 |
142,000 |
142,000 |
15,620 |
0 |
15,620 |
||
|
2024 |
02/13/2024 |
85,500 |
85,500 |
9,405 |
0 |
9,405 |
||
|
2023 |
02/14/2023 |
81,000 |
43,685 |
4,804 |
0 |
4,804 |
||
|
2022 |
03/15/2022 |
58,500 |
41,605 |
4,575 |
0 |
4,575 |
||
| Property Building Permit History | |||||||||||
|---|---|---|---|---|---|---|---|---|---|---|---|
| Issued | Permit # | Provided by | Bldg # | Description | Est Construction Cost | Status | |||||
| No Building Permit records returned. | |||||||||||
| Click button on building number to access detailed information: | ||||||
|---|---|---|---|---|---|---|
| Bldg # | Vacant/Improved Land | Bldg Description | Year Built | SqFt | # Stories | |
|
1 |
Improved |
Ranch 1 Story |
1950 |
1,184 |
1 Stories |
|