|
|
|
| Larry Stein Oklahoma County Assessor (405) 713-1200 - Public Access System |
|
|
|
|
|
|
| Real Property Display - Screen Produced 4/4/2026 7:18:09 AM | ||||
|---|---|---|---|---|
| Account: R119721130 | Type: Residential | Location: |
4317 N EVEREST AVE |
|
| Building Name/Occupant: |
|
OKLAHOMA CITY |
||
| Owner Name 1: | KING DENNIE R & ROBBIO |
Parcel PIN#: |
2656-11-972-1130 |
|
| Owner Name 2: | 1/4 section #: |
2656 |
||
| Owner Name 3: | Parent Acct: |
|
||
| Billing Address: | 4317 N EVEREST AVE | Tax District: |
|
|
| City, State, Zip | OKLAHOMA CITY, OK 73111-5619 | School System: |
Oklahoma City #89 |
|
|
Country: (If noted) |
Land Size: |
0.1820 Acres |
||
|
Land Value: 9,120 |
|
|||
|
Sect 14-T12N-R3W Qtr NW |
PARK ESTATES RANCH
Block
001
Lot
013
|
|||
| Full Legal Description: PARK ESTATES RANCH 001 013 S61FT |
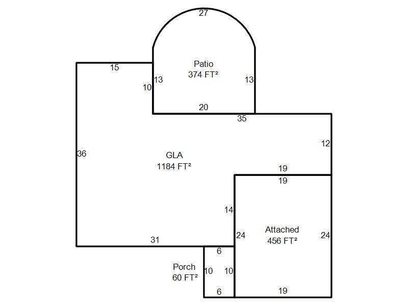
| Photo & Sketch (if available) | Comp Sales (ordered by relevancy) |
|
||||||||||||||||||
|
||||||||||||||||||||
| Value History (*The County Treasurer 405-713-1300 posts & collects actual tax amounts. Contact information HERE) | |||||||||||||
|---|---|---|---|---|---|---|---|---|---|---|---|---|---|
| Year | Market Value | Taxable Mkt Value | Gross Assessed | Exemption | Net Assessed | Millage | Est. Tax | Tax Savings | |||||
|
2026 |
149,000 |
149,000 |
16,390 |
0 |
16,390 |
122.90 |
$2,014 |
$0 |
|||||
|
2025 |
125,000 |
125,000 |
13,750 |
0 |
13,750 |
122.90 |
$1,690 |
$0 |
|||||
|
2024 |
118,000 |
75,559 |
8,310 |
0 |
8,310 |
123.89 |
$1,030 |
$578 |
|||||
|
2023 |
92,500 |
71,961 |
7,914 |
0 |
7,914 |
122.82 |
$972 |
$277 |
|||||
|
2022 |
83,000 |
68,535 |
7,537 |
0 |
7,537 |
117.63 |
$887 |
$187 |
|||||
| Property Account Status/Adjustments/Exemptions | ||||||
|---|---|---|---|---|---|---|
| Account # | Exemption Description | Amount | ||||
| No adjustment/exemption records returned. | ||||||
| Property Deed Transaction History (Recorded in the County Clerk's Office) | |||||||
|---|---|---|---|---|---|---|---|
| Date | Type | Book | Page | Price | Grantor | Grantee | |
|
3/19/2025 |
|
Deeds |
$171,500 |
ORBIT HOMES & CONSTRUCTION LLC |
KING DENNIE R & ROBBIO |
||
|
9/25/2024 |
|
Deeds |
$100,000 |
COLEMAN STEPHANIE D |
ORBIT HOMES & CONSTRUCTION LLC |
||
|
4/30/2004 |
|
Deeds |
$64,000 |
AXWORTHY ROBERT & S |
COLEMAN STEPHANIE D |
||
|
11/11/1911 |
|
Historical |
$0 |
|
AXWORTHY ROBERT & S |
||
| Last Mailed Notice of Value (N.O.V.) Information/History | ||||||||
|---|---|---|---|---|---|---|---|---|
| Year | Date | Market Value | Taxable Market Value | Gross Assessed | Exemption | Net Assessed | ||
|
2026 |
02/23/2026 |
149,000 |
149,000 |
16,390 |
0 |
16,390 |
||
|
2025 |
02/14/2025 |
125,000 |
125,000 |
13,750 |
0 |
13,750 |
||
|
2024 |
02/13/2024 |
118,000 |
75,559 |
8,310 |
0 |
8,310 |
||
|
2023 |
02/14/2023 |
92,500 |
71,961 |
7,914 |
0 |
7,914 |
||
|
2022 |
03/15/2022 |
83,000 |
68,535 |
7,537 |
0 |
7,537 |
||
| Property Building Permit History | |||||||||||
|---|---|---|---|---|---|---|---|---|---|---|---|
| Issued | Permit # | Provided by | Bldg # | Description | Est Construction Cost | Status | |||||
| No Building Permit records returned. | |||||||||||
| Click button on building number to access detailed information: | ||||||
|---|---|---|---|---|---|---|
| Bldg # | Vacant/Improved Land | Bldg Description | Year Built | SqFt | # Stories | |
|
1 |
Improved |
Ranch 1 Story |
1955 |
1,184 |
1 Stories |
|