|
|
|
| Larry Stein Oklahoma County Assessor (405) 713-1200 - Public Access System |
|
|
|
|
|
|
| Real Property Display - Screen Produced 4/10/2026 10:14:05 AM | ||||
|---|---|---|---|---|
| Account: R049481740 | Type: Residential | Location: |
1001 NW 40TH ST |
|
| Building Name/Occupant: |
|
OKLAHOMA CITY |
||
| Owner Name 1: | WOODY KALEE D |
Parcel PIN#: |
2663-04-948-1740 |
|
| Owner Name 2: | 1/4 section #: |
2663 |
||
| Owner Name 3: | Parent Acct: |
|
||
| Billing Address: | 1001 NW 40TH ST | Tax District: |
|
|
| City, State, Zip | OKLAHOMA CITY, OK 73118-6820 | School System: |
Oklahoma City #89 |
|
|
Country: (If noted) |
Land Size: |
0.1993 Acres |
||
|
Land Value: 98,518 |
|
|||
|
Sect 16-T12N-R3W Qtr SW |
CROWN HEIGHTS ADD
Block
004
Lot
027
|
|||
| Full Legal Description: CROWN HEIGHTS ADD 004 027 |
| Photo & Sketch (if available) | Comp Sales (ordered by relevancy) |
|
||||||||||||||||||
|
||||||||||||||||||||
| Value History (*The County Treasurer 405-713-1300 posts & collects actual tax amounts. Contact information HERE) | |||||||||||||
|---|---|---|---|---|---|---|---|---|---|---|---|---|---|
| Year | Market Value | Taxable Mkt Value | Gross Assessed | Exemption | Net Assessed | Millage | Est. Tax | Tax Savings | |||||
|
2026 |
381,000 |
381,000 |
41,910 |
0 |
41,910 |
122.90 |
$5,151 |
$0 |
|||||
|
2025 |
382,000 |
366,966 |
40,366 |
0 |
40,366 |
122.90 |
$4,961 |
$203 |
|||||
|
2024 |
388,000 |
349,492 |
38,443 |
0 |
38,443 |
123.89 |
$4,763 |
$525 |
|||||
|
2023 |
339,500 |
332,850 |
36,613 |
0 |
36,613 |
122.82 |
$4,497 |
$90 |
|||||
|
2022 |
317,000 |
317,000 |
34,870 |
0 |
34,870 |
117.63 |
$4,102 |
$0 |
|||||
| Property Account Status/Adjustments/Exemptions | ||||||
|---|---|---|---|---|---|---|
| Account # | Exemption Description | Amount | ||||
| No adjustment/exemption records returned. | ||||||
| Property Deed Transaction History (Recorded in the County Clerk's Office) | ||||||||||
|---|---|---|---|---|---|---|---|---|---|---|
| Date | Type | Book | Page | Price | Grantor | Grantee | ||||
|
5/20/2025 |
|
Deeds |
$425,000 |
MELENDEZ DAVID |
WOODY KALEE D |
|||||
|
12/17/2019 |
|
Deeds |
$335,000 |
RUMSEY ADAM J |
MELENDEZ DAVID |
|||||
|
5/5/2017 |
|
Deeds |
$275,000 |
NATIONAL RESIDENTIAL NOMINEE SRVCS INC |
RUMSEY ADAM J |
|||||
|
3/11/2017 |
|
Deeds |
$275,000 |
MURPHY PATRICK J |
NATIONAL RESIDENTIAL NOMINEE SRVCS INC |
|||||
|
4/18/2014 |
|
Deeds |
$256,500 |
JACKSON LACI L |
MURPHY PATRICK J |
|||||
| Last Mailed Notice of Value (N.O.V.) Information/History | ||||||||
|---|---|---|---|---|---|---|---|---|
| Year | Date | Market Value | Taxable Market Value | Gross Assessed | Exemption | Net Assessed | ||
|
2026 |
02/23/2026 |
381,000 |
381,000 |
41,910 |
0 |
41,910 |
||
|
2025 |
02/14/2025 |
382,000 |
366,966 |
40,366 |
0 |
40,366 |
||
|
2024 |
02/13/2024 |
388,000 |
349,492 |
38,443 |
0 |
38,443 |
||
|
2023 |
02/14/2023 |
339,500 |
332,850 |
36,613 |
0 |
36,613 |
||
|
2022 |
03/15/2022 |
317,000 |
317,000 |
34,870 |
0 |
34,870 |
||
| Property Building Permit History | |||||||||||
|---|---|---|---|---|---|---|---|---|---|---|---|
| Issued | Permit # | Provided by | Bldg # | Description | Est Construction Cost | Status | |||||
| No Building Permit records returned. | |||||||||||
| Click button on building number to access detailed information: | ||||||
|---|---|---|---|---|---|---|
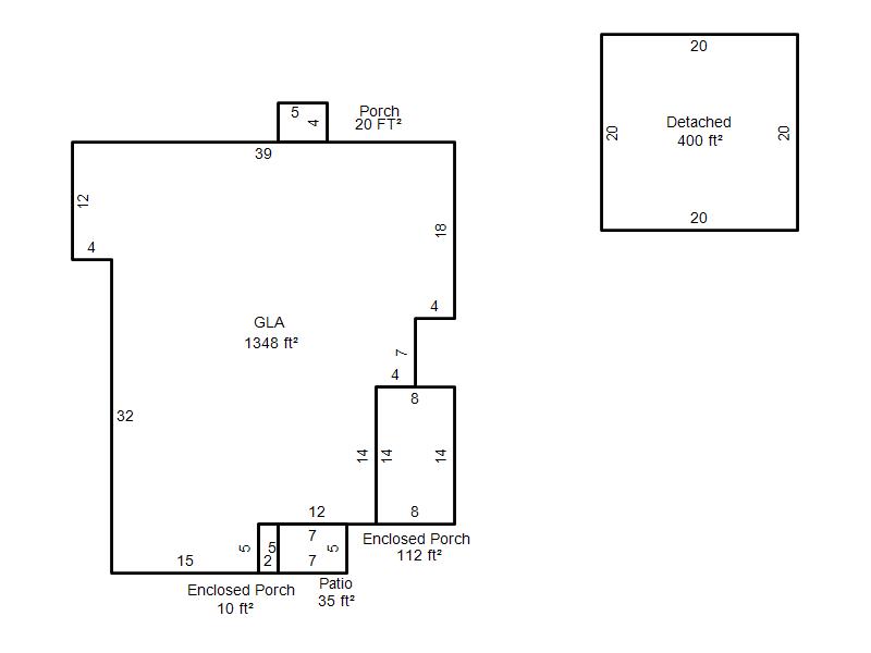
| Bldg # | Vacant/Improved Land | Bldg Description | Year Built | SqFt | # Stories | |
|
1 |
Improved |
Ranch 1 Story |
1938 |
1,348 |
1 Stories |
|