|
|
|
| Larry Stein Oklahoma County Assessor (405) 713-1200 - Public Access System |
|
|
|
|
|
|
| Real Property Display - Screen Produced 4/10/2026 10:14:07 AM | ||||
|---|---|---|---|---|
| Account: R049483640 | Type: Residential | Location: |
820 NW 38TH ST |
|
| Building Name/Occupant: |
|
OKLAHOMA CITY |
||
| Owner Name 1: | LOVERA GIOVANNI TRS |
Parcel PIN#: |
2663-04-948-3640 |
|
| Owner Name 2: | LOVERA MOLLIE TRS | 1/4 section #: |
2663 |
|
| Owner Name 3: | LOVERA REV TRUST | Parent Acct: |
|
|
| Billing Address: | 820 NW 38TH ST | Tax District: |
|
|
| City, State, Zip | OKLAHOMA CITY, OK 73118 | School System: |
Oklahoma City #89 |
|
|
Country: (If noted) |
UNITED STATES |
Land Size: |
0.1931 Acres |
|
|
Land Value: 116,899 |
|
|||
|
Sect 16-T12N-R3W Qtr SW |
CROWN HEIGHTS ADD
Block
007
Lot
006
|
|||
| Full Legal Description: CROWN HEIGHTS ADD 007 006 |
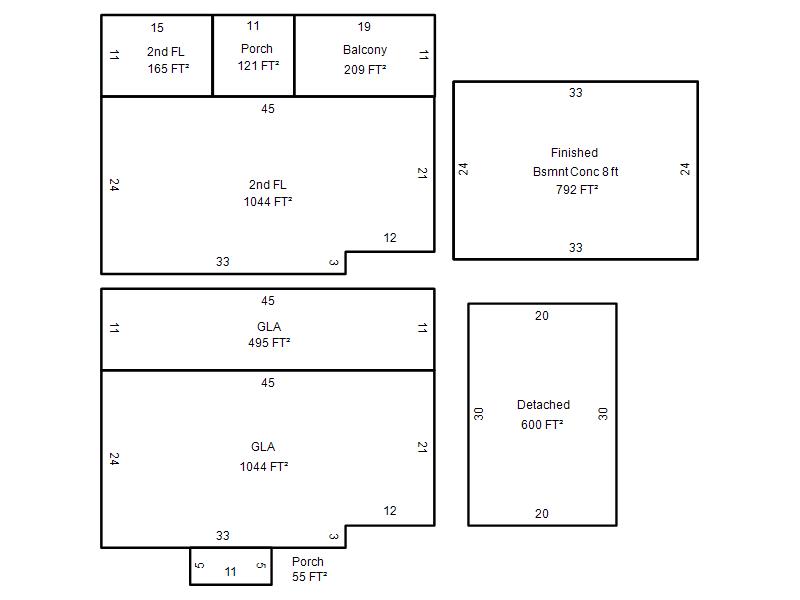
| Photo & Sketch (if available) | Comp Sales (ordered by relevancy) |
|
||||||||||||||||||
|
||||||||||||||||||||
| Value History (*The County Treasurer 405-713-1300 posts & collects actual tax amounts. Contact information HERE) | |||||||||||||
|---|---|---|---|---|---|---|---|---|---|---|---|---|---|
| Year | Market Value | Taxable Mkt Value | Gross Assessed | Exemption | Net Assessed | Millage | Est. Tax | Tax Savings | |||||
|
2026 |
979,500 |
937,300 |
103,103 |
1,000 |
102,103 |
122.90 |
$12,548 |
$693 |
|||||
|
2025 |
910,000 |
910,000 |
100,100 |
1,000 |
99,100 |
122.90 |
$12,179 |
$123 |
|||||
|
2024 |
527,500 |
527,500 |
58,025 |
0 |
58,025 |
123.89 |
$7,189 |
$0 |
|||||
|
2023 |
516,500 |
516,500 |
56,815 |
0 |
56,815 |
122.82 |
$6,978 |
$0 |
|||||
|
2022 |
485,500 |
413,623 |
45,497 |
1,000 |
44,497 |
117.63 |
$5,234 |
$1,048 |
|||||
| Property Account Status/Adjustments/Exemptions | ||
|---|---|---|
| Account # | Exemption Description | Amount |
|
R049483640 |
3% Cap Homestead |
0 |
|
R049483640 |
Homestead |
1,000 |
| Property Deed Transaction History (Recorded in the County Clerk's Office) | ||||||||||
|---|---|---|---|---|---|---|---|---|---|---|
| Date | Type | Book | Page | Price | Grantor | Grantee | ||||
|
10/18/2024 |
|
Deeds |
$910,000 |
314 VENTURES LLC |
LOVERA GIOVANNI TRS |
|||||
|
11/30/2023 |
|
Hmstd Off & |
$0 |
314 VENTURES LLC |
COON BRANDON E & CRYSTAL L |
|||||
|
11/30/2023 |
|
Hmstd Off & |
$0 |
COON BRANDON E & CRYSTAL L |
314 VENTURES LLC |
|||||
|
10/5/2023 |
|
Hmstd Off & |
$0 |
COON BRANDON & CRYSTAL |
314 VENTURES LLC |
|||||
|
12/9/2022 |
|
Deeds |
$375,000 |
WHITTEN SALLY LANYON |
COON BRANDON & CRYSTAL |
|||||
| Last Mailed Notice of Value (N.O.V.) Information/History | ||||||||
|---|---|---|---|---|---|---|---|---|
| Year | Date | Market Value | Taxable Market Value | Gross Assessed | Exemption | Net Assessed | ||
|
2026 |
02/23/2026 |
979,500 |
937,300 |
103,103 |
1,000 |
102,103 |
||
|
2025 |
02/14/2025 |
971,000 |
971,000 |
106,810 |
0 |
106,810 |
||
|
2024 |
02/13/2024 |
527,500 |
527,500 |
58,025 |
0 |
58,025 |
||
|
2023 |
02/14/2023 |
516,500 |
516,500 |
56,815 |
0 |
56,815 |
||
|
2022 |
03/15/2022 |
485,500 |
413,623 |
45,497 |
1,000 |
44,497 |
||
| Property Building Permit History | ||||||
|---|---|---|---|---|---|---|
| Issued | Permit # | Provided by | Bldg # | Description | Est Construction Cost | Status |
|
6/20/2023 |
|
|
1 |
Remodeled |
|
Inactive |
| Click button on building number to access detailed information: | ||||||
|---|---|---|---|---|---|---|
| Bldg # | Vacant/Improved Land | Bldg Description | Year Built | SqFt | # Stories | |
|
1 |
Improved |
2 Story |
1934 |
2,748 |
2 Stories |
|