|
|
|
| Larry Stein Oklahoma County Assessor (405) 713-1200 - Public Access System |
|
|
|
|
|
|
| Real Property Display - Screen Produced 4/10/2026 10:14:08 AM | ||||
|---|---|---|---|---|
| Account: R049483860 | Type: Residential | Location: |
1008 NW 38TH ST |
|
| Building Name/Occupant: |
|
OKLAHOMA CITY |
||
| Owner Name 1: | TERRY MEGAN MAKENZIE |
Parcel PIN#: |
2663-04-948-3860 |
|
| Owner Name 2: | 1/4 section #: |
2663 |
||
| Owner Name 3: | Parent Acct: |
|
||
| Billing Address: | 1008 NW 38TH ST | Tax District: |
|
|
| City, State, Zip | OKLAHOMA CITY, OK 73118-7118 | School System: |
Oklahoma City #89 |
|
|
Country: (If noted) |
Land Size: |
0.2421 Acres |
||
|
Land Value: 146,576 |
|
|||
|
Sect 16-T12N-R3W Qtr SW |
CROWN HEIGHTS ADD
Block
007
Lot
018
|
|||
| Full Legal Description: CROWN HEIGHTS ADD 007 018 |
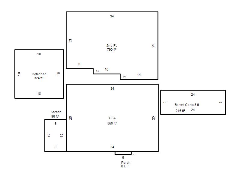
| Photo & Sketch (if available) | Comp Sales (ordered by relevancy) |
|
||||||||||||||||||
|
||||||||||||||||||||
| Value History (*The County Treasurer 405-713-1300 posts & collects actual tax amounts. Contact information HERE) | |||||||||||||
|---|---|---|---|---|---|---|---|---|---|---|---|---|---|
| Year | Market Value | Taxable Mkt Value | Gross Assessed | Exemption | Net Assessed | Millage | Est. Tax | Tax Savings | |||||
|
2026 |
389,000 |
389,000 |
42,790 |
0 |
42,790 |
122.90 |
$5,259 |
$0 |
|||||
|
2025 |
377,000 |
165,911 |
18,250 |
1,000 |
17,250 |
122.90 |
$2,120 |
$2,977 |
|||||
|
2024 |
374,500 |
165,911 |
18,250 |
1,000 |
17,250 |
123.89 |
$2,137 |
$2,967 |
|||||
|
2023 |
330,000 |
165,911 |
18,250 |
1,000 |
17,250 |
122.82 |
$2,119 |
$2,340 |
|||||
|
2022 |
307,000 |
165,911 |
18,250 |
1,000 |
17,250 |
117.63 |
$2,029 |
$1,943 |
|||||
| Property Account Status/Adjustments/Exemptions | ||||||
|---|---|---|---|---|---|---|
| Account # | Exemption Description | Amount | ||||
| No adjustment/exemption records returned. | ||||||
| Property Deed Transaction History (Recorded in the County Clerk's Office) | ||||||||||
|---|---|---|---|---|---|---|---|---|---|---|
| Date | Type | Book | Page | Price | Grantor | Grantee | ||||
|
1/16/2026 |
|
Deeds |
$435,000 |
VAUGHAN STEVE |
TERRY MEGAN MAKENZIE |
|||||
|
5/2/2025 |
|
Hmstd Off & |
$0 |
THOMPSON JOAN HAWK |
THOMPSON THEODORE D |
|||||
|
5/2/2025 |
|
Deeds |
$290,000 |
THOMPSON THEODORE D |
VAUGHAN STEVE |
|||||
|
5/18/2023 |
|
Deeds |
$0 |
THOMPSON JOAN H |
THOMPSON JOAN HAWK |
|||||
|
5/5/2023 |
|
Deeds |
$0 |
THOMPSON WILLIAM H & JOAN H |
THOMPSON JOAN H |
|||||
| Last Mailed Notice of Value (N.O.V.) Information/History | ||||||||
|---|---|---|---|---|---|---|---|---|
| Year | Date | Market Value | Taxable Market Value | Gross Assessed | Exemption | Net Assessed | ||
|
2026 |
02/23/2026 |
389,000 |
389,000 |
42,790 |
0 |
42,790 |
||
|
2025 |
02/14/2025 |
377,000 |
165,911 |
18,250 |
1,000 |
17,250 |
||
|
2024 |
02/13/2024 |
374,500 |
165,911 |
18,250 |
1,000 |
17,250 |
||
|
2023 |
02/14/2023 |
330,000 |
165,911 |
18,250 |
1,000 |
17,250 |
||
|
2022 |
03/15/2022 |
307,000 |
165,911 |
18,250 |
1,000 |
17,250 |
||
| Property Building Permit History | |||||||||||
|---|---|---|---|---|---|---|---|---|---|---|---|
| Issued | Permit # | Provided by | Bldg # | Description | Est Construction Cost | Status | |||||
| No Building Permit records returned. | |||||||||||
| Click button on building number to access detailed information: | ||||||
|---|---|---|---|---|---|---|
| Bldg # | Vacant/Improved Land | Bldg Description | Year Built | SqFt | # Stories | |
|
1 |
Improved |
2 Story |
1935 |
1,640 |
2 Stories |
|