|
|
|
| Larry Stein Oklahoma County Assessor (405) 713-1200 - Public Access System |
|
|
|
|
|
|
| Real Property Display - Screen Produced 4/10/2026 10:14:04 AM | ||||
|---|---|---|---|---|
| Account: R049484420 | Type: Residential | Location: |
912 NW 37TH ST |
|
| Building Name/Occupant: |
|
OKLAHOMA CITY |
||
| Owner Name 1: | FITZGERALD CHAD & MELISSA |
Parcel PIN#: |
2663-04-948-4420 |
|
| Owner Name 2: | 1/4 section #: |
2663 |
||
| Owner Name 3: | Parent Acct: |
|
||
| Billing Address: | 912 NW 37TH ST | Tax District: |
|
|
| City, State, Zip | OKLAHOMA CITY, OK 73118-7110 | School System: |
Oklahoma City #89 |
|
|
Country: (If noted) |
Land Size: |
0.1933 Acres |
||
|
Land Value: 67,344 |
|
|||
|
Sect 16-T12N-R3W Qtr SW |
CROWN HEIGHTS ADD
Block
008
Lot
014
|
|||
| Full Legal Description: CROWN HEIGHTS ADD 008 014 |
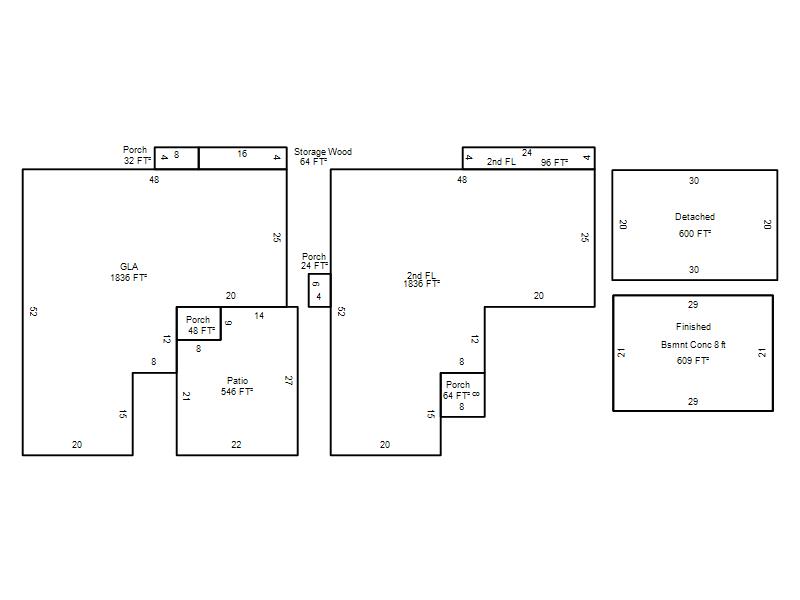
| Photo & Sketch (if available) | Comp Sales (ordered by relevancy) |
|
||||||||||||||||||
|
||||||||||||||||||||
| Value History (*The County Treasurer 405-713-1300 posts & collects actual tax amounts. Contact information HERE) | |||||||||||||
|---|---|---|---|---|---|---|---|---|---|---|---|---|---|
| Year | Market Value | Taxable Mkt Value | Gross Assessed | Exemption | Net Assessed | Millage | Est. Tax | Tax Savings | |||||
|
2026 |
840,000 |
840,000 |
92,400 |
1,000 |
91,400 |
122.90 |
$11,233 |
$123 |
|||||
|
2025 |
877,000 |
877,000 |
96,470 |
1,000 |
95,470 |
122.90 |
$11,733 |
$123 |
|||||
|
2024 |
828,500 |
361,583 |
39,773 |
1,000 |
38,773 |
123.89 |
$4,804 |
$6,487 |
|||||
|
2023 |
726,000 |
351,052 |
38,615 |
1,000 |
37,615 |
122.82 |
$4,620 |
$5,188 |
|||||
|
2022 |
663,000 |
340,828 |
37,490 |
1,000 |
36,490 |
117.63 |
$4,292 |
$4,286 |
|||||
| Property Account Status/Adjustments/Exemptions | ||
|---|---|---|
| Account # | Exemption Description | Amount |
|
R049484420 |
3% Cap Homestead |
0 |
|
R049484420 |
Homestead |
1,000 |
| Property Deed Transaction History (Recorded in the County Clerk's Office) | ||||||||||
|---|---|---|---|---|---|---|---|---|---|---|
| Date | Type | Book | Page | Price | Grantor | Grantee | ||||
|
8/28/2024 |
|
Deeds |
$840,000 |
COYLE JOHN W III & JULEE J CO TRS |
FITZGERALD CHAD & MELISSA |
|||||
|
3/24/2015 |
|
Deeds |
$0 |
COYLE JULEE J TRS COYLE JULEE TRUST |
COYLE JULEE J |
|||||
|
3/24/2015 |
|
Deeds |
$0 |
COYLE JULEE J |
COYLE JOHN W III & JULEE J CO TRS |
|||||
|
6/20/2003 |
|
Deeds |
$0 |
COYLE JULEE |
COYLE JULEE J TRS COYLE JULEE TRUST |
|||||
|
2/26/1990 |
|
Historical |
$0 |
SHELDON ROGER E & CAROL V |
COYLE JULEE |
|||||
| Last Mailed Notice of Value (N.O.V.) Information/History | ||||||||
|---|---|---|---|---|---|---|---|---|
| Year | Date | Market Value | Taxable Market Value | Gross Assessed | Exemption | Net Assessed | ||
|
2025 |
02/14/2025 |
877,000 |
877,000 |
96,470 |
1,000 |
95,470 |
||
|
2024 |
02/13/2024 |
828,500 |
361,583 |
39,773 |
1,000 |
38,773 |
||
|
2023 |
02/14/2023 |
726,000 |
351,052 |
38,615 |
1,000 |
37,615 |
||
|
2022 |
03/15/2022 |
663,000 |
340,828 |
37,490 |
1,000 |
36,490 |
||
|
2021 |
03/19/2021 |
581,000 |
330,901 |
36,399 |
1,000 |
35,399 |
||
| Property Building Permit History | ||||||
|---|---|---|---|---|---|---|
| Issued | Permit # | Provided by | Bldg # | Description | Est Construction Cost | Status |
|
4/3/2001 |
10191123 |
OKLAHOMA CITY |
1 |
Swimming Pool |
30,000 |
Inactive |
|
2/7/2000 |
10191122 |
OKLAHOMA CITY |
1 |
Remodeled |
50,000 |
Inactive |
| Click button on building number to access detailed information: | ||||||
|---|---|---|---|---|---|---|
| Bldg # | Vacant/Improved Land | Bldg Description | Year Built | SqFt | # Stories | |
|
1 |
Improved |
2 Story |
1937 |
3,768 |
2 Stories |
|