|
|
|
| Larry Stein Oklahoma County Assessor (405) 713-1200 - Public Access System |
|
|
|
|
|
|
| Real Property Display - Screen Produced 4/10/2026 11:43:19 AM | ||||
|---|---|---|---|---|
| Account: R049485500 | Type: Residential | Location: |
536 NW 42ND ST |
|
| Building Name/Occupant: |
|
OKLAHOMA CITY |
||
| Owner Name 1: | BURWOOD PROPERTIES LLC |
Parcel PIN#: |
2663-04-948-5500 |
|
| Owner Name 2: | 1/4 section #: |
2663 |
||
| Owner Name 3: | Parent Acct: |
|
||
| Billing Address: | 536 NW 42ND ST | Tax District: |
|
|
| City, State, Zip | OKLAHOMA CITY, OK 73118-7002 | School System: |
Oklahoma City #89 |
|
|
Country: (If noted) |
Land Size: |
0.1803 Acres |
||
|
Land Value: 89,120 |
|
|||
|
Sect 16-T12N-R3W Qtr SW |
CROWN HEIGHTS ADD
Block
013
Lot
010
|
|||
| Full Legal Description: CROWN HEIGHTS ADD 013 010 |
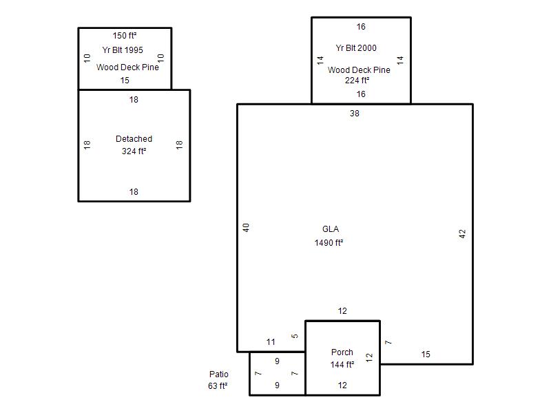
| Photo & Sketch (if available) | Comp Sales (ordered by relevancy) |
|
||||||||||||||||||
|
||||||||||||||||||||
| Value History (*The County Treasurer 405-713-1300 posts & collects actual tax amounts. Contact information HERE) | |||||||||||||
|---|---|---|---|---|---|---|---|---|---|---|---|---|---|
| Year | Market Value | Taxable Mkt Value | Gross Assessed | Exemption | Net Assessed | Millage | Est. Tax | Tax Savings | |||||
|
2026 |
330,500 |
330,500 |
36,355 |
0 |
36,355 |
122.90 |
$4,468 |
$0 |
|||||
|
2025 |
325,500 |
325,500 |
35,805 |
0 |
35,805 |
122.90 |
$4,400 |
$0 |
|||||
|
2024 |
326,500 |
326,500 |
35,915 |
0 |
35,915 |
123.89 |
$4,450 |
$0 |
|||||
|
2023 |
282,000 |
142,718 |
15,698 |
0 |
15,698 |
122.82 |
$1,928 |
$1,882 |
|||||
|
2022 |
252,500 |
135,922 |
14,950 |
0 |
14,950 |
117.63 |
$1,759 |
$1,508 |
|||||
| Property Account Status/Adjustments/Exemptions | ||
|---|---|---|
| Account # | Exemption Description | Amount |
|
R049485500 |
5% Capped Account |
0 |
| Property Deed Transaction History (Recorded in the County Clerk's Office) | ||||||||||
|---|---|---|---|---|---|---|---|---|---|---|
| Date | Type | Book | Page | Price | Grantor | Grantee | ||||
|
3/31/2026 |
|
Hmstd Off & |
$0 |
HARTSOOK TIMOTHY DYLAN & KATHERINE GRACE |
BURWOOD PROPERTIES LLC |
|||||
|
7/31/2024 |
|
Hmstd Off & |
$0 |
BYRNE ELLEN OBRIEN REV TRUST |
HARTSOOK TIMOTHY DYLAN & KATHERINE GRACE |
|||||
|
11/20/2023 |
|
Deeds |
$291,000 |
WRISTON VIVIAN L |
BYRNE ELLEN OBRIEN REV TRUST |
|||||
|
1/11/2023 |
|
Hmstd Off & |
$0 |
WRISTON VIVIAN L TRS |
WRISTON VIVIAN L |
|||||
|
9/8/2017 |
|
Hmstd Off & |
$0 |
HILL LOIS R |
WRISTON VIVIAN L TRS |
|||||
| Last Mailed Notice of Value (N.O.V.) Information/History | ||||||||
|---|---|---|---|---|---|---|---|---|
| Year | Date | Market Value | Taxable Market Value | Gross Assessed | Exemption | Net Assessed | ||
|
2026 |
02/23/2026 |
330,500 |
330,500 |
36,355 |
0 |
36,355 |
||
|
2024 |
02/13/2024 |
326,500 |
326,500 |
35,915 |
0 |
35,915 |
||
|
2023 |
02/14/2023 |
282,000 |
142,718 |
15,698 |
0 |
15,698 |
||
|
2022 |
03/15/2022 |
252,500 |
135,922 |
14,950 |
0 |
14,950 |
||
|
2021 |
03/19/2021 |
237,500 |
129,450 |
14,239 |
0 |
14,239 |
||
| Property Building Permit History | |||||||||||
|---|---|---|---|---|---|---|---|---|---|---|---|
| Issued | Permit # | Provided by | Bldg # | Description | Est Construction Cost | Status | |||||
| No Building Permit records returned. | |||||||||||
| Click button on building number to access detailed information: | ||||||
|---|---|---|---|---|---|---|
| Bldg # | Vacant/Improved Land | Bldg Description | Year Built | SqFt | # Stories | |
|
1 |
Improved |
Ranch 1 Story |
1935 |
1,490 |
1 Stories |
|