|
|
|
| Larry Stein Oklahoma County Assessor (405) 713-1200 - Public Access System |
|
|
|
|
|
|
| Real Property Display - Screen Produced 4/6/2026 7:27:58 AM | ||||
|---|---|---|---|---|
| Account: R056651085 | Type: Residential | Location: |
1132 NW 43RD ST |
|
| Building Name/Occupant: |
|
OKLAHOMA CITY |
||
| Owner Name 1: | BREHM ALANNA |
Parcel PIN#: |
2665-05-665-1085 |
|
| Owner Name 2: | 1/4 section #: |
2665 |
||
| Owner Name 3: | Parent Acct: |
|
||
| Billing Address: | 1134 NW 43RD ST | Tax District: |
|
|
| City, State, Zip | OKLAHOMA CITY, OK 73118 | School System: |
Oklahoma City #89 |
|
|
Country: (If noted) |
Land Size: |
0.1607 Acres |
||
|
Land Value: 40,250 |
|
|||
|
Sect 17-T12N-R3W Qtr NE |
SHAWS HTS SUB DIV
Block
008
Lot
000
|
|||
| Full Legal Description: SHAWS HTS SUB DIV 008 000 LOTS 16 & 17 |
| Photo & Sketch (if available) | Comp Sales (ordered by relevancy) |
|
||||||||||||||||||
|
||||||||||||||||||||
| Value History (*The County Treasurer 405-713-1300 posts & collects actual tax amounts. Contact information HERE) | |||||||||||||
|---|---|---|---|---|---|---|---|---|---|---|---|---|---|
| Year | Market Value | Taxable Mkt Value | Gross Assessed | Exemption | Net Assessed | Millage | Est. Tax | Tax Savings | |||||
|
2026 |
262,000 |
262,000 |
28,820 |
1,000 |
27,820 |
122.90 |
$3,419 |
$123 |
|||||
|
2025 |
264,000 |
264,000 |
29,040 |
1,000 |
28,040 |
122.90 |
$3,446 |
$123 |
|||||
|
2024 |
163,500 |
104,525 |
11,497 |
0 |
11,497 |
123.89 |
$1,424 |
$804 |
|||||
|
2023 |
141,000 |
99,548 |
10,949 |
0 |
10,949 |
122.82 |
$1,345 |
$560 |
|||||
|
2022 |
125,000 |
94,808 |
10,427 |
0 |
10,427 |
117.63 |
$1,227 |
$391 |
|||||
| Property Account Status/Adjustments/Exemptions | ||
|---|---|---|
| Account # | Exemption Description | Amount |
|
R056651085 |
3% Cap Homestead |
0 |
|
R056651085 |
Homestead |
1,000 |
| Property Deed Transaction History (Recorded in the County Clerk's Office) | ||||||||||
|---|---|---|---|---|---|---|---|---|---|---|
| Date | Type | Book | Page | Price | Grantor | Grantee | ||||
|
8/30/2024 |
|
Deeds |
$284,000 |
JPF PROPERTIES LLC |
BREHM ALANNA |
|||||
|
4/20/2016 |
|
Deeds |
$72,500 |
MCKEE VINCENT L |
JPF PROPERTIES LLC |
|||||
|
7/30/2010 |
|
Deeds |
$82,500 |
TACKER JIM P |
MCKEE VINCENT L |
|||||
|
5/27/1992 |
|
Historical |
$12,000 |
LIBERTY NATIONAL BANK |
TACKER JIM P |
|||||
|
7/1/1988 |
|
Historical |
$0 |
BARBER RUBY M |
LIBERTY NATIONAL BANK |
|||||
| Last Mailed Notice of Value (N.O.V.) Information/History | ||||||||
|---|---|---|---|---|---|---|---|---|
| Year | Date | Market Value | Taxable Market Value | Gross Assessed | Exemption | Net Assessed | ||
|
2025 |
02/14/2025 |
264,000 |
264,000 |
29,040 |
1,000 |
28,040 |
||
|
2024 |
02/13/2024 |
163,500 |
104,525 |
11,497 |
0 |
11,497 |
||
|
2023 |
02/14/2023 |
141,000 |
99,548 |
10,949 |
0 |
10,949 |
||
|
2022 |
03/15/2022 |
125,000 |
94,808 |
10,427 |
0 |
10,427 |
||
|
2021 |
03/19/2021 |
100,000 |
90,294 |
9,932 |
0 |
9,932 |
||
| Property Building Permit History | |||||||||||
|---|---|---|---|---|---|---|---|---|---|---|---|
| Issued | Permit # | Provided by | Bldg # | Description | Est Construction Cost | Status | |||||
| No Building Permit records returned. | |||||||||||
| Click button on building number to access detailed information: | ||||||
|---|---|---|---|---|---|---|
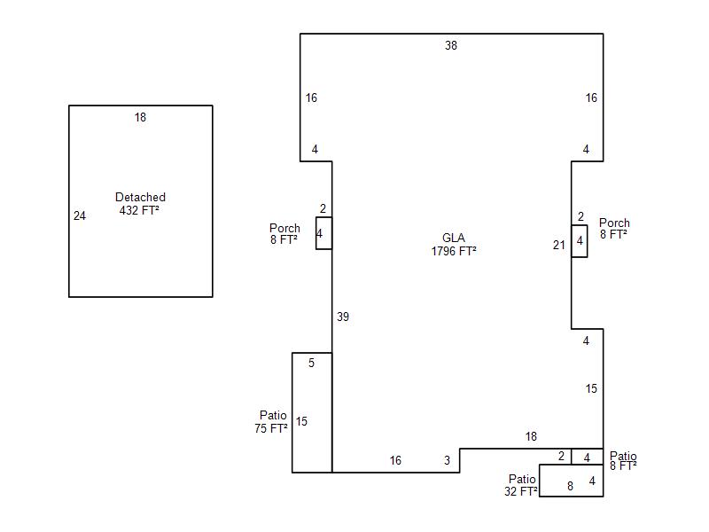
| Bldg # | Vacant/Improved Land | Bldg Description | Year Built | SqFt | # Stories | |
|
1 |
Improved |
Duplex One Story |
1929 |
1,796 |
1 Stories |
|