|
|
|
| Larry Stein Oklahoma County Assessor (405) 713-1200 - Public Access System |
|
|
|
|
|
|
| Real Property Display - Screen Produced 4/4/2026 3:32:24 AM | ||||
|---|---|---|---|---|
| Account: R151011355 | Type: Residential | Location: |
9606 SE 6TH ST |
|
| Building Name/Occupant: |
|
MIDWEST CITY |
||
| Owner Name 1: | LAWSON TIMOTHY & SANDRA CO TRS |
Parcel PIN#: |
1401-15-101-1355 |
|
| Owner Name 2: | LAWSON FAMILY TRUST | 1/4 section #: |
1401 |
|
| Owner Name 3: | Parent Acct: |
|
||
| Billing Address: | 9611 SE 6TH ST | Tax District: |
|
|
| City, State, Zip | MIDWEST CITY, OK 73130 | School System: |
Mid-Del #52 |
|
|
Country: (If noted) |
Land Size: |
0.6722 Acres |
||
|
Land Value: 26,352 |
|
|||
|
Sect 1-T11N-R2W Qtr NE |
HOMELAND ADDITION
Block
002
Lot
000
|
|||
| Full Legal Description: HOMELAND ADDITION 002 000 W 1/2 OF LOT 16 & ALL OF LOT 17 |
| Photo & Sketch (if available) | Comp Sales (ordered by relevancy) |
|
||||||||||||||||||
|
||||||||||||||||||||
| Value History (*The County Treasurer 405-713-1300 posts & collects actual tax amounts. Contact information HERE) | |||||||||||||
|---|---|---|---|---|---|---|---|---|---|---|---|---|---|
| Year | Market Value | Taxable Mkt Value | Gross Assessed | Exemption | Net Assessed | Millage | Est. Tax | Tax Savings | |||||
|
2026 |
98,500 |
92,030 |
10,123 |
0 |
10,123 |
119.58 |
$1,211 |
$85 |
|||||
|
2025 |
100,500 |
87,648 |
9,641 |
0 |
9,641 |
119.58 |
$1,153 |
$169 |
|||||
|
2024 |
98,000 |
83,475 |
9,182 |
0 |
9,182 |
122.51 |
$1,125 |
$196 |
|||||
|
2023 |
79,500 |
79,500 |
8,745 |
0 |
8,745 |
117.71 |
$1,029 |
$0 |
|||||
|
2022 |
84,500 |
76,072 |
8,367 |
0 |
8,367 |
116.64 |
$976 |
$108 |
|||||
| Property Account Status/Adjustments/Exemptions | ||
|---|---|---|
| Account # | Exemption Description | Amount |
|
R151011355 |
5% Capped Account |
0 |
| Property Deed Transaction History (Recorded in the County Clerk's Office) | |||||||
|---|---|---|---|---|---|---|---|
| Date | Type | Book | Page | Price | Grantor | Grantee | |
|
1/31/2023 |
|
Deeds |
$0 |
LAWSON TIMOTHY & SANDRA |
LAWSON TIMOTHY & SANDRA CO TRS |
||
|
10/25/2022 |
|
Deeds |
$78,000 |
GETZ BONNIE |
LAWSON TIMOTHY & SANDRA |
||
|
6/18/1996 |
|
Historical |
$28,500 |
HAWKINS BEULAH M |
GETZ BONNIE |
||
|
11/1/1983 |
|
Historical |
$0 |
|
HAWKINS BEULAH M |
||
| Last Mailed Notice of Value (N.O.V.) Information/History | ||||||||
|---|---|---|---|---|---|---|---|---|
| Year | Date | Market Value | Taxable Market Value | Gross Assessed | Exemption | Net Assessed | ||
|
2026 |
02/06/2026 |
98,500 |
92,030 |
10,123 |
0 |
10,123 |
||
|
2025 |
01/31/2025 |
100,500 |
87,648 |
9,641 |
0 |
9,641 |
||
|
2024 |
01/22/2024 |
98,000 |
83,475 |
9,182 |
0 |
9,182 |
||
|
2023 |
01/23/2023 |
79,500 |
79,500 |
8,745 |
0 |
8,745 |
||
|
2022 |
02/22/2022 |
84,500 |
76,072 |
8,367 |
0 |
8,367 |
||
| Property Building Permit History | |||||||||||
|---|---|---|---|---|---|---|---|---|---|---|---|
| Issued | Permit # | Provided by | Bldg # | Description | Est Construction Cost | Status | |||||
| No Building Permit records returned. | |||||||||||
| Click button on building number to access detailed information: | ||||||
|---|---|---|---|---|---|---|
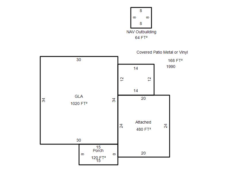
| Bldg # | Vacant/Improved Land | Bldg Description | Year Built | SqFt | # Stories | |
|
1 |
Improved |
Ranch 1 Story |
1954 |
1,020 |
1 Stories |
|