|
|
|
| Larry Stein Oklahoma County Assessor (405) 713-1200 - Public Access System |
|
|
|
|
|
|
| Real Property Display - Screen Produced 4/6/2026 5:38:25 AM | ||||
|---|---|---|---|---|
| Account: R055471005 | Type: Residential | Location: |
4301 N INDIANA AVE |
|
| Building Name/Occupant: |
|
OKLAHOMA CITY |
||
| Owner Name 1: | GUO YAWEN |
Parcel PIN#: |
2668-05-547-1005 |
|
| Owner Name 2: | 1/4 section #: |
2668 |
||
| Owner Name 3: | Parent Acct: |
|
||
| Billing Address: | 4301 N INDIANA AVE | Tax District: |
|
|
| City, State, Zip | OKLAHOMA CITY, OK 73118-2219 | School System: |
Oklahoma City #89 |
|
|
Country: (If noted) |
Land Size: |
0.1683 Acres |
||
|
Land Value: 27,495 |
|
|||
|
Sect 17-T12N-R3W Qtr NW |
WILEMAN SECOND ADD
Block
001
Lot
000
|
|||
| Full Legal Description: WILEMAN SECOND ADD 001 000 LOT 1 SUBJ TO EASEMENTS OF RECORD |
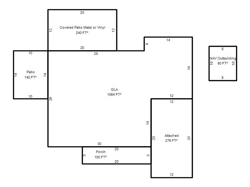
| Photo & Sketch (if available) | Comp Sales (ordered by relevancy) |
|
||||||||||||||||||
|
||||||||||||||||||||
| Value History (*The County Treasurer 405-713-1300 posts & collects actual tax amounts. Contact information HERE) | |||||||||||||
|---|---|---|---|---|---|---|---|---|---|---|---|---|---|
| Year | Market Value | Taxable Mkt Value | Gross Assessed | Exemption | Net Assessed | Millage | Est. Tax | Tax Savings | |||||
|
2026 |
165,000 |
165,000 |
18,150 |
0 |
18,150 |
122.90 |
$2,231 |
$0 |
|||||
|
2025 |
164,000 |
164,000 |
18,040 |
0 |
18,040 |
122.90 |
$2,217 |
$0 |
|||||
|
2024 |
160,500 |
100,203 |
11,022 |
1,000 |
10,022 |
123.89 |
$1,242 |
$946 |
|||||
|
2023 |
137,000 |
97,285 |
10,700 |
1,000 |
9,700 |
122.82 |
$1,192 |
$659 |
|||||
|
2022 |
125,000 |
94,452 |
10,388 |
1,000 |
9,388 |
117.63 |
$1,105 |
$513 |
|||||
| Property Account Status/Adjustments/Exemptions | ||
|---|---|---|
| Account # | Exemption Description | Amount |
|
R055471005 |
5% Capped Account |
0 |
| Property Deed Transaction History (Recorded in the County Clerk's Office) | |||||||
|---|---|---|---|---|---|---|---|
| Date | Type | Book | Page | Price | Grantor | Grantee | |
|
9/12/2024 |
|
Deeds |
$123,500 |
ELLERBEE BEA G |
GUO YAWEN |
||
|
5/9/1991 |
|
Historical |
$0 |
STOUT GLENDA KAY ETAL |
ELLERBEE BEA G |
||
|
5/6/1991 |
|
Historical |
$0 |
UNDERWOOD DELTA |
STOUT GLENDA KAY ETAL |
||
|
11/11/1911 |
|
Historical |
$0 |
|
UNDERWOOD DELTA |
||
| Last Mailed Notice of Value (N.O.V.) Information/History | ||||||||
|---|---|---|---|---|---|---|---|---|
| Year | Date | Market Value | Taxable Market Value | Gross Assessed | Exemption | Net Assessed | ||
|
2026 |
02/23/2026 |
165,000 |
165,000 |
18,150 |
0 |
18,150 |
||
|
2025 |
02/14/2025 |
164,000 |
164,000 |
18,040 |
0 |
18,040 |
||
|
2024 |
02/13/2024 |
160,500 |
100,203 |
11,022 |
1,000 |
10,022 |
||
|
2023 |
02/14/2023 |
137,000 |
97,285 |
10,700 |
1,000 |
9,700 |
||
|
2022 |
03/15/2022 |
125,000 |
94,452 |
10,388 |
1,000 |
9,388 |
||
| Property Building Permit History | |||||||||||
|---|---|---|---|---|---|---|---|---|---|---|---|
| Issued | Permit # | Provided by | Bldg # | Description | Est Construction Cost | Status | |||||
| No Building Permit records returned. | |||||||||||
| Click button on building number to access detailed information: | ||||||
|---|---|---|---|---|---|---|
| Bldg # | Vacant/Improved Land | Bldg Description | Year Built | SqFt | # Stories | |
|
1 |
Improved |
Ranch 1 Story |
1952 |
1,064 |
1 Stories |
|