|
|
|
| Larry Stein Oklahoma County Assessor (405) 713-1200 - Public Access System |
|
|
|
|
|
|
| Real Property Display - Screen Produced 4/6/2026 3:15:19 PM | ||||
|---|---|---|---|---|
| Account: R054750300 | Type: Residential | Location: |
2405 NW 38TH ST |
|
| Building Name/Occupant: |
|
OKLAHOMA CITY |
||
| Owner Name 1: | GRAMAJOS PROPERTIES LLC |
Parcel PIN#: |
2670-05-475-0300 |
|
| Owner Name 2: | 1/4 section #: |
2670 |
||
| Owner Name 3: | Parent Acct: |
|
||
| Billing Address: | 9105 SW 47TH ST | Tax District: |
|
|
| City, State, Zip | OKLAHOMA CITY, OK 73179-6407 | School System: |
Oklahoma City #89 |
|
|
Country: (If noted) |
Land Size: |
0.1515 Acres |
||
|
Land Value: 25,740 |
|
|||
|
Sect 18-T12N-R3W Qtr SE |
ROGER GIVEN RICHLAND
Block
00A
Lot
002
|
|||
| Full Legal Description: ROGER GIVEN RICHLAND 00A 002 |
| Photo & Sketch (if available) | Comp Sales (ordered by relevancy) |
|
||||||||||||||||||
|
||||||||||||||||||||
| Value History (*The County Treasurer 405-713-1300 posts & collects actual tax amounts. Contact information HERE) | |||||||||||||
|---|---|---|---|---|---|---|---|---|---|---|---|---|---|
| Year | Market Value | Taxable Mkt Value | Gross Assessed | Exemption | Net Assessed | Millage | Est. Tax | Tax Savings | |||||
|
2026 |
137,500 |
134,505 |
14,795 |
0 |
14,795 |
122.90 |
$1,818 |
$40 |
|||||
|
2025 |
129,000 |
128,100 |
14,091 |
0 |
14,091 |
122.90 |
$1,732 |
$12 |
|||||
|
2024 |
122,000 |
122,000 |
13,420 |
0 |
13,420 |
123.89 |
$1,663 |
$0 |
|||||
|
2023 |
104,500 |
104,500 |
11,495 |
0 |
11,495 |
122.82 |
$1,412 |
$0 |
|||||
|
2022 |
94,000 |
94,000 |
10,340 |
0 |
10,340 |
117.63 |
$1,216 |
$0 |
|||||
| Property Account Status/Adjustments/Exemptions | ||
|---|---|---|
| Account # | Exemption Description | Amount |
|
R054750300 |
5% Capped Account |
0 |
| Property Deed Transaction History (Recorded in the County Clerk's Office) | ||||||||||
|---|---|---|---|---|---|---|---|---|---|---|
| Date | Type | Book | Page | Price | Grantor | Grantee | ||||
|
8/1/2023 |
|
Other |
$0 |
ARVM 5 LLC |
MESA VERDE ASSETS LLC |
|||||
|
8/1/2023 |
|
Deeds |
$107,000 |
MESA VERDE ASSETS LLC |
GRAMAJOS PROPERTIES LLC |
|||||
|
3/1/2023 |
|
Mult Parcel |
$1,604,000 |
VM MASTER ISSUER LLC |
ARVM 5 LLC |
|||||
|
3/30/2022 |
|
Mult Parcel |
$6,381,500 |
VM PRONTO LLC |
VM MASTER ISSUER LLC |
|||||
|
10/14/2021 |
|
Hmstd Off & |
$0 |
ARVM 5 LLC |
VM PRONTO LLC |
|||||
| Last Mailed Notice of Value (N.O.V.) Information/History | ||||||||
|---|---|---|---|---|---|---|---|---|
| Year | Date | Market Value | Taxable Market Value | Gross Assessed | Exemption | Net Assessed | ||
|
2026 |
02/23/2026 |
137,500 |
134,505 |
14,795 |
0 |
14,795 |
||
|
2025 |
02/14/2025 |
129,000 |
128,100 |
14,091 |
0 |
14,091 |
||
|
2024 |
02/13/2024 |
122,000 |
122,000 |
13,420 |
0 |
13,420 |
||
|
2023 |
02/14/2023 |
104,500 |
104,500 |
11,495 |
0 |
11,495 |
||
|
2022 |
03/15/2022 |
94,000 |
94,000 |
10,340 |
0 |
10,340 |
||
| Property Building Permit History | |||||||||||
|---|---|---|---|---|---|---|---|---|---|---|---|
| Issued | Permit # | Provided by | Bldg # | Description | Est Construction Cost | Status | |||||
| No Building Permit records returned. | |||||||||||
| Click button on building number to access detailed information: | ||||||
|---|---|---|---|---|---|---|
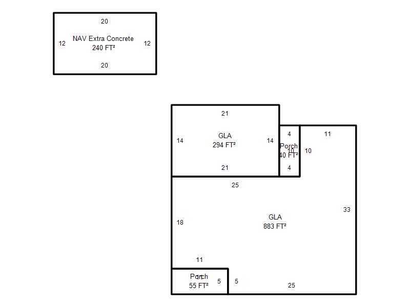
| Bldg # | Vacant/Improved Land | Bldg Description | Year Built | SqFt | # Stories | |
|
1 |
Improved |
Ranch 1 Story |
1944 |
1,177 |
1 Stories |
|