|
|
|
| Larry Stein Oklahoma County Assessor (405) 713-1200 - Public Access System |
|
|
|
|
|
|
| Real Property Display - Screen Produced 4/6/2026 5:38:25 AM | ||||
|---|---|---|---|---|
| Account: R133264345 | Type: Residential | Location: |
2252 NW 37TH ST |
|
| Building Name/Occupant: |
|
OKLAHOMA CITY |
||
| Owner Name 1: | STOUT CALVIN |
Parcel PIN#: |
2670-13-326-4345 |
|
| Owner Name 2: | 1/4 section #: |
2670 |
||
| Owner Name 3: | Parent Acct: |
|
||
| Billing Address: | 2252 NW 37TH ST | Tax District: |
|
|
| City, State, Zip | OKLAHOMA CITY, OK 73112-7518 | School System: |
Oklahoma City #89 |
|
|
Country: (If noted) |
Land Size: |
0.1722 Acres |
||
|
Land Value: 29,250 |
|
|||
|
Sect 18-T12N-R3W Qtr SE |
UNPLTD PT SEC 18 12N 3W
Block
000
Lot
000
|
|||
| Full Legal Description: UNPLTD PT SE4 SEC 18 12N 3W BEG 183FT N & 1132FT W OF SE/C SE4 TH N150FT W50FT S150FT E50FT TO BEG OR E50FT OF W158FT OF FORM N 1/2 BLK 75 PUTNAM HGTS 2ND |
| Photo & Sketch (if available) | Comp Sales (ordered by relevancy) |
|
||||||||||||||||||
|
||||||||||||||||||||
| Value History (*The County Treasurer 405-713-1300 posts & collects actual tax amounts. Contact information HERE) | |||||||||||||
|---|---|---|---|---|---|---|---|---|---|---|---|---|---|
| Year | Market Value | Taxable Mkt Value | Gross Assessed | Exemption | Net Assessed | Millage | Est. Tax | Tax Savings | |||||
|
2026 |
140,000 |
140,000 |
15,400 |
0 |
15,400 |
122.90 |
$1,893 |
$0 |
|||||
|
2025 |
98,500 |
63,174 |
6,948 |
0 |
6,948 |
122.90 |
$854 |
$478 |
|||||
|
2024 |
82,000 |
60,166 |
6,618 |
0 |
6,618 |
123.89 |
$820 |
$298 |
|||||
|
2023 |
72,500 |
57,301 |
6,303 |
0 |
6,303 |
122.82 |
$774 |
$205 |
|||||
|
2022 |
61,500 |
54,573 |
6,002 |
0 |
6,002 |
117.63 |
$706 |
$90 |
|||||
| Property Account Status/Adjustments/Exemptions | ||||||
|---|---|---|---|---|---|---|
| Account # | Exemption Description | Amount | ||||
| No adjustment/exemption records returned. | ||||||
| Property Deed Transaction History (Recorded in the County Clerk's Office) | ||||||||||
|---|---|---|---|---|---|---|---|---|---|---|
| Date | Type | Book | Page | Price | Grantor | Grantee | ||||
|
8/19/2025 |
|
Deeds |
$143,500 |
FRONT DOOR PROPERTIES LLC |
STOUT CALVIN |
|||||
|
1/15/2020 |
|
Hmstd Off & |
$0 |
FRONT DOOR PROPERTIES LLC |
WILSON JOHN M JR |
|||||
|
1/15/2020 |
|
Hmstd Off & |
$0 |
WILSON JOHN M JR |
FRONT DOOR PROPERTIES LLC |
|||||
|
10/30/2017 |
|
Deeds |
$49,000 |
JARRED D SMITH LLC |
FRONT DOOR PROPERTIES LLC |
|||||
|
9/6/2017 |
|
Deeds |
$0 |
MEMORANDUM OF TRUST COLLINS LIVING TRUST |
COLLINS BONNIE L TRS |
|||||
| Last Mailed Notice of Value (N.O.V.) Information/History | ||||||||
|---|---|---|---|---|---|---|---|---|
| Year | Date | Market Value | Taxable Market Value | Gross Assessed | Exemption | Net Assessed | ||
|
2026 |
02/23/2026 |
140,000 |
140,000 |
15,400 |
0 |
15,400 |
||
|
2025 |
02/14/2025 |
98,500 |
63,174 |
6,948 |
0 |
6,948 |
||
|
2024 |
02/13/2024 |
82,000 |
60,166 |
6,618 |
0 |
6,618 |
||
|
2023 |
02/14/2023 |
72,500 |
57,301 |
6,303 |
0 |
6,303 |
||
|
2022 |
03/15/2022 |
61,500 |
54,573 |
6,002 |
0 |
6,002 |
||
| Property Building Permit History | |||||||||||
|---|---|---|---|---|---|---|---|---|---|---|---|
| Issued | Permit # | Provided by | Bldg # | Description | Est Construction Cost | Status | |||||
| No Building Permit records returned. | |||||||||||
| Click button on building number to access detailed information: | ||||||
|---|---|---|---|---|---|---|
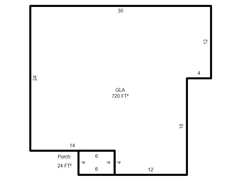
| Bldg # | Vacant/Improved Land | Bldg Description | Year Built | SqFt | # Stories | |
|
1 |
Improved |
Ranch 1 Story |
1937 |
720 |
1 Stories |
|