|
|
|
| Larry Stein Oklahoma County Assessor (405) 713-1200 - Public Access System |
|
|
|
|
|
|
| Real Property Display - Screen Produced 4/9/2026 7:02:12 AM | ||||
|---|---|---|---|---|
| Account: R053157250 | Type: Residential | Location: |
2600 NW 34TH ST |
|
| Building Name/Occupant: |
|
OKLAHOMA CITY |
||
| Owner Name 1: | WITTKORN REBECCA |
Parcel PIN#: |
2676-05-315-7250 |
|
| Owner Name 2: | WITTKORN SPENCER | 1/4 section #: |
2676 |
|
| Owner Name 3: | Parent Acct: |
|
||
| Billing Address: | 2600 NW 34TH ST | Tax District: |
|
|
| City, State, Zip | OKLAHOMA CITY, OK 73112-7634 | School System: |
Oklahoma City #89 |
|
|
Country: (If noted) |
Land Size: |
0.1607 Acres |
||
|
Land Value: 28,560 |
|
|||
|
Sect 19-T12N-R3W Qtr NW |
DARRALLS SECOND ADD
Block
007
Lot
000
|
|||
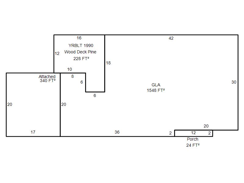
| Full Legal Description: DARRALLS SECOND ADD 007 000 LOTS 1 & 2 |
| Photo & Sketch (if available) | Comp Sales (ordered by relevancy) |
|
||||||||||||||||||
|
||||||||||||||||||||
| Value History (*The County Treasurer 405-713-1300 posts & collects actual tax amounts. Contact information HERE) | |||||||||||||
|---|---|---|---|---|---|---|---|---|---|---|---|---|---|
| Year | Market Value | Taxable Mkt Value | Gross Assessed | Exemption | Net Assessed | Millage | Est. Tax | Tax Savings | |||||
|
2026 |
194,000 |
194,000 |
21,340 |
0 |
21,340 |
122.90 |
$2,623 |
$0 |
|||||
|
2025 |
190,000 |
143,911 |
15,829 |
0 |
15,829 |
122.90 |
$1,946 |
$623 |
|||||
|
2024 |
184,500 |
137,059 |
15,075 |
0 |
15,075 |
123.89 |
$1,868 |
$647 |
|||||
|
2023 |
167,000 |
130,533 |
14,357 |
0 |
14,357 |
122.82 |
$1,764 |
$493 |
|||||
|
2022 |
144,500 |
124,318 |
13,674 |
0 |
13,674 |
117.63 |
$1,609 |
$261 |
|||||
| Property Account Status/Adjustments/Exemptions | ||||||
|---|---|---|---|---|---|---|
| Account # | Exemption Description | Amount | ||||
| No adjustment/exemption records returned. | ||||||
| Property Deed Transaction History (Recorded in the County Clerk's Office) | |||||||
|---|---|---|---|---|---|---|---|
| Date | Type | Book | Page | Price | Grantor | Grantee | |
|
10/24/2025 |
|
Deeds |
$165,000 |
INGRAM DAVID B |
WITTKORN REBECCA |
||
|
8/10/1994 |
|
Historical |
$0 |
LOCAL FEDERAL BANK FSB |
INGRAM DAVID B |
||
|
7/7/1994 |
|
Historical |
$0 |
BEE BILLY E JR & CHERYL |
LOCAL FEDERAL BANK FSB |
||
|
11/11/1911 |
|
Historical |
$0 |
|
BEE BILLY E JR & CHERYL |
||
| Last Mailed Notice of Value (N.O.V.) Information/History | ||||||||
|---|---|---|---|---|---|---|---|---|
| Year | Date | Market Value | Taxable Market Value | Gross Assessed | Exemption | Net Assessed | ||
|
2026 |
02/23/2026 |
194,000 |
194,000 |
21,340 |
0 |
21,340 |
||
|
2025 |
02/14/2025 |
190,000 |
143,911 |
15,829 |
0 |
15,829 |
||
|
2024 |
02/13/2024 |
184,500 |
137,059 |
15,075 |
0 |
15,075 |
||
|
2023 |
02/14/2023 |
167,000 |
130,533 |
14,357 |
0 |
14,357 |
||
|
2022 |
03/15/2022 |
144,500 |
124,318 |
13,674 |
0 |
13,674 |
||
| Property Building Permit History | |||||||||||
|---|---|---|---|---|---|---|---|---|---|---|---|
| Issued | Permit # | Provided by | Bldg # | Description | Est Construction Cost | Status | |||||
| No Building Permit records returned. | |||||||||||
| Click button on building number to access detailed information: | ||||||
|---|---|---|---|---|---|---|
| Bldg # | Vacant/Improved Land | Bldg Description | Year Built | SqFt | # Stories | |
|
1 |
Improved |
Ranch 1 Story |
1951 |
1,548 |
1 Stories |
|