|
|
|
| Larry Stein Oklahoma County Assessor (405) 713-1200 - Public Access System |
|
|
|
|
|
|
| Real Property Display - Screen Produced 4/1/2026 5:25:38 PM | ||||
|---|---|---|---|---|
| Account: R046605640 | Type: Residential | Location: |
121 NW 26TH ST |
|
| Building Name/Occupant: |
|
OKLAHOMA CITY |
||
| Owner Name 1: | ROBINSON BRENT |
Parcel PIN#: |
2682-04-660-5640 |
|
| Owner Name 2: | 1/4 section #: |
2682 |
||
| Owner Name 3: | Parent Acct: |
|
||
| Billing Address: | 121 NW 26TH ST | Tax District: |
|
|
| City, State, Zip | OKLAHOMA CITY, OK 73103-4103 | School System: |
Oklahoma City #89 |
|
|
Country: (If noted) |
Land Size: |
0.1607 Acres |
||
|
Land Value: 35,000 |
|
|||
|
Sect 21-T12N-R3W Qtr SE |
JEFFERSON PARK ADD
Block
016
Lot
020
|
|||
| Full Legal Description: JEFFERSON PARK ADD 016 020 |
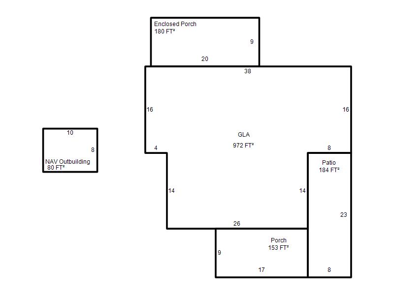
| Photo & Sketch (if available) | Comp Sales (ordered by relevancy) |
|
||||||||||||||||||
|
||||||||||||||||||||
| Value History (*The County Treasurer 405-713-1300 posts & collects actual tax amounts. Contact information HERE) | |||||||||||||
|---|---|---|---|---|---|---|---|---|---|---|---|---|---|
| Year | Market Value | Taxable Mkt Value | Gross Assessed | Exemption | Net Assessed | Millage | Est. Tax | Tax Savings | |||||
|
2026 |
167,000 |
167,000 |
18,370 |
0 |
18,370 |
122.90 |
$2,258 |
$0 |
|||||
|
2025 |
166,500 |
94,371 |
10,380 |
1,000 |
9,380 |
122.90 |
$1,153 |
$1,098 |
|||||
|
2024 |
160,500 |
91,623 |
10,078 |
1,000 |
9,078 |
123.89 |
$1,125 |
$1,063 |
|||||
|
2023 |
153,000 |
88,955 |
9,785 |
1,000 |
8,785 |
122.82 |
$1,079 |
$988 |
|||||
|
2022 |
119,500 |
86,365 |
9,498 |
1,000 |
8,498 |
117.63 |
$1,000 |
$546 |
|||||
| Property Account Status/Adjustments/Exemptions | ||||||
|---|---|---|---|---|---|---|
| Account # | Exemption Description | Amount | ||||
| No adjustment/exemption records returned. | ||||||
| Property Deed Transaction History (Recorded in the County Clerk's Office) | |||||||
|---|---|---|---|---|---|---|---|
| Date | Type | Book | Page | Price | Grantor | Grantee | |
|
10/23/2025 |
|
Deeds |
$155,000 |
CHAN SOULIYA S |
ROBINSON BRENT |
||
|
2/6/2007 |
|
Hmstd Off & |
$0 |
PHOMSOUVANH KITTA |
CHAN SOULIYA S |
||
|
7/14/2003 |
|
Deeds |
$30,000 |
WHITE TERRI KAY |
PHOMSOUVANH KITTA |
||
|
7/1/1985 |
|
Historical |
$31,500 |
|
WHITE TERRI KAY |
||
| Last Mailed Notice of Value (N.O.V.) Information/History | ||||||||
|---|---|---|---|---|---|---|---|---|
| Year | Date | Market Value | Taxable Market Value | Gross Assessed | Exemption | Net Assessed | ||
|
2026 |
02/23/2026 |
167,000 |
167,000 |
18,370 |
0 |
18,370 |
||
|
2025 |
02/14/2025 |
166,500 |
94,371 |
10,380 |
1,000 |
9,380 |
||
|
2024 |
02/13/2024 |
160,500 |
91,623 |
10,078 |
1,000 |
9,078 |
||
|
2023 |
02/14/2023 |
153,000 |
88,955 |
9,785 |
1,000 |
8,785 |
||
|
2022 |
03/15/2022 |
119,500 |
86,365 |
9,498 |
1,000 |
8,498 |
||
| Property Building Permit History | |||||||||||
|---|---|---|---|---|---|---|---|---|---|---|---|
| Issued | Permit # | Provided by | Bldg # | Description | Est Construction Cost | Status | |||||
| No Building Permit records returned. | |||||||||||
| Click button on building number to access detailed information: | ||||||
|---|---|---|---|---|---|---|
| Bldg # | Vacant/Improved Land | Bldg Description | Year Built | SqFt | # Stories | |
|
1 |
Improved |
Ranch 1 Story |
1921 |
972 |
1 Stories |
|