|
|
|
| Larry Stein Oklahoma County Assessor (405) 713-1200 - Public Access System |
|
|
|
|
|
|
| Real Property Display - Screen Produced 4/4/2026 5:23:38 AM | ||||
|---|---|---|---|---|
| Account: R046607840 | Type: Residential | Location: |
3019 N ROBINSON AVE |
|
| Building Name/Occupant: |
|
OKLAHOMA CITY |
||
| Owner Name 1: | BLACK THORN LLC |
Parcel PIN#: |
2682-04-660-7840 |
|
| Owner Name 2: | 1/4 section #: |
2682 |
||
| Owner Name 3: | Parent Acct: |
|
||
| Billing Address: | 9905 S PENNSYLVANIA AVE, Unit A | Tax District: |
|
|
| City, State, Zip | OKLAHOMA CITY, OK 73159 | School System: |
Oklahoma City #89 |
|
|
Country: (If noted) |
Land Size: |
0.1607 Acres |
||
|
Land Value: 45,500 |
|
|||
|
Sect 21-T12N-R3W Qtr SE |
JEFFERSON PARK ADD
Block
023
Lot
002
|
|||
| Full Legal Description: JEFFERSON PARK ADD 023 002 |
| Photo & Sketch (if available) | Comp Sales (ordered by relevancy) |
|
||||||||||||||||||
|
||||||||||||||||||||
| Value History (*The County Treasurer 405-713-1300 posts & collects actual tax amounts. Contact information HERE) | |||||||||||||
|---|---|---|---|---|---|---|---|---|---|---|---|---|---|
| Year | Market Value | Taxable Mkt Value | Gross Assessed | Exemption | Net Assessed | Millage | Est. Tax | Tax Savings | |||||
|
2026 |
597,500 |
597,500 |
65,725 |
0 |
65,725 |
122.90 |
$8,078 |
$0 |
|||||
|
2025 |
549,500 |
498,935 |
54,882 |
0 |
54,882 |
122.90 |
$6,745 |
$684 |
|||||
|
2024 |
549,500 |
475,177 |
52,269 |
0 |
52,269 |
123.89 |
$6,476 |
$1,013 |
|||||
|
2023 |
490,500 |
452,550 |
49,780 |
0 |
49,780 |
122.82 |
$6,114 |
$513 |
|||||
|
2022 |
431,000 |
431,000 |
47,410 |
0 |
47,410 |
117.63 |
$5,577 |
$0 |
|||||
| Property Account Status/Adjustments/Exemptions | ||||||
|---|---|---|---|---|---|---|
| Account # | Exemption Description | Amount | ||||
| No adjustment/exemption records returned. | ||||||
| Property Deed Transaction History (Recorded in the County Clerk's Office) | ||||||||||
|---|---|---|---|---|---|---|---|---|---|---|
| Date | Type | Book | Page | Price | Grantor | Grantee | ||||
|
7/31/2025 |
|
Deeds |
$590,000 |
SALTBOX HOMES LLC |
BLACK THORN LLC |
|||||
|
8/5/2021 |
|
Deeds |
$450,000 |
BASELINE PROPERTIES LLC |
SALTBOX HOMES LLC |
|||||
|
11/7/2017 |
|
Hmstd Off & |
$0 |
BASELINE MINERALS LLC |
BASELINE PROPERTIES LLC |
|||||
|
2/21/2017 |
|
Deeds |
$376,500 |
GREEN GATE PROPERTIES LLC |
BASELINE MINERALS LLC |
|||||
|
9/24/2010 |
|
Deeds |
$117,000 |
WHITE JEFFREY S WHITE JULIE A |
GREEN GATE PROPERTIES LLC |
|||||
| Last Mailed Notice of Value (N.O.V.) Information/History | ||||||||
|---|---|---|---|---|---|---|---|---|
| Year | Date | Market Value | Taxable Market Value | Gross Assessed | Exemption | Net Assessed | ||
|
2026 |
02/23/2026 |
597,500 |
597,500 |
65,725 |
0 |
65,725 |
||
|
2025 |
02/14/2025 |
549,500 |
498,935 |
54,882 |
0 |
54,882 |
||
|
2024 |
02/13/2024 |
549,500 |
475,177 |
52,269 |
0 |
52,269 |
||
|
2023 |
02/14/2023 |
490,500 |
452,550 |
49,780 |
0 |
49,780 |
||
|
2022 |
03/15/2022 |
431,000 |
431,000 |
47,410 |
0 |
47,410 |
||
| Property Building Permit History | ||||||
|---|---|---|---|---|---|---|
| Issued | Permit # | Provided by | Bldg # | Description | Est Construction Cost | Status |
|
9/26/2013 |
10455626 |
OKLAHOMA CITY |
1 |
Demolish |
0 |
Inactive |
| Click button on building number to access detailed information: | ||||||
|---|---|---|---|---|---|---|
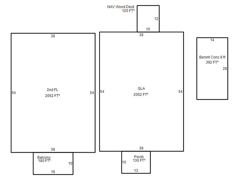
| Bldg # | Vacant/Improved Land | Bldg Description | Year Built | SqFt | # Stories | |
|
1 |
Improved |
Apartment <= 3 Stories |
1926 |
4,104 |
2 Stories |
|