|
|
|
| Larry Stein Oklahoma County Assessor (405) 713-1200 - Public Access System |
|
|
|
|
|
|
| Real Property Display - Screen Produced 4/8/2026 11:52:20 AM | ||||
|---|---|---|---|---|
| Account: R038119100 | Type: Residential | Location: |
1925 NE 24TH ST |
|
| Building Name/Occupant: |
|
OKLAHOMA CITY |
||
| Owner Name 1: | SANDERS TIFFANY |
Parcel PIN#: |
2690-03-811-9100 |
|
| Owner Name 2: | 1/4 section #: |
2690 |
||
| Owner Name 3: | Parent Acct: |
|
||
| Billing Address: | 1925 NE 24TH ST | Tax District: |
|
|
| City, State, Zip | OKLAHOMA CITY, OK 73111-3331 | School System: |
Oklahoma City #89 |
|
|
Country: (If noted) |
Land Size: |
0.1550 Acres |
||
|
Land Value: 6,413 |
|
|||
|
Sect 23-T12N-R3W Qtr SE |
WALLACE ADKINS ADD
Block
002
Lot
000
|
|||
| Full Legal Description: WALLACE ADKINS ADD 002 000 LOTS 37 & 38 |
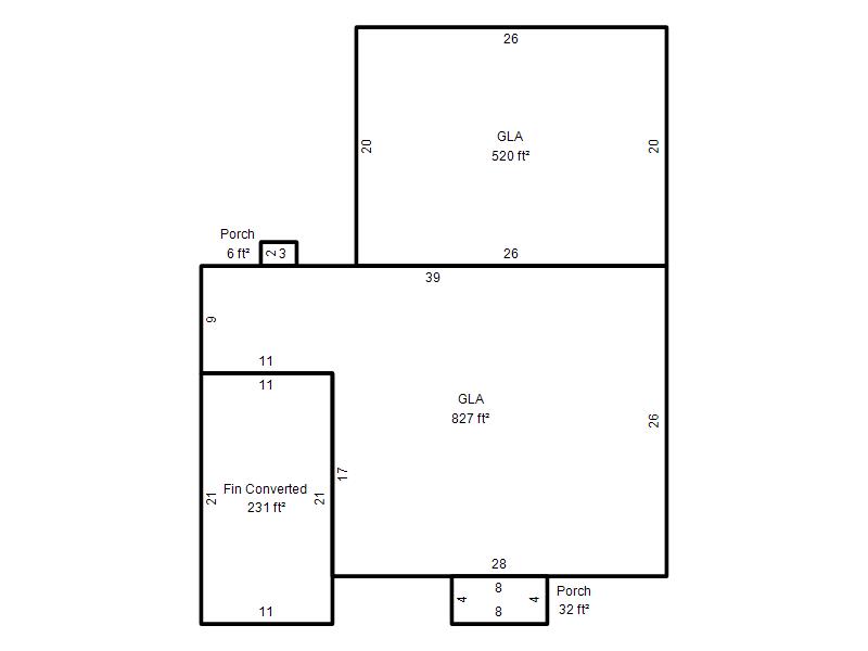
| Photo & Sketch (if available) | Comp Sales (ordered by relevancy) |
|
||||||||||||||||||
|
||||||||||||||||||||
| Value History (*The County Treasurer 405-713-1300 posts & collects actual tax amounts. Contact information HERE) | |||||||||||||
|---|---|---|---|---|---|---|---|---|---|---|---|---|---|
| Year | Market Value | Taxable Mkt Value | Gross Assessed | Exemption | Net Assessed | Millage | Est. Tax | Tax Savings | |||||
|
2026 |
162,500 |
158,105 |
17,391 |
1,000 |
16,391 |
122.90 |
$2,015 |
$182 |
|||||
|
2025 |
153,500 |
153,500 |
16,885 |
1,000 |
15,885 |
122.90 |
$1,952 |
$123 |
|||||
|
2024 |
88,500 |
37,217 |
4,092 |
0 |
4,092 |
123.89 |
$507 |
$699 |
|||||
|
2023 |
72,500 |
35,445 |
3,898 |
0 |
3,898 |
122.82 |
$479 |
$501 |
|||||
|
2022 |
70,000 |
33,758 |
3,712 |
0 |
3,712 |
117.63 |
$437 |
$469 |
|||||
| Property Account Status/Adjustments/Exemptions | ||
|---|---|---|
| Account # | Exemption Description | Amount |
|
R038119100 |
3% Cap Homestead |
0 |
|
R038119100 |
Homestead |
1,000 |
| Property Deed Transaction History (Recorded in the County Clerk's Office) | ||||||||||
|---|---|---|---|---|---|---|---|---|---|---|
| Date | Type | Book | Page | Price | Grantor | Grantee | ||||
|
9/30/2024 |
|
Deeds |
$155,000 |
PATRICK MICAH T |
SANDERS TIFFANY |
|||||
|
8/1/2024 |
|
Hmstd Off & |
$0 |
BAINES BONITA PERS REP |
PATRICK MICAH T |
|||||
|
8/22/2022 |
|
Hmstd Off & |
$0 |
PATRICK MICAH T |
PATRICK MICAH T |
|||||
|
5/18/2022 |
|
Hmstd Off & |
$0 |
JACKSON BONITA ANN |
PATRICK MICAH T |
|||||
|
5/9/2022 |
|
Hmstd Off & |
$0 |
BAINES BONITA PERS REP |
PATRICK MICAH T |
|||||
| Last Mailed Notice of Value (N.O.V.) Information/History | ||||||||
|---|---|---|---|---|---|---|---|---|
| Year | Date | Market Value | Taxable Market Value | Gross Assessed | Exemption | Net Assessed | ||
|
2026 |
02/23/2026 |
162,500 |
158,105 |
17,391 |
1,000 |
16,391 |
||
|
2025 |
02/14/2025 |
153,500 |
153,500 |
16,885 |
1,000 |
15,885 |
||
|
2024 |
02/13/2024 |
88,500 |
37,217 |
4,092 |
0 |
4,092 |
||
|
2023 |
02/14/2023 |
72,500 |
35,445 |
3,898 |
0 |
3,898 |
||
|
2022 |
03/15/2022 |
70,000 |
33,758 |
3,712 |
0 |
3,712 |
||
| Property Building Permit History | |||||||||||
|---|---|---|---|---|---|---|---|---|---|---|---|
| Issued | Permit # | Provided by | Bldg # | Description | Est Construction Cost | Status | |||||
| No Building Permit records returned. | |||||||||||
| Click button on building number to access detailed information: | ||||||
|---|---|---|---|---|---|---|
| Bldg # | Vacant/Improved Land | Bldg Description | Year Built | SqFt | # Stories | |
|
1 |
Improved |
Ranch 1 Story |
1949 |
1,347 |
1 Stories |
|