|
|
|
| Larry Stein Oklahoma County Assessor (405) 713-1200 - Public Access System |
|
|
|
|
|
|
| Real Property Display - Screen Produced 4/8/2026 4:54:39 PM | ||||
|---|---|---|---|---|
| Account: R038199350 | Type: Residential | Location: |
1517 NE 24TH ST |
|
| Building Name/Occupant: |
|
OKLAHOMA CITY |
||
| Owner Name 1: | WRIGHT JENNIFER H |
Parcel PIN#: |
2690-03-819-9350 |
|
| Owner Name 2: | 1/4 section #: |
2690 |
||
| Owner Name 3: | Parent Acct: |
|
||
| Billing Address: | 1517 NE 24TH ST | Tax District: |
|
|
| City, State, Zip | OKLAHOMA CITY, OK 73111-3212 | School System: |
Oklahoma City #89 |
|
|
Country: (If noted) |
Land Size: |
0.1550 Acres |
||
|
Land Value: 6,413 |
|
|||
|
Sect 23-T12N-R3W Qtr SE |
HOPE ADDITION
Block
002
Lot
000
|
|||
| Full Legal Description: HOPE ADDITION 002 000 LOTS 33 & 34 |
| Photo & Sketch (if available) | Comp Sales (ordered by relevancy) |
|
||||||||||||||||||
|
||||||||||||||||||||
| Value History (*The County Treasurer 405-713-1300 posts & collects actual tax amounts. Contact information HERE) | |||||||||||||
|---|---|---|---|---|---|---|---|---|---|---|---|---|---|
| Year | Market Value | Taxable Mkt Value | Gross Assessed | Exemption | Net Assessed | Millage | Est. Tax | Tax Savings | |||||
|
2026 |
109,000 |
109,000 |
11,990 |
0 |
11,990 |
122.90 |
$1,474 |
$0 |
|||||
|
2025 |
104,000 |
104,000 |
11,440 |
0 |
11,440 |
122.90 |
$1,406 |
$0 |
|||||
|
2024 |
62,000 |
33,501 |
3,684 |
0 |
3,684 |
123.89 |
$457 |
$388 |
|||||
|
2023 |
53,000 |
31,906 |
3,509 |
0 |
3,509 |
122.82 |
$431 |
$285 |
|||||
|
2022 |
51,000 |
30,387 |
3,341 |
0 |
3,341 |
117.63 |
$393 |
$267 |
|||||
| Property Account Status/Adjustments/Exemptions | ||
|---|---|---|
| Account # | Exemption Description | Amount |
|
R038199350 |
5% Capped Account |
0 |
| Property Deed Transaction History (Recorded in the County Clerk's Office) | ||||||||||
|---|---|---|---|---|---|---|---|---|---|---|
| Date | Type | Book | Page | Price | Grantor | Grantee | ||||
|
2/9/2024 |
|
Deeds |
$105,000 |
TB HOLDINGS LLC |
WRIGHT JENNIFER H |
|||||
|
2/26/2020 |
|
Hmstd Off & |
$0 |
BROWN REALTY INVESTMENTS LLC |
TB HOLDINGS LLC |
|||||
|
12/15/2015 |
|
Deeds |
$17,000 |
DANCY LEROY JR & WANDA JEAN |
BROWN REALTY INVESTMENTS LLC |
|||||
|
9/13/2001 |
|
Hmstd Off & |
$0 |
TEMPLE QUEEN ESTHER BELLFORD |
DANCY WANDA JEAN |
|||||
|
5/11/2001 |
|
Deeds |
$0 |
DANCY WANDA JEAN |
DANCY LEROY JR & WANDA JEAN |
|||||
| Last Mailed Notice of Value (N.O.V.) Information/History | ||||||||
|---|---|---|---|---|---|---|---|---|
| Year | Date | Market Value | Taxable Market Value | Gross Assessed | Exemption | Net Assessed | ||
|
2026 |
02/23/2026 |
109,000 |
109,000 |
11,990 |
0 |
11,990 |
||
|
2025 |
02/14/2025 |
104,000 |
104,000 |
11,440 |
0 |
11,440 |
||
|
2024 |
02/13/2024 |
62,000 |
33,501 |
3,684 |
0 |
3,684 |
||
|
2024 |
03/01/2024 |
62,000 |
33,501 |
3,684 |
0 |
3,684 |
||
|
2023 |
02/14/2023 |
53,000 |
31,906 |
3,509 |
0 |
3,509 |
||
| Property Building Permit History | ||||||
|---|---|---|---|---|---|---|
| Issued | Permit # | Provided by | Bldg # | Description | Est Construction Cost | Status |
|
9/18/2004 |
10296442 |
OKLAHOMA CITY |
1 |
Burn - Trip |
5,000 |
Inactive |
| Click button on building number to access detailed information: | ||||||
|---|---|---|---|---|---|---|
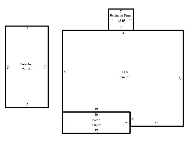
| Bldg # | Vacant/Improved Land | Bldg Description | Year Built | SqFt | # Stories | |
|
1 |
Improved |
Ranch 1 Story |
1946 |
842 |
1 Stories |
|