|
|
|
| Larry Stein Oklahoma County Assessor (405) 713-1200 - Public Access System |
|
|
|
|
|
|
| Real Property Display - Screen Produced 4/8/2026 11:52:21 AM | ||||
|---|---|---|---|---|
| Account: R030038203 | Type: Residential | Location: |
2420 NE 25TH ST |
|
| Building Name/Occupant: |
|
OKLAHOMA CITY |
||
| Owner Name 1: | LAVENDER MIRCK LLC |
Parcel PIN#: |
2695-03-003-8203 |
|
| Owner Name 2: | 1/4 section #: |
2695 |
||
| Owner Name 3: | Parent Acct: |
|
||
| Billing Address: | 2743 PONCE DE LEON | Tax District: |
|
|
| City, State, Zip | GRAND PRAIRIE, TX 75054-5510 | School System: |
Oklahoma City #89 |
|
|
Country: (If noted) |
Land Size: |
0.1538 Acres |
||
|
Land Value: 2,010 |
|
|||
|
Sect 24-T12N-R3W Qtr SW |
CRESTON HILLS ADD
Block
035
Lot
002
|
|||
| Full Legal Description: CRESTON HILLS ADD 035 002 |
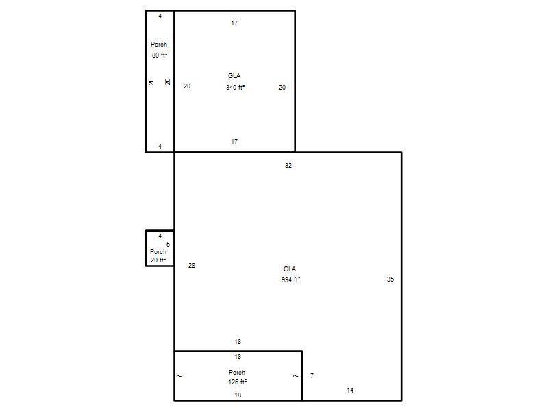
| Photo & Sketch (if available) | Comp Sales (ordered by relevancy) |
|
||||||||||||||||||
|
||||||||||||||||||||
| Value History (*The County Treasurer 405-713-1300 posts & collects actual tax amounts. Contact information HERE) | |||||||||||||
|---|---|---|---|---|---|---|---|---|---|---|---|---|---|
| Year | Market Value | Taxable Mkt Value | Gross Assessed | Exemption | Net Assessed | Millage | Est. Tax | Tax Savings | |||||
|
2026 |
90,000 |
85,050 |
9,355 |
0 |
9,355 |
122.90 |
$1,150 |
$67 |
|||||
|
2025 |
81,000 |
81,000 |
8,910 |
0 |
8,910 |
122.90 |
$1,095 |
$0 |
|||||
|
2024 |
78,000 |
10,397 |
1,143 |
1,000 |
143 |
123.89 |
$18 |
$1,045 |
|||||
|
2023 |
69,500 |
10,095 |
1,110 |
1,000 |
110 |
122.82 |
$14 |
$925 |
|||||
|
2022 |
51,500 |
9,801 |
1,077 |
1,000 |
77 |
117.63 |
$9 |
$657 |
|||||
| Property Account Status/Adjustments/Exemptions | ||
|---|---|---|
| Account # | Exemption Description | Amount |
|
R030038203 |
5% Capped Account |
0 |
| Property Deed Transaction History (Recorded in the County Clerk's Office) | |||||||
|---|---|---|---|---|---|---|---|
| Date | Type | Book | Page | Price | Grantor | Grantee | |
|
9/6/2024 |
|
Deeds |
$78,000 |
MILLS DARLENE |
LAVENDER MIRCK LLC |
||
|
11/16/2011 |
|
Hmstd Off & |
$0 |
MILLS ELNORA |
MILLS DARLENE |
||
|
11/11/1911 |
|
Historical |
$0 |
|
MILLS ELNORA |
||
| Last Mailed Notice of Value (N.O.V.) Information/History | ||||||||
|---|---|---|---|---|---|---|---|---|
| Year | Date | Market Value | Taxable Market Value | Gross Assessed | Exemption | Net Assessed | ||
|
2026 |
03/30/2026 |
90,000 |
85,050 |
9,355 |
0 |
9,355 |
||
|
2025 |
03/28/2025 |
81,000 |
81,000 |
8,910 |
0 |
8,910 |
||
|
2024 |
02/13/2024 |
78,000 |
10,397 |
1,143 |
1,000 |
143 |
||
|
2023 |
02/14/2023 |
69,500 |
10,095 |
1,110 |
1,000 |
110 |
||
|
2022 |
03/15/2022 |
51,500 |
9,801 |
1,077 |
1,000 |
77 |
||
| Property Building Permit History | ||||||
|---|---|---|---|---|---|---|
| Issued | Permit # | Provided by | Bldg # | Description | Est Construction Cost | Status |
|
11/17/2010 |
10424483 |
OKLAHOMA CITY |
1 |
Demolish |
1,500 |
Inactive |
| Click button on building number to access detailed information: | ||||||
|---|---|---|---|---|---|---|
| Bldg # | Vacant/Improved Land | Bldg Description | Year Built | SqFt | # Stories | |
|
1 |
Improved |
Ranch 1 Story |
1941 |
1,334 |
1 Stories |
|