|
|
|
| Larry Stein Oklahoma County Assessor (405) 713-1200 - Public Access System |
|
|
|
|
|
|
| Real Property Display - Screen Produced 4/2/2026 8:07:10 AM | ||||
|---|---|---|---|---|
| Account: R089750200 | Type: Residential | Location: |
1921 N PAGE AVE |
|
| Building Name/Occupant: |
|
OKLAHOMA CITY |
||
| Owner Name 1: | LEGACY INVESTMENT HOLDINGS LLC |
Parcel PIN#: |
2697-08-975-0200 |
|
| Owner Name 2: | 1/4 section #: |
2697 |
||
| Owner Name 3: | Parent Acct: |
|
||
| Billing Address: | 6011 N ROBINSON AVE | Tax District: |
|
|
| City, State, Zip | OKLAHOMA CITY, OK 73118-7425 | School System: |
Oklahoma City #89 |
|
|
Country: (If noted) |
Land Size: |
0.1802 Acres |
||
|
Land Value: 6,673 |
|
|||
|
Sect 25-T12N-R3W Qtr NE |
EDWARDS HEIGHTS RESUBDIVISION
Block
001
Lot
007
|
|||
| Full Legal Description: EDWARDS HEIGHTS RESUBDIVISION 001 007 |
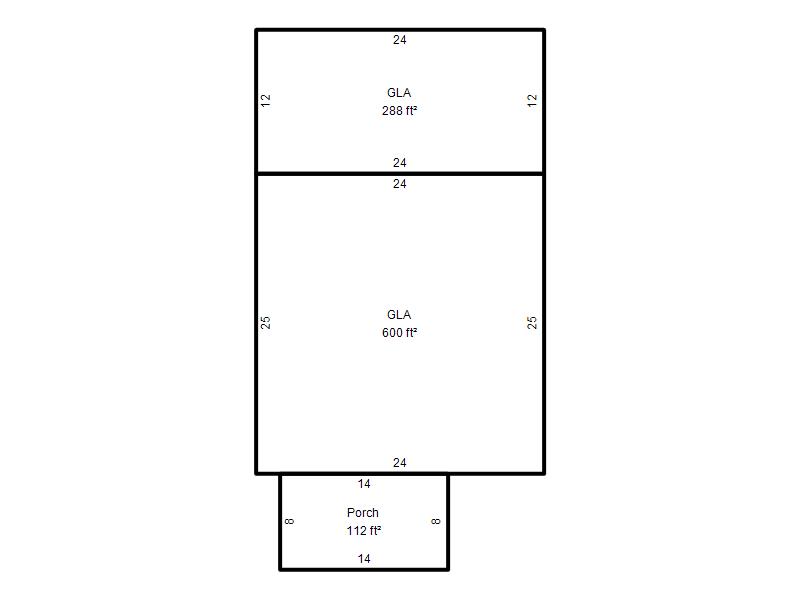
| Photo & Sketch (if available) | Comp Sales (ordered by relevancy) |
|
||||||||||||||||||
|
||||||||||||||||||||
| Value History (*The County Treasurer 405-713-1300 posts & collects actual tax amounts. Contact information HERE) | |||||||||||||
|---|---|---|---|---|---|---|---|---|---|---|---|---|---|
| Year | Market Value | Taxable Mkt Value | Gross Assessed | Exemption | Net Assessed | Millage | Est. Tax | Tax Savings | |||||
|
2026 |
83,500 |
83,500 |
9,185 |
0 |
9,185 |
122.90 |
$1,129 |
$0 |
|||||
|
2025 |
76,000 |
58,432 |
6,427 |
0 |
6,427 |
122.90 |
$790 |
$238 |
|||||
|
2024 |
63,500 |
55,650 |
6,121 |
0 |
6,121 |
123.89 |
$758 |
$107 |
|||||
|
2023 |
53,000 |
53,000 |
5,830 |
0 |
5,830 |
122.82 |
$716 |
$0 |
|||||
|
2022 |
52,000 |
52,000 |
5,720 |
0 |
5,720 |
117.63 |
$673 |
$0 |
|||||
| Property Account Status/Adjustments/Exemptions | ||||||
|---|---|---|---|---|---|---|
| Account # | Exemption Description | Amount | ||||
| No adjustment/exemption records returned. | ||||||
| Property Deed Transaction History (Recorded in the County Clerk's Office) | ||||||||||
|---|---|---|---|---|---|---|---|---|---|---|
| Date | Type | Book | Page | Price | Grantor | Grantee | ||||
|
2/13/2025 |
|
Deeds |
$82,000 |
SHERDA INCORPORATED |
LEGACY INVESTMENT HOLDINGS LLC |
|||||
|
8/11/2021 |
|
Deeds |
$53,000 |
ROCKY MTN RESOURCES LLC |
SHERDA INCORPORATED |
|||||
|
11/9/2016 |
|
Hmstd Off & |
$0 |
MCGUFFIN LARRY |
ROCKY MTN RESOURCES LLC |
|||||
|
8/30/2016 |
|
Deeds |
$27,500 |
WE BUY HOUSES LLC |
MCGUFFIN LARRY |
|||||
|
2/3/2016 |
|
Hmstd Off & |
$0 |
WE BUY HOUSES LLC 1921 N PAGE SERIES |
WE BUY HOUSES LLC |
|||||
| Last Mailed Notice of Value (N.O.V.) Information/History | ||||||||
|---|---|---|---|---|---|---|---|---|
| Year | Date | Market Value | Taxable Market Value | Gross Assessed | Exemption | Net Assessed | ||
|
2026 |
02/23/2026 |
83,500 |
83,500 |
9,185 |
0 |
9,185 |
||
|
2025 |
02/14/2025 |
76,000 |
58,432 |
6,427 |
0 |
6,427 |
||
|
2025 |
03/28/2025 |
76,000 |
58,432 |
6,427 |
0 |
6,427 |
||
|
2024 |
02/13/2024 |
63,500 |
55,650 |
6,121 |
0 |
6,121 |
||
|
2023 |
02/14/2023 |
53,000 |
53,000 |
5,830 |
0 |
5,830 |
||
| Property Building Permit History | |||||||||||
|---|---|---|---|---|---|---|---|---|---|---|---|
| Issued | Permit # | Provided by | Bldg # | Description | Est Construction Cost | Status | |||||
| No Building Permit records returned. | |||||||||||
| Click button on building number to access detailed information: | ||||||
|---|---|---|---|---|---|---|
| Bldg # | Vacant/Improved Land | Bldg Description | Year Built | SqFt | # Stories | |
|
1 |
Improved |
Ranch 1 Story |
1946 |
888 |
1 Stories |
|