|
|
|
| Larry Stein Oklahoma County Assessor (405) 713-1200 - Public Access System |
|
|
|
|
|
|
| Real Property Display - Screen Produced 4/5/2026 4:40:42 AM | ||||
|---|---|---|---|---|
| Account: R030035213 | Type: Residential | Location: |
2112 NE 20TH ST |
|
| Building Name/Occupant: |
|
OKLAHOMA CITY |
||
| Owner Name 1: | YELLOW MAGNOLIA OKLAHOMA LLC |
Parcel PIN#: |
2700-03-003-5213 |
|
| Owner Name 2: | 1/4 section #: |
2700 |
||
| Owner Name 3: | Parent Acct: |
|
||
| Billing Address: | 1695 CANOE RIDGE WAY | Tax District: |
|
|
| City, State, Zip | EUGENE, OR 97408-5965 | School System: |
Oklahoma City #89 |
|
|
Country: (If noted) |
Land Size: |
0.1515 Acres |
||
|
Land Value: 6,930 |
|
|||
|
Sect 25-T12N-R3W Qtr NW |
CRESTON HILLS ADD
Block
019
Lot
008
|
|||
| Full Legal Description: CRESTON HILLS ADD 019 008 |
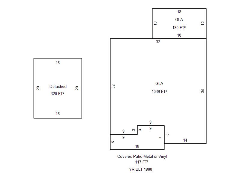
| Photo & Sketch (if available) | Comp Sales (ordered by relevancy) |
|
||||||||||||||||||
|
||||||||||||||||||||
| Value History (*The County Treasurer 405-713-1300 posts & collects actual tax amounts. Contact information HERE) | |||||||||||||
|---|---|---|---|---|---|---|---|---|---|---|---|---|---|
| Year | Market Value | Taxable Mkt Value | Gross Assessed | Exemption | Net Assessed | Millage | Est. Tax | Tax Savings | |||||
|
2026 |
106,500 |
82,687 |
9,095 |
0 |
9,095 |
122.90 |
$1,118 |
$322 |
|||||
|
2025 |
86,000 |
78,750 |
8,662 |
0 |
8,662 |
122.90 |
$1,065 |
$98 |
|||||
|
2024 |
75,000 |
75,000 |
8,250 |
0 |
8,250 |
123.89 |
$1,022 |
$0 |
|||||
|
2023 |
64,000 |
35,734 |
3,930 |
0 |
3,930 |
122.82 |
$483 |
$382 |
|||||
|
2022 |
45,500 |
34,033 |
3,742 |
0 |
3,742 |
117.63 |
$440 |
$148 |
|||||
| Property Account Status/Adjustments/Exemptions | ||
|---|---|---|
| Account # | Exemption Description | Amount |
|
R030035213 |
5% Capped Account |
0 |
| Property Deed Transaction History (Recorded in the County Clerk's Office) | ||||||||||
|---|---|---|---|---|---|---|---|---|---|---|
| Date | Type | Book | Page | Price | Grantor | Grantee | ||||
|
11/17/2023 |
|
Deeds |
$74,000 |
ZIKES MARKETING LLC |
YELLOW MAGNOLIA OKLAHOMA LLC |
|||||
|
11/10/2023 |
|
Deeds |
$15,000 |
HAMMOND FREDRICK |
ZIKES MARKETING LLC |
|||||
|
2/21/2017 |
|
Deeds |
$0 |
BERRY MAJOR T JR & DIANNA L |
HAMMOND FREDRICK |
|||||
|
2/1/2017 |
|
Deeds |
$10,000 |
BERRY MARSHETTA A |
HAMMOND FREDRICK |
|||||
|
1/31/2017 |
|
Deeds |
$0 |
BERRY MAJOR T JR |
BERRY MARSHETTA A BERRY SARA A |
|||||
| Last Mailed Notice of Value (N.O.V.) Information/History | ||||||||
|---|---|---|---|---|---|---|---|---|
| Year | Date | Market Value | Taxable Market Value | Gross Assessed | Exemption | Net Assessed | ||
|
2026 |
02/23/2026 |
106,500 |
82,687 |
9,095 |
0 |
9,095 |
||
|
2025 |
02/14/2025 |
86,000 |
78,750 |
8,662 |
0 |
8,662 |
||
|
2024 |
02/13/2024 |
75,000 |
75,000 |
8,250 |
0 |
8,250 |
||
|
2023 |
02/14/2023 |
64,000 |
35,734 |
3,930 |
0 |
3,930 |
||
|
2022 |
03/15/2022 |
45,500 |
34,033 |
3,742 |
0 |
3,742 |
||
| Property Building Permit History | ||||||
|---|---|---|---|---|---|---|
| Issued | Permit # | Provided by | Bldg # | Description | Est Construction Cost | Status |
|
10/18/2012 |
10445920 |
OKLAHOMA CITY |
1 |
Demolish |
3,000 |
Inactive |
| Click button on building number to access detailed information: | ||||||
|---|---|---|---|---|---|---|
| Bldg # | Vacant/Improved Land | Bldg Description | Year Built | SqFt | # Stories | |
|
1 |
Improved |
Ranch 1 Story |
1930 |
1,219 |
1 Stories |
|