|
|
|
| Larry Stein Oklahoma County Assessor (405) 713-1200 - Public Access System |
|
|
|
|
|
|
| Real Property Display - Screen Produced 4/12/2026 8:17:24 PM | ||||
|---|---|---|---|---|
| Account: R045002277 | Type: Residential | Location: |
1223 NW 21ST ST |
|
| Building Name/Occupant: |
|
OKLAHOMA CITY |
||
| Owner Name 1: | DEMOSS DEBRA FAYE & MARK DANIEL |
Parcel PIN#: |
2713-04-500-2277 |
|
| Owner Name 2: | 1/4 section #: |
2713 |
||
| Owner Name 3: | Parent Acct: |
|
||
| Billing Address: | 1223 NW 21ST ST | Tax District: |
|
|
| City, State, Zip | OKLAHOMA CITY, OK 73106-4017 | School System: |
Oklahoma City #89 |
|
|
Country: (If noted) |
Land Size: |
0.1607 Acres |
||
|
Land Value: 38,850 |
|
|||
|
Sect 29-T12N-R3W Qtr NE |
UNIVERSITY ADDITION
Block
021
Lot
000
|
|||
| Full Legal Description: UNIVERSITY ADDITION 021 000 LOTS 25 & 26 |
| Photo & Sketch (if available) | Comp Sales (ordered by relevancy) |
|
||||||||||||||||||
|
||||||||||||||||||||
| Value History (*The County Treasurer 405-713-1300 posts & collects actual tax amounts. Contact information HERE) | |||||||||||||
|---|---|---|---|---|---|---|---|---|---|---|---|---|---|
| Year | Market Value | Taxable Mkt Value | Gross Assessed | Exemption | Net Assessed | Millage | Est. Tax | Tax Savings | |||||
|
2026 |
275,000 |
275,000 |
30,250 |
0 |
30,250 |
122.90 |
$3,718 |
$0 |
|||||
|
2025 |
273,000 |
273,000 |
30,030 |
0 |
30,030 |
122.90 |
$3,691 |
$0 |
|||||
|
2024 |
262,500 |
262,500 |
28,875 |
0 |
28,875 |
123.89 |
$3,577 |
$0 |
|||||
|
2023 |
350,000 |
204,653 |
22,510 |
0 |
22,510 |
122.82 |
$2,765 |
$1,964 |
|||||
|
2022 |
262,000 |
194,908 |
21,438 |
0 |
21,438 |
117.63 |
$2,522 |
$868 |
|||||
| Property Account Status/Adjustments/Exemptions | ||||||
|---|---|---|---|---|---|---|
| Account # | Exemption Description | Amount | ||||
| No adjustment/exemption records returned. | ||||||
| Property Deed Transaction History (Recorded in the County Clerk's Office) | ||||||||||
|---|---|---|---|---|---|---|---|---|---|---|
| Date | Type | Book | Page | Price | Grantor | Grantee | ||||
|
3/27/2025 |
|
Deeds |
$280,000 |
CLAYBORNE CLAUDE L JR |
DEMOSS DEBRA FAYE & MARK DANIEL |
|||||
|
8/16/2023 |
|
Deeds |
$220,000 |
WELCOME HOMES OF OKLAHOMA LLC |
CLAYBORNE CLAUDE L JR |
|||||
|
6/28/2016 |
|
Hmstd Off & |
$0 |
HABAS BRYAN & VICTORIA |
WELCOME HOMES OF OKLAHOMA LLC |
|||||
|
12/29/2014 |
|
Hmstd Off & |
$0 |
WELCOME HOMES OF OKLAHOMA LLC |
HABAS BRYAN & VICTORIA |
|||||
|
6/3/2013 |
|
Hmstd Off & |
$0 |
WELCOME HOMES OF OKLAHOMA LLC |
HABAS BRYAN & VICTORIA |
|||||
| Last Mailed Notice of Value (N.O.V.) Information/History | ||||||||
|---|---|---|---|---|---|---|---|---|
| Year | Date | Market Value | Taxable Market Value | Gross Assessed | Exemption | Net Assessed | ||
|
2026 |
02/23/2026 |
275,000 |
275,000 |
30,250 |
0 |
30,250 |
||
|
2025 |
02/14/2025 |
273,000 |
273,000 |
30,030 |
0 |
30,030 |
||
|
2024 |
02/13/2024 |
262,500 |
262,500 |
28,875 |
0 |
28,875 |
||
|
2023 |
02/14/2023 |
350,000 |
204,653 |
22,510 |
0 |
22,510 |
||
|
2022 |
03/15/2022 |
262,000 |
194,908 |
21,438 |
0 |
21,438 |
||
| Property Building Permit History | |||||||||||
|---|---|---|---|---|---|---|---|---|---|---|---|
| Issued | Permit # | Provided by | Bldg # | Description | Est Construction Cost | Status | |||||
| No Building Permit records returned. | |||||||||||
| Click button on building number to access detailed information: | ||||||
|---|---|---|---|---|---|---|
| Bldg # | Vacant/Improved Land | Bldg Description | Year Built | SqFt | # Stories | |
|
1 |
Improved |
Ranch 1 Story |
1923 |
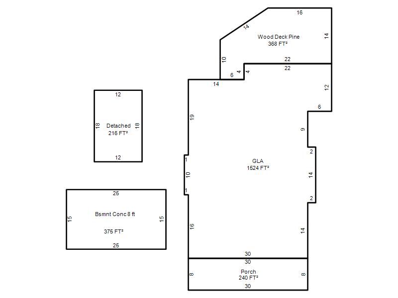
1,524 |
1 Stories |
|