|
|
|
| Larry Stein Oklahoma County Assessor (405) 713-1200 - Public Access System |
|
|
|
|
|
|
| Real Property Display - Screen Produced 4/12/2026 8:17:24 PM | ||||
|---|---|---|---|---|
| Account: R045006543 | Type: Residential | Location: |
1621 NW 18TH ST |
|
| Building Name/Occupant: |
|
OKLAHOMA CITY |
||
| Owner Name 1: | GILMORE TAYLOR K & MATTHEW CHRISTOPHER |
Parcel PIN#: |
2713-04-500-6543 |
|
| Owner Name 2: | 1/4 section #: |
2713 |
||
| Owner Name 3: | Parent Acct: |
|
||
| Billing Address: | 1621 NW 18TH ST | Tax District: |
|
|
| City, State, Zip | OKLAHOMA CITY, OK 73106 | School System: |
Oklahoma City #89 |
|
|
Country: (If noted) |
Land Size: |
0.1607 Acres |
||
|
Land Value: 38,850 |
|
|||
|
Sect 29-T12N-R3W Qtr NE |
UNIVERSITY ADDITION
Block
056
Lot
000
|
|||
| Full Legal Description: UNIVERSITY ADDITION 056 000 LOTS 27 & 28 |
| Photo & Sketch (if available) | Comp Sales (ordered by relevancy) |
|
||||||||||||||||||
|
||||||||||||||||||||
| Value History (*The County Treasurer 405-713-1300 posts & collects actual tax amounts. Contact information HERE) | |||||||||||||
|---|---|---|---|---|---|---|---|---|---|---|---|---|---|
| Year | Market Value | Taxable Mkt Value | Gross Assessed | Exemption | Net Assessed | Millage | Est. Tax | Tax Savings | |||||
|
2026 |
313,000 |
313,000 |
34,430 |
0 |
34,430 |
122.90 |
$4,231 |
$0 |
|||||
|
2025 |
322,000 |
322,000 |
35,420 |
0 |
35,420 |
122.90 |
$4,353 |
$0 |
|||||
|
2024 |
315,500 |
315,500 |
34,705 |
0 |
34,705 |
123.89 |
$4,300 |
$0 |
|||||
|
2023 |
306,000 |
306,000 |
33,660 |
0 |
33,660 |
122.82 |
$4,134 |
$0 |
|||||
|
2022 |
257,000 |
223,256 |
24,557 |
0 |
24,557 |
117.63 |
$2,889 |
$437 |
|||||
| Property Account Status/Adjustments/Exemptions | ||||||
|---|---|---|---|---|---|---|
| Account # | Exemption Description | Amount | ||||
| No adjustment/exemption records returned. | ||||||
| Property Deed Transaction History (Recorded in the County Clerk's Office) | ||||||||||
|---|---|---|---|---|---|---|---|---|---|---|
| Date | Type | Book | Page | Price | Grantor | Grantee | ||||
|
9/26/2025 |
|
Deeds |
$300,000 |
MUNKELWITZ MATTHEW |
GILMORE TAYLOR K & MATTHEW CHRISTOPHER |
|||||
|
7/12/2022 |
|
Deeds |
$285,000 |
SERAFINI KEVIN C |
MUNKELWITZ MATTHEW |
|||||
|
1/23/2018 |
|
Deeds |
$197,500 |
STEWART MATTHEW W |
SERAFINI KEVIN C |
|||||
|
12/22/2016 |
|
Deeds |
$192,500 |
CAMPBELLS ROOFING & CONSTRUCTION LLC |
STEWART MATTHEW W |
|||||
|
2/12/2016 |
|
Deeds |
$55,000 |
TRAN HOANG V & HOA L |
CAMPBELLS ROOFING & CONSTRUCTION LLC |
|||||
| Last Mailed Notice of Value (N.O.V.) Information/History | ||||||||
|---|---|---|---|---|---|---|---|---|
| Year | Date | Market Value | Taxable Market Value | Gross Assessed | Exemption | Net Assessed | ||
|
2025 |
02/14/2025 |
322,000 |
322,000 |
35,420 |
0 |
35,420 |
||
|
2024 |
02/13/2024 |
315,500 |
315,500 |
34,705 |
0 |
34,705 |
||
|
2023 |
02/14/2023 |
306,000 |
306,000 |
33,660 |
0 |
33,660 |
||
|
2022 |
03/15/2022 |
257,000 |
223,256 |
24,557 |
0 |
24,557 |
||
|
2021 |
03/19/2021 |
218,000 |
212,625 |
23,388 |
0 |
23,388 |
||
| Property Building Permit History | |||||||||||
|---|---|---|---|---|---|---|---|---|---|---|---|
| Issued | Permit # | Provided by | Bldg # | Description | Est Construction Cost | Status | |||||
| No Building Permit records returned. | |||||||||||
| Click button on building number to access detailed information: | ||||||
|---|---|---|---|---|---|---|
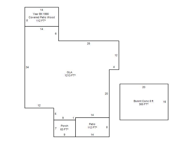
| Bldg # | Vacant/Improved Land | Bldg Description | Year Built | SqFt | # Stories | |
|
1 |
Improved |
Ranch 1 Story |
1925 |
1,213 |
1 Stories |
|