|
|
|
| Larry Stein Oklahoma County Assessor (405) 713-1200 - Public Access System |
|
|
|
|
|
|
| Real Property Display - Screen Produced 4/12/2026 10:19:53 PM | ||||
|---|---|---|---|---|
| Account: R062141840 | Type: Residential | Location: |
1302 NW 21ST ST |
|
| Building Name/Occupant: |
|
OKLAHOMA CITY |
||
| Owner Name 1: | DENHAM WILLIAM STEPHEN WAYNE |
Parcel PIN#: |
2713-06-214-1840 |
|
| Owner Name 2: | DENNAM TAYLOR GRACE | 1/4 section #: |
2713 |
|
| Owner Name 3: | Parent Acct: |
|
||
| Billing Address: | 1302 NW 21ST ST | Tax District: |
|
|
| City, State, Zip | OKLAHOMA CITY, OK 73106-4020 | School System: |
Oklahoma City #89 |
|
|
Country: (If noted) |
Land Size: |
0.2066 Acres |
||
|
Land Value: 85,095 |
|
|||
|
Sect 29-T12N-R3W Qtr NE |
UNIVERSITY PLACE ADD
Block
002
Lot
011
|
|||
| Full Legal Description: UNIVERSITY PLACE ADD 002 011 |
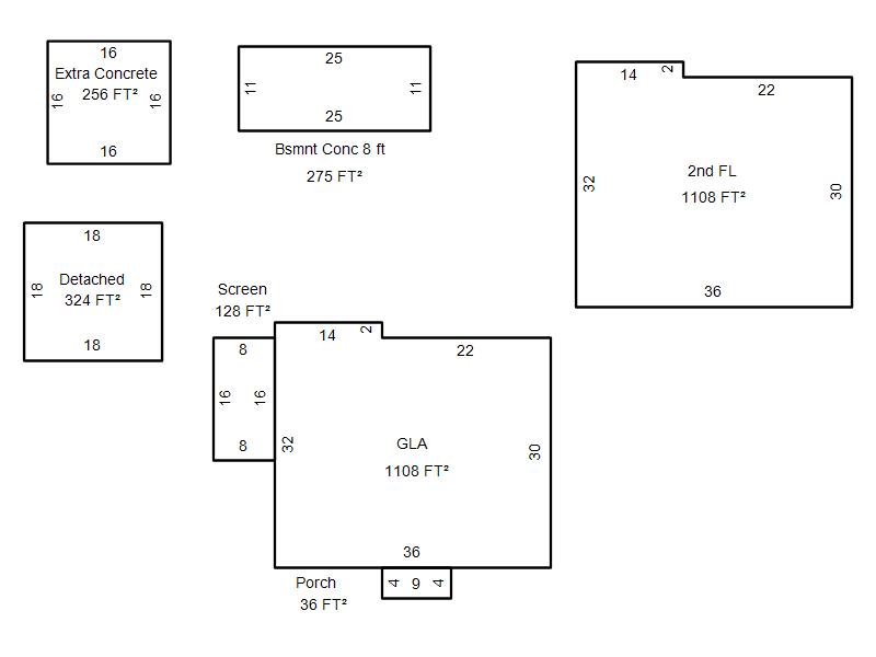
| Photo & Sketch (if available) | Comp Sales (ordered by relevancy) |
|
||||||||||||||||||
|
||||||||||||||||||||
| Value History (*The County Treasurer 405-713-1300 posts & collects actual tax amounts. Contact information HERE) | |||||||||||||
|---|---|---|---|---|---|---|---|---|---|---|---|---|---|
| Year | Market Value | Taxable Mkt Value | Gross Assessed | Exemption | Net Assessed | Millage | Est. Tax | Tax Savings | |||||
|
2026 |
486,500 |
486,500 |
53,515 |
0 |
53,515 |
122.90 |
$6,577 |
$0 |
|||||
|
2025 |
483,500 |
358,807 |
39,468 |
0 |
39,468 |
122.90 |
$4,851 |
$1,686 |
|||||
|
2024 |
470,000 |
341,721 |
37,588 |
0 |
37,588 |
123.89 |
$4,657 |
$1,748 |
|||||
|
2023 |
475,500 |
325,449 |
35,798 |
0 |
35,798 |
122.82 |
$4,397 |
$2,027 |
|||||
|
2022 |
444,500 |
309,952 |
34,094 |
0 |
34,094 |
117.63 |
$4,011 |
$1,741 |
|||||
| Property Account Status/Adjustments/Exemptions | ||||||
|---|---|---|---|---|---|---|
| Account # | Exemption Description | Amount | ||||
| No adjustment/exemption records returned. | ||||||
| Property Deed Transaction History (Recorded in the County Clerk's Office) | ||||||||||
|---|---|---|---|---|---|---|---|---|---|---|
| Date | Type | Book | Page | Price | Grantor | Grantee | ||||
|
3/18/2025 |
|
Deeds |
$455,000 |
GATELEY JOSHUA & SHARI |
DENHAM WILLIAM STEPHEN WAYNE |
|||||
|
5/23/2014 |
|
Deeds |
$264,000 |
REEL MICHAEL E |
GATELEY JOSHUA & SHARI |
|||||
|
6/30/2011 |
|
Deeds |
$192,000 |
FRANTZ RONALD H JR & MARY K |
REEL MICHAEL E |
|||||
|
8/15/2003 |
|
Deeds |
$0 |
FRANTZ RONALD H & MARY K |
FRANTZ RONALD H JR & MARY K |
|||||
|
7/30/1999 |
|
Deeds |
$108,000 |
REINKE LESTER ALLEN & CAROL P |
FRANTZ RONALD H & MARY K |
|||||
| Last Mailed Notice of Value (N.O.V.) Information/History | ||||||||
|---|---|---|---|---|---|---|---|---|
| Year | Date | Market Value | Taxable Market Value | Gross Assessed | Exemption | Net Assessed | ||
|
2026 |
02/23/2026 |
486,500 |
486,500 |
53,515 |
0 |
53,515 |
||
|
2025 |
02/14/2025 |
483,500 |
358,807 |
39,468 |
0 |
39,468 |
||
|
2025 |
03/28/2025 |
483,500 |
358,807 |
39,468 |
0 |
39,468 |
||
|
2024 |
02/13/2024 |
470,000 |
341,721 |
37,588 |
0 |
37,588 |
||
|
2023 |
02/14/2023 |
475,500 |
325,449 |
35,798 |
0 |
35,798 |
||
| Property Building Permit History | |||||||||||
|---|---|---|---|---|---|---|---|---|---|---|---|
| Issued | Permit # | Provided by | Bldg # | Description | Est Construction Cost | Status | |||||
| No Building Permit records returned. | |||||||||||
| Click button on building number to access detailed information: | ||||||
|---|---|---|---|---|---|---|
| Bldg # | Vacant/Improved Land | Bldg Description | Year Built | SqFt | # Stories | |
|
1 |
Improved |
1½ Story Fin |
1921 |
2,216 |
1.5 Stories |
|